查看完整案例

收藏

下载

翻译
Architects:Design Lab so S.O Architects
Area:245m²
Year:2020
Photographs:DongKyu Yoon
Manufacturers:AutoDesk,DuraVent,REHAU Euro,Roser,Stuco flex
Architect In Charge:SeoYun Jang
Design Team:Design Lab so S.O Architects
City:Ciudad de Jeju
Country:South Korea
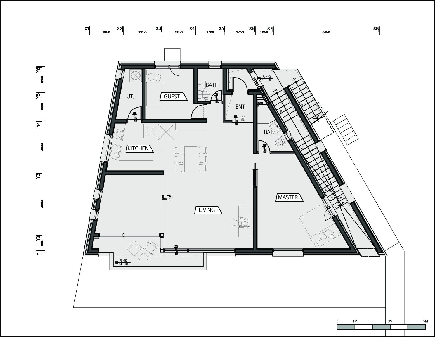
Text description provided by the architects. When the client came our office first time, he told us about his plan of second life in Jeju with coffee, music and nature. Jeju Island is the most popular vacation spot in Korea, and the site he chose was located at the western end of the island, where sunset with Cha-gui-do (Whale Island) is visible. For him, the scenery of sunset with the island was the most important thing, so we designed an open trapezoidal building toward the island. Therefore in all indoor spaces, various sizes, proportions and windows of frames allow people to look at the island with different feelings from space to space.
In addition to the island, different landscapes were unfolded in every direction on the site, and we wanted to make people experience all of them. So at first, we imagined a structure spread out on the site, but the legally defined building-to-land ratio was limited to 20 percent and the height of the building was 10 meters, and the budget was not generous. Clients, too, did not want too long a line of movement and spread out buildings. However, the sequence entering the building left traces of the entry ramp, and the landscape in various directions was made to experience through the stairs leading up to the rooftop viewing space.
The client wanted De Stijl for the concept of the cafe, but he also didn't want a design that would surely follow it, so we decided to use only De stijl's colors such as red, yellow, blue and black as points everywhere. The inclined masses,which overlap with each other,create a three-dimensional shape like the whale island, and allowing people to wander between the layers to enjoy views and spaces. The basic exterior material is a vintage black cement brick that resembles the unique black basalt on Jeju Island. In addition to bricks, exterior materials such as exposed concrete, stucco and hot-rolled steel plates have been selected as external materials that produce natural textures over time.
Another space that clients consider very important is rooftop space for views. The scene of looking at sunset, Mt. Halla, and windmills from the rooftop was very precious to him, but for us, the way up to the rooftop was even more important.The way up should not be boring, and the private house on the way up should not be noticed.People should be joyful enough only with controlled views and sight until they get to the widely opened rooftop.We hoped that every time people turned around, they would meet a new landscape that unfolded, and feel a completely different sense of space every time they raised their heads or bowed down. Also we expected that the sudden appearance of window, the aerial stairs right after passing between the dark and high walls, and the view of stairs below and the ocean at the other spot on the way, would present a sufficiently dynamic sense of space.
Project gallery
Project location
Address:Cdad. de Jeju, Jeju, South Korea
客服
消息
收藏
下载
最近







































