查看完整案例

收藏

下载

翻译
Architects:Hitzig Militello Arquitectos
Area:264m²
Year:2019
Photographs:Mohammed Shehab Din
Lead Architects:Hitzig Militello Arquitectos
Executive Documentation Of Construction:Lucia Moron, Julieta Setton
Remote Construction Management:Lucia Moron
General Contractor:Aqeel Ac Technical
Renders:Eliana Gonzalez
Consultants:Estudio HMA, Melisa Rivas (Estudio Nuar), Manuela Ventura (Estudio Nuar), Crista Bernasconi
City:Riyadh
Country:Saudi Arabia
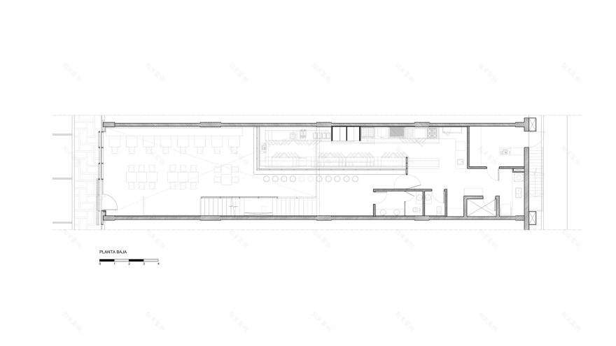
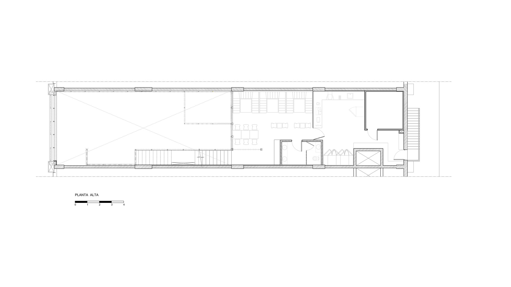
Text description provided by the architects. The idea of a typical traditional London tavern, pub aesthetics was the premise of our client. In order to do so, we looked for concepts of the spirit of traditional British taverns, without falling into typical resources, nor losing the focus of the idea of a classic European restaurant with a contemporary artistic touch.
The proposal was based on the idea of resorting to materials that define this architectural aesthetic, although far from reproducing, we decided to extirpate only its DNA: "The windows of iron window frames and bare bricks.
The idea was to interlace through an interior skin system that covered all the walls and the most outstanding functional spaces. This great system is composed by an organization of bricks and windows.
The compositional system of the bricks mutes to become "aerial" walls, with open joints crossed by screwed rods. This gave us an ethereal composition that allows us to resolve the proposal in a non-linear way to the original suggestion of a traditional London tavern.
Glazed sections have different levels of transparency, in some cases without glasses and in others with old glasses or translucent or opaque glasses organized according to the functionality of each space, referencing the smoked glass of British pubs. This system of glass structure accompanies the entire interior.
The façade has the same system of distributed glass structures and open-joint brick walls in a composition in conjunction with the double door access.
Project gallery
Project location
Address:King Fahd Branch Rd, المروج، Riyadh 11491, Saudi Arabia
客服
消息
收藏
下载
最近








































