查看完整案例

收藏

下载

翻译
Architect:G/O Architecture
Location:Gwacheon City, Gyeonggi-do
Project Year:2024
Category:Offices
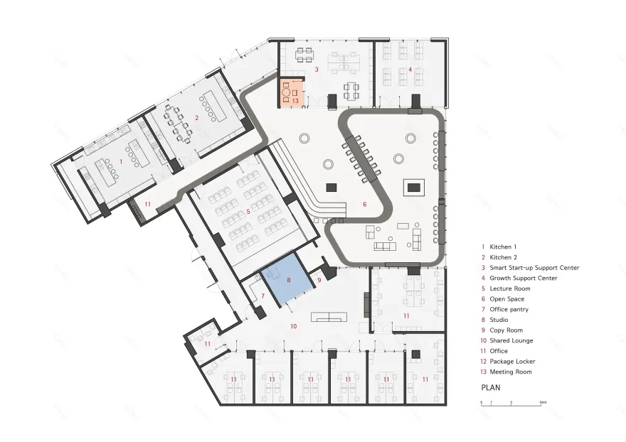
The Gwacheon Start-up Support Center is a public project to support Gwacheon citizens' start-ups and lay the foundation for them to revitalize them. The Smart Start-up Support Center consists of a smart start-up support center, a growth support center, a large lecture room, a start-up nursery room, a shared kitchen, and a filming studio, and there are two major public spaces: an open space and a rest area.
It is classified into a centralized work space, a shared kitchen, and an office space for support according to the purpose of use. In order to fuse and communicate three spaces with different characteristics in one space, we focused on design with a common space in the center.
The common space is divided into two parts. First, the open space consists of curved rail structures on both the ceiling and the floor. The ceiling structure comes down the wall and becomes a stepped bench to provide a resting space, and it is connected to the bar table so that you can sit and do simple work. The rails installed on the floor can be used as desks or benches due to changes in height. The rails leading to the floor were painted under epoxy to connect the desk and the bench.
The shared rest area in the middle of the business incubation room, filming studio, pantry, and photocopying room is a space where people can rest while working in the business incubation room or use the pantry for a while. It is also a place where people from eight small offices gather to form a community. The shared rest area has a curved rail ceiling structure that passes through the ceiling, which it comes down the wall to serve as a bench to provide a rest area, and connects to the delivery room through the hallway in front of the pantry and toilet. Although it is a ceiling structure, if you follow this rail, you will pass through a narrow and dark hallway, pass in front of the shared kitchen, and naturally go to the open space.
By forming a community space through a rail structure, a start-up support facility that can look simple and hard, a community of people working with different start-up items could occur.
Shared Kitchen 1 is composed of a kitchen where you can cook Korean food and Western food. Both induction and gas stoves are placed in the kitchen, so you can use the fire pit appropriately as needed. In the center of the kitchen, there are 7 sink balls on the island and the edge, so many people can use them, and cooking classes are also possible. Shared Kitchen 1 has a warehouse inside, making it easy to store large and small cooking tools. Shared Kitchen 2 is composed of a kitchen for baristas, confectionery, and baking. Unlike shared kitchen 1, sink balls and fire pit are reduced, and necessary devices such as coffee machines and ovens were arranged. Shared kitchen 1 and shared kitchen 2 both are decorated in a form in which the upper cabinet was connected as one. Although the lower cabinets were separated, the colors of the walls and kitchen furniture under the upper cabinet are unified in gray to give a sense of unity. The ceiling created a luxurious atmosphere by using water mirrors and indirect lighting.
The office of the Smart Startup Support Center next to the entrance is a space used by employees. A conference room is set up in the office, and the floor, wall, and ceiling were all highlighted in orange. The office is located near the entrance, and the interior is made easy to use as an employee-only office, such as a sound absorption plate.
The Growth Support Center is a small classroom. It is a space where small people can gather, such as presenting or taking classes. All the walls are white sound-absorbing plates, and the front surface is a screen glass plate, so that it can be used as a white board or a screen for a beam project.
The grand lecture room is a place where about 40 people can gather to listen to a lecture or have a meeting. The ceiling was accentuated with a grid-shaped structure. The wall is finished with a white sound-absorbing plate, and some of the upper part was accentuated with a tembar board. On the front, the screen electronic board for the presentation is put on the wall. For effective content delivery, the part used by the people who come out to present is given a step difference, so the floor is set slightly higher. There are two warehouses on one side of the wall, making it easy to store the sound equipment of the screen glass board and other goods.
The business nursery room is an office space used by people who start a business. It consists of a total of 8 threads, and it is composed of various sizes so that it can be used depending on the number of people. The business nursery room is made of white sound absorption plates to prevent the sound from ringing while working in the office.
The studio opposite the start-up nursery room is finished with blue paint on the ceiling, wall, and floor so that it could be used as a chroma key studio. The side of the studio consists of a pantry and a copy room. It is close to the start-up nursery room, so it can be conveniently used by office workers.
▼项目更多图片
客服
消息
收藏
下载
最近














































