查看完整案例

收藏

下载

翻译
Architects:LT2A
Area:700m²
Year:2019
Photographs:Johny Umans
Manufacturers:GRAPHISOFT,Installux
Engineering:HELIOS
Clients:City of Marly
City:Marly
Country:France
Text description provided by the architects. The school restaurant site is located between two concrete buildings from the ’60s, facing a green area with trees that slopes down towards the street. The building is located at the highest point of the land. The restaurant room opens onto the garden while the technical areas and the kitchen are located against the rear service road.
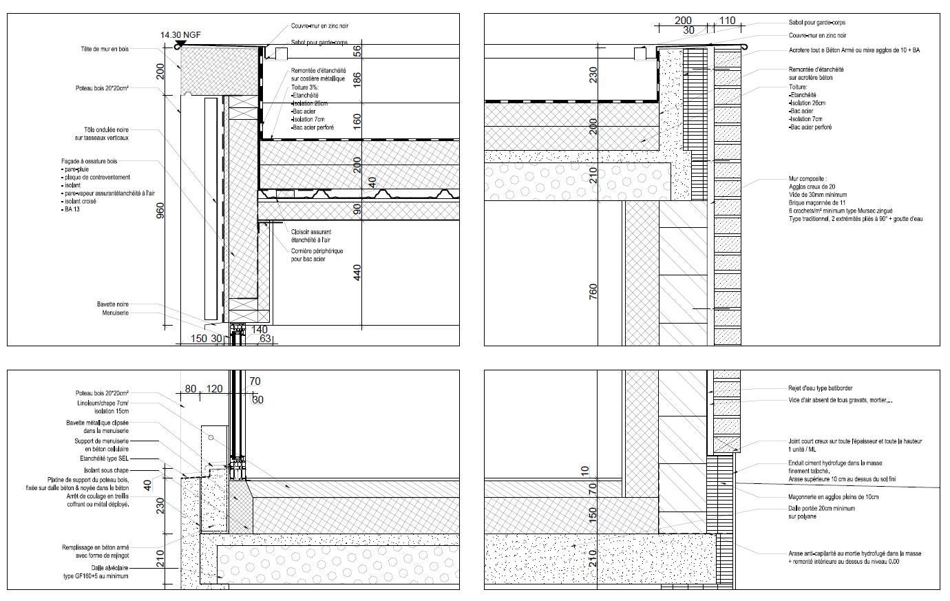
The building is compact. The main facade, wooden porticos on a concrete base, is an echo of the design of the existing buildings.
The only deviation from the rationality of the construction is that one of the corners of the parallelepiped is pushed and bends the facade. This gesture avoids the existing bouquet of trees and gives the project extra character.
Project gallery
Project location
Address:59770 Marly, France
客服
消息
收藏
下载
最近





























