查看完整案例

收藏

下载

翻译
Architects:DFJ Architects
Area:270m²
Year:2018
Photographs:Christopher Frederick Jones
Manufacturers:GRAPHISOFT,Autex,ACT 3D,Alspec,Aromatic Embers,Bernie & Co,Martin Johnston Handcrafted Furniture,Paperock,Salt x Steel,Warwick Fabrics
Landscape:Alex Petersons ‘InRock Landscaping’
Structural Engineering:Ardill Payne & Partners
Mechanical Engineers:MDA Consulting Engineers
Planning:Planners North
Builder:Open Projects Group
Electrical Engineers:MDA Consulting Engineers
Design Team:Aso Dupras-Boileau
Electrical/Hydraulic/Mechanical Engineers:MDA Consulting Engineers
Hydraulic Engineers:MDA Consulting Engineers
City:Byron Bay
Country:Australia
Text description provided by the architects. Woodfired, rustic sharing food, cooked in the spectacle of owner/chef Francisco’s Argentine open grills, sets the tone for Barrio’s elegantly low-key space. Barrio, meaning ‘neighbourhood’ in Spanish, is designed to bring people together in a convivial atmosphere, rich with natural materials and earthy textures.
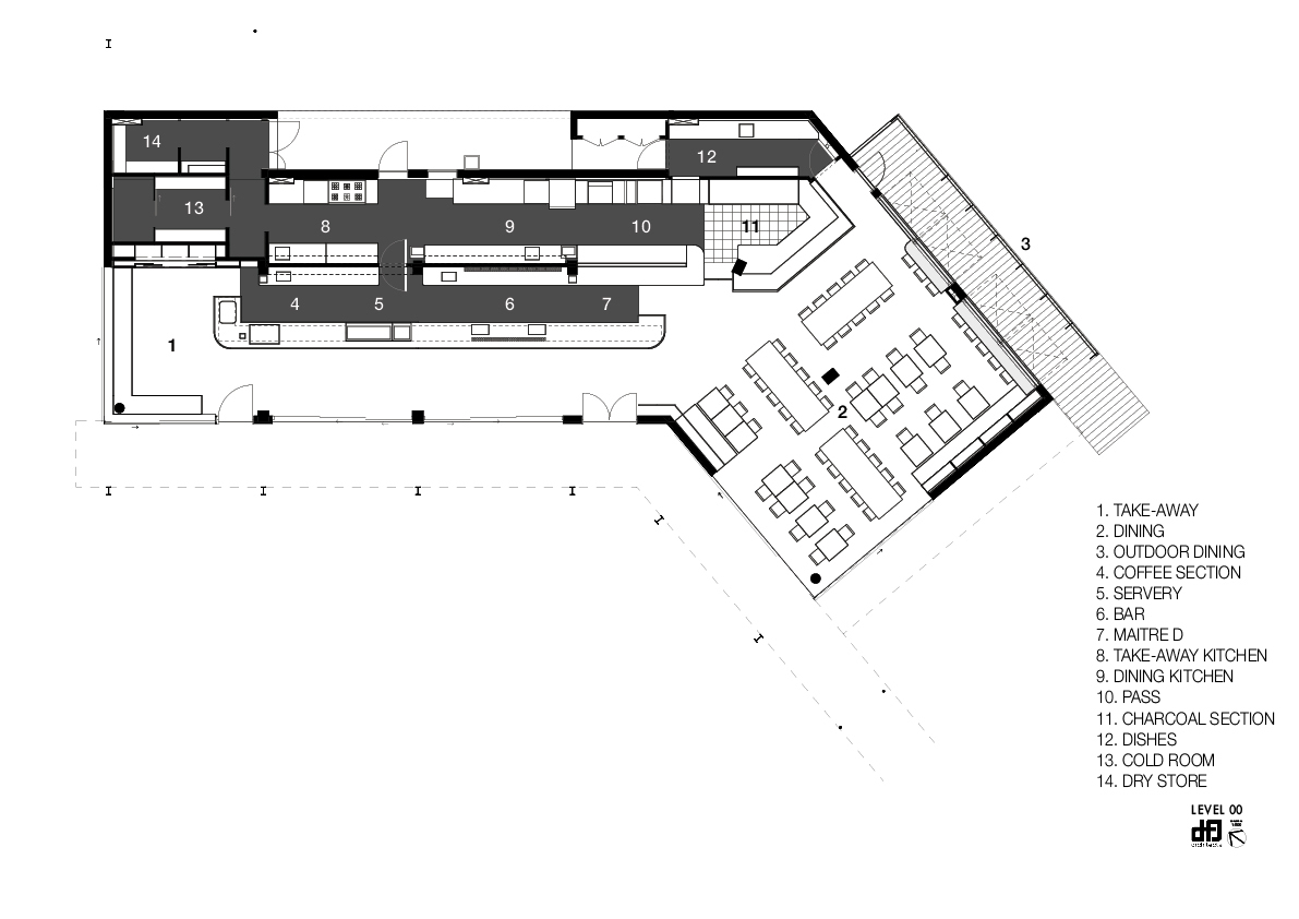
A large back of house, coolroom storage, prep kitchen, canteen kitchen, bar, open grills, woodfired oven, pass and coffee corner are inserted into one side of the wing-shaped space, and fronted by a 25-metre long bar, clad in rammed earth. The design takes advantage of the existing gas-strut windows for bench seats, with the stark, newly constructed concrete shell softened by upholstered timber banquettes and joinery.
Overflowing indoor greenery, paintings and custom handmade tableware add further homely warmth. Barrio was the recipient of the 2018 AIA NSW Country Division Award for Interior Architecture.
Project gallery
Project location
Address:1 Porter St, Byron Bay NSW 2481, Australia
客服
消息
收藏
下载
最近













