查看完整案例

收藏

下载

翻译
Architects:G8A Architecture & Urban Planning,VUUV Architecture and Interior Design
Area:1000m²
Year:2019
Photographs:Quang Dam
Manufacturers:D'furni,Eco Design,Landco,Nam Phuong home,Tan Long
Engineering:Etis
Contractor:Landco Corporation
Architect In Charge:Grégoire du Pasquier, Ha Vu
Design Team:Grégoire du Pasquier, Manuel der Hagopian, Nicolas Moser, Ramon Cuesta Gonzalez de la Aleja, Le Ngoc Toan, Martial Coudamy, Vu Hoang Ha, Vu Hoang Son, Duong Quoc Anh
Client:The 5th Flavor Restaurant
Suppliers:D’furni, NamPhuong home
City:Hanoi
Country:Vietnam
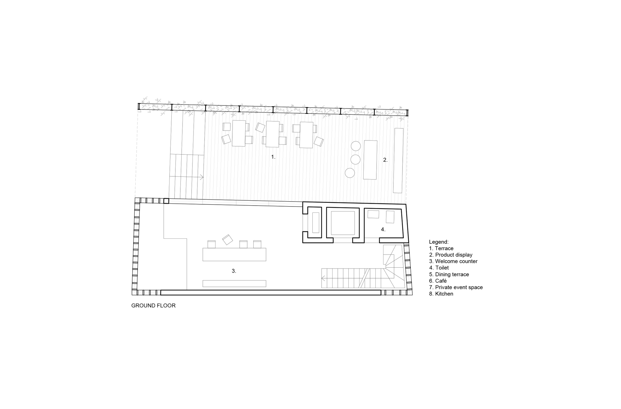
Text description provided by the architects. Density has always been a strong characteristic in the urban design of Hanoi. Historically horizontal concentration has been typical and more recently vertical construction has intensified the capital. Going against the trend of compressing building density, the Organic Café plays with architectural contrasts to propose a resilient microcosm within the urban context.
The site, in a particularly compact area of Northern Hanoi, is composed of two lots; an existing seven storey tube house and a low-rise steel structure. The project draws its design references from traditional shophouse typologies that provided natural ventilation and lighting across a horizontal organisation, their density broken up by intermittently distributed open plazas.
These design principles are reinterpreted by G8A and VUUV's use of vertical voids allowing for natural ventilation, lighting and comfortable social and commercial spaces. A light metallic structure is used to extend the surface area and maintain the feeling of transparency. The game of spatial and material dissimilarities between “full” and “void” promotes the idea of a self-sustainable system in a saturated environment.
Project gallery
Project location
Address:Hanoi, Hoàn Kiếm, Hanoi, Vietnam
客服
消息
收藏
下载
最近




















