查看完整案例

收藏

下载

翻译
Architects:Outpost Architecture,SAW.EARTH
Area:630ft²
Year:2019
Photographs:Dan MacMahon,Germaine Gatewood
Manufacturers:Prism Planters,Progressive Automations
Lead Architect:Outpost Architecture
Engineering:Ryan Consulting Engineers
Clients:Myo Moe
City:Brooklyn
Country:United States
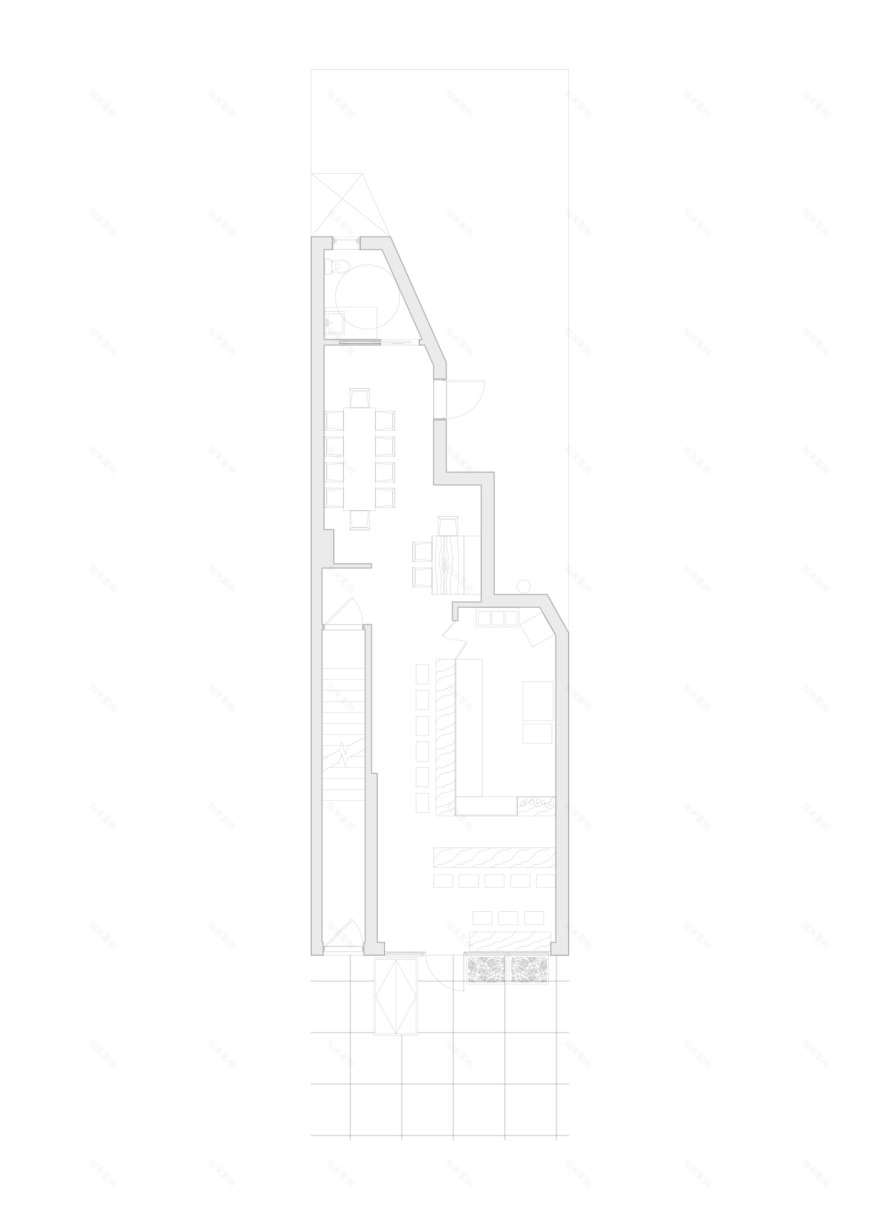
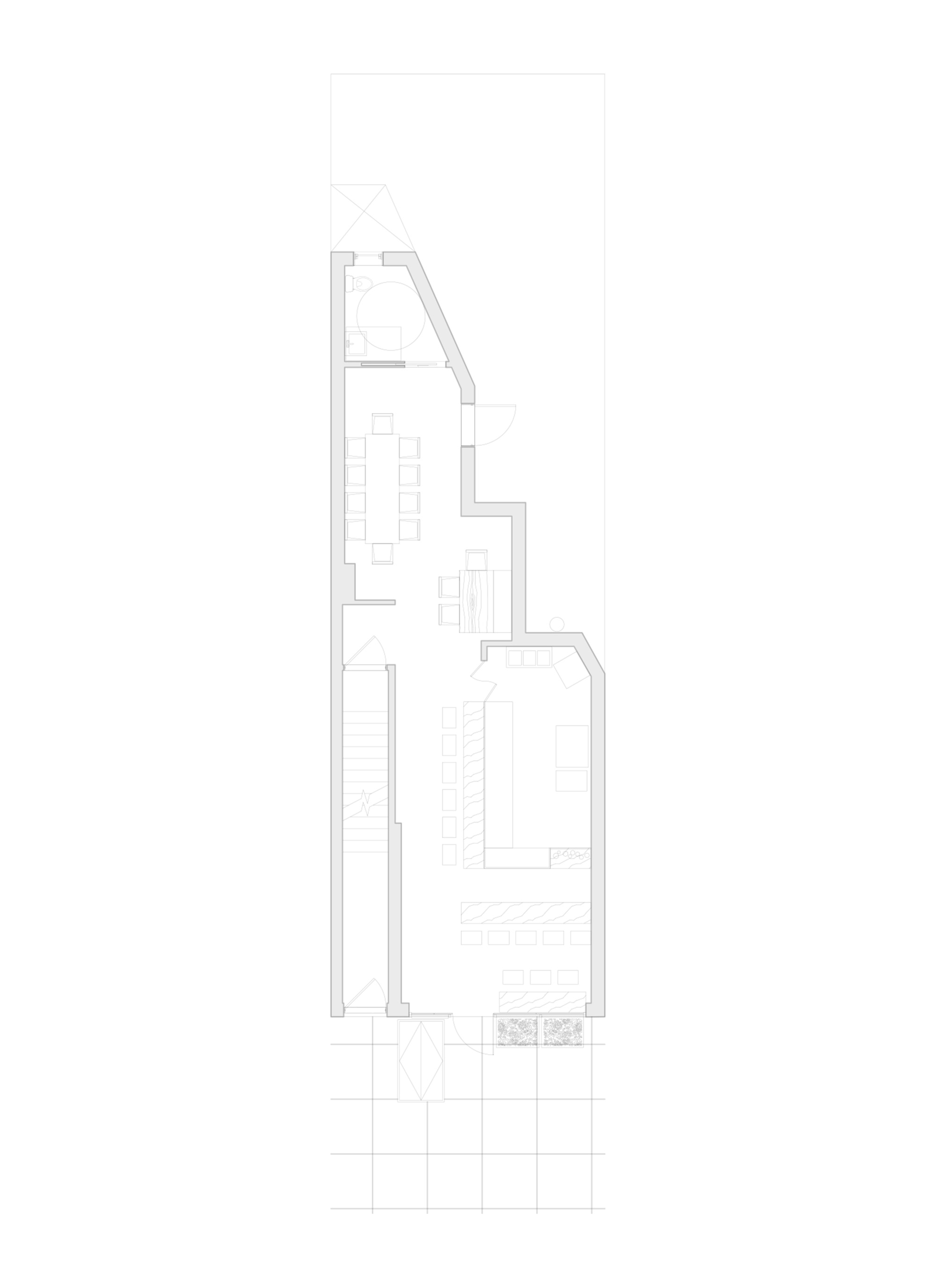
Text description provided by the architects. SAW.EARTH and Outpost Architecture have collaborated on the design of Rangoon restaurant, a kinetic retrofitting of a former bodega in Prospect Heights, Brooklyn. With the goal of reducing waste and costs to the lowest possible amounts, the architects retained as many original architectural elements possible. This primarily included retaining the existing kitchen and glass facades.
To create a new visual and spatial identity that accurately reflected the culinary influences of the chef, the architects designed two kinetic screens to be retrofitted over the existing facade and kitchen areas. These screens were created out of laser-cut aluminum panels and driven by remote-controlled actuator motors connected in a parallel linkage.
The patterns for each screen and their physical movement reflect the cuisine created by the chef: traditional Burmese cuisine with Victorian accents. Throughout the day, the screens can be remotely controlled to allow for more or less privacy in the dining areas.
The exterior screen also creates a kinetic visual and architectural identity for the restaurant in addition to providing shade and night time security.
Project gallery
Project location
Address:Prospect Heights, Brooklyn, NY, United States
客服
消息
收藏
下载
最近























