查看完整案例

收藏

下载

翻译
Architects:Inspiral Architecture and Design Studios
Area:1521m²
Year:2022
Photographs:Wanderskyy, Kevin Mirc, Bianca Blajovan, Nora Brown, Symbiosis Studio
Manufacturers:Sika,Dekson,Eco Smart Hub,PT. Indo,Propan,Urecel,Zelltech
Interior Designer:Prima Design
Lighting Designer:Prima Design
Principal Architect:Charlie Hearn
Conceptual 3 D Architect:Marvin Edward Lesmana
Civil Contractor:Wayan Konstruksi
Project Manager:Adi Ariantika
Project Architect:Laura Tika R
City:Kediri
Country:Indonesia
Text description provided by the architects. Located in Kaba-Kaba, Tabanan, Bali, the breathtaking second phase of this eco-resort incorporates a number of key facilities that unify the entire complex. Phase 1 of Ulaman was extremely well received by the media and the public and has obtained multiple international design features and awards, most notably the highly acclaimed UNESCO Prix-Versailles award for Sustainable Architecture.
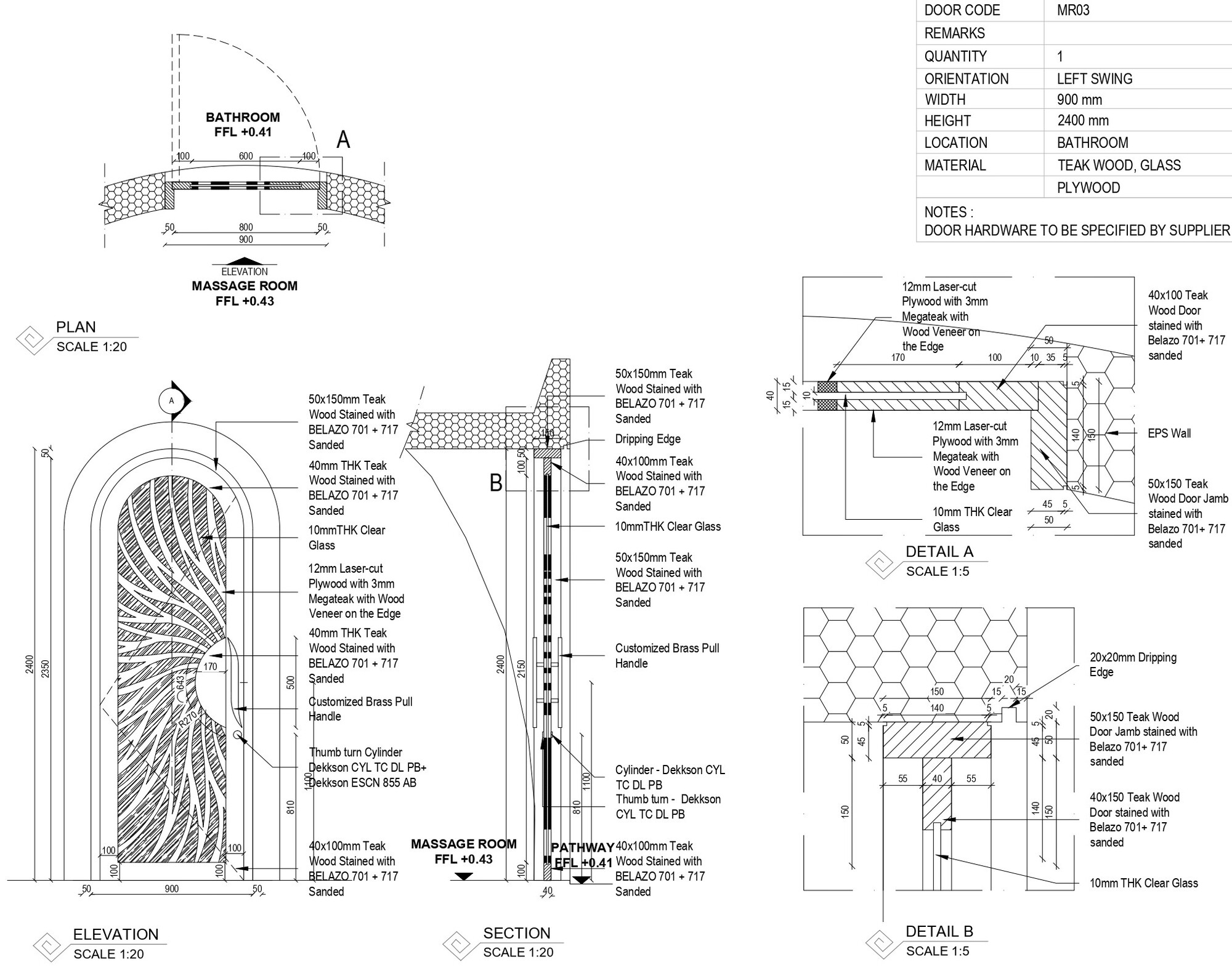
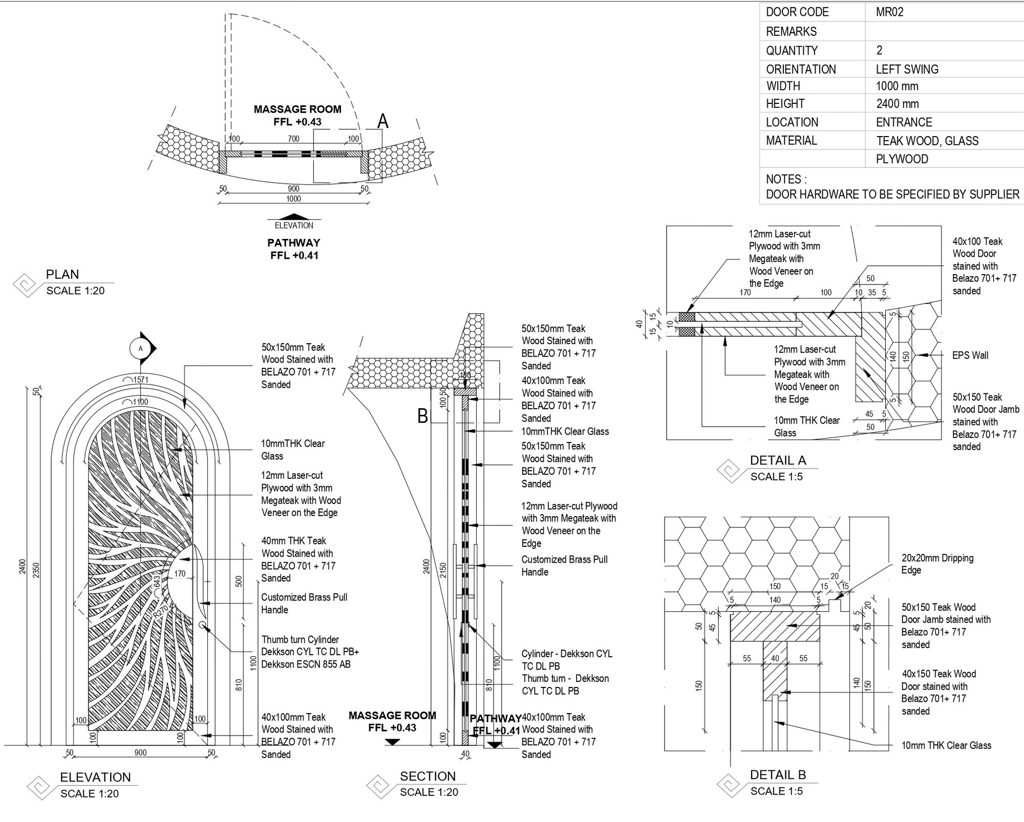
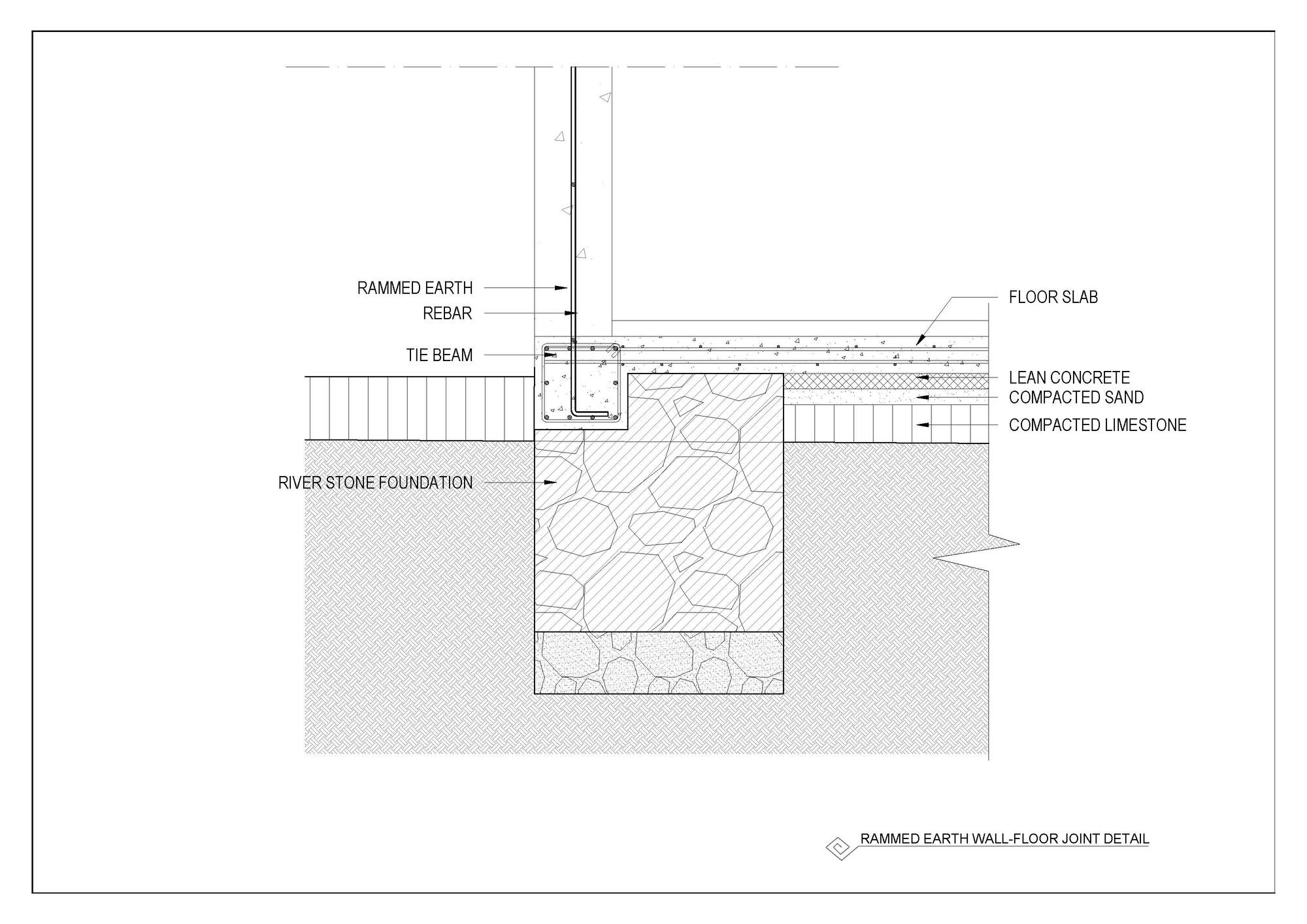
Continuing from phase one with a palette of materials such as rammed earth, bamboo, natural stone, and recycled timbers, new key elements such as composite SIP panels have also been incorporated. These can be seen in a number of roof structures and the spa building. This organic building comprises a series of domes with an undulating green roof that merges the building with the surrounding ecology. With an extremely low carbon footprint, these panels use recycled and recyclable EPS with earth-based, fiber-reinforced polymer renders which allow these panels to be strong, lightweight, and with high insulation.
The new Lotus restaurant area contains a series of geometric pods that work like mini holistic cathedrals. These sit over an auspicious junction of waterfalls, one of which has been newly created from a lake that has been reintroduced into the center of the site. This lake which was once cut off for agricultural reasons has been brought back to life and essentially a micro-ecosystem has been revived, thus introducing light and ambiance to the site. This lake also functions as a reservoir to power the hydroelectric turbines.
These are complemented by solar panels located in a parking area. A number of rooms have also been added, some perched over the lake and some are raised into the tree canopies at 9m in height. These luxury units are highly insulated from heat and sound, with generous space within and far-reaching views. Other facilities include a gym, a yoga pavilion, a naturalized pool, and a small conference room.
In conclusion Ulaman Phase 2 is groundbreaking in its cohesive and unique combination of sustainable technologies and materials. In addition, the preservation and revival of the surrounding ecosystem is nothing short of exemplary. Ulaman is a statement and testimony to what can be achieved when the client and architectural design team work together with a common goal to push the boundaries of what is possible to create sustainable intelligent design solutions.
Project gallery
Project location
Address:Kaba-Kaba, Kediri, Tabanan Regency, Bali, Indonesia
客服
消息
收藏
下载
最近













































