查看完整案例

收藏

下载

翻译
Architects:Építész Stúdió
Area:200m²
Year:2021
Photographs:Gergely Kenéz
Manufacturers:Focus
Lead Architect:Tamás Fialovszky
Tree House:Fruzsi Bitter
Contractor:István Kelemen
Interiors:Péter Dudás
City:Szekszárd
Country:Hungary
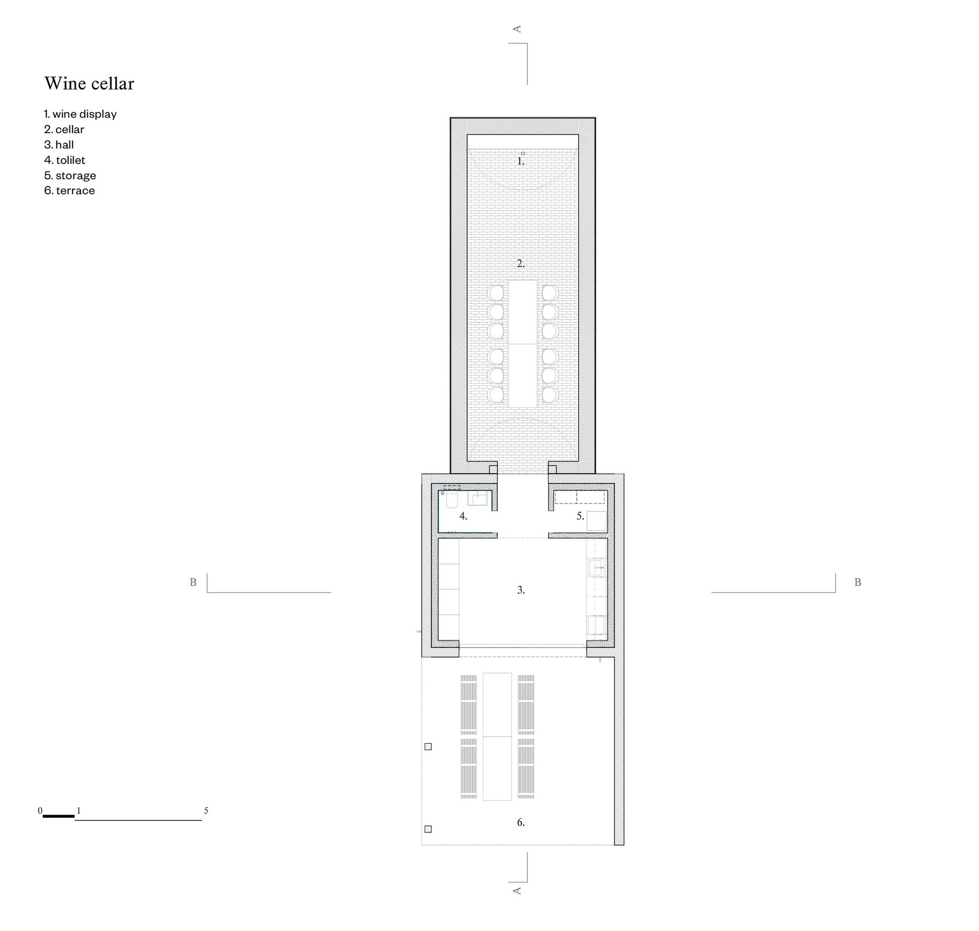
Text description provided by the architects. The guesthouses have been built in the area called Bartina of Szekszárd, Hungary located south of Szekszárd-Séd, next to family cellars and wine houses. The units of the building complex are scattered on the 9,000 square meters of the plots. The plots are located in a transitional area of the city structure: close to the city center and the structure of the streets formed naturally, however, they are not an integral part of it, nor are they among the larger vineyards with their own character in the outskirts of the city. The buildings are looking to create their own identity inside this transitional zone.
The agricultural history of the area influenced the architectural character resulting in a simple, restrained appearance. The three main units follow the direction of the slope and the plot, calmly sitting on the hillside. The houses are distanced from each other for privacy and intimacy as they look over the eastern valley. While they face towards the view of the city the architecture allows the setting sun above the hills to enter the homes as well.
The lodges are sunk into the hillside sitting on top of a solid concrete pedestal, which is combined with the light wooden structure of the roofs. This combination of the two structures is quite common in agricultural architecture and allowed the houses to ease into the landscape without rising too high.
The interior layout is quite simple with only sleeping and bathing areas being separated from the living spaces. It was important to extend the interior towards the garden with covered and open terraces. High quality natural materials were used throughout the construction most prominent of which is the larch structure, windows and shades.
Project gallery
Project location
Address:Szekszárd, 7100 Hungary
客服
消息
收藏
下载
最近










































































