查看完整案例

收藏

下载

翻译
Architects:GLUCK+
Area:6080ft²
Year:2014
Photographs:Paul Warchol
Manufacturers:Arcadia Custom,Excelsior Wood Products,Herrington's,Ipe,Northeast Precast,Rais
Structural Engineer:Silman
Lighting:Lux Populi
MEP:IBC Engineering Services Inc.
Project Team:Shannon Bambenek, Andrew Brown, Peter Gluck, Eric Schaefer, Luke Winata, Stacie Wong
Glazing Consultant:Forst Consulting Co. Inc.,Forst Consulting Co.Inc
Geotechnical Engineer:Gifford
City:Nueva York
Country:United States
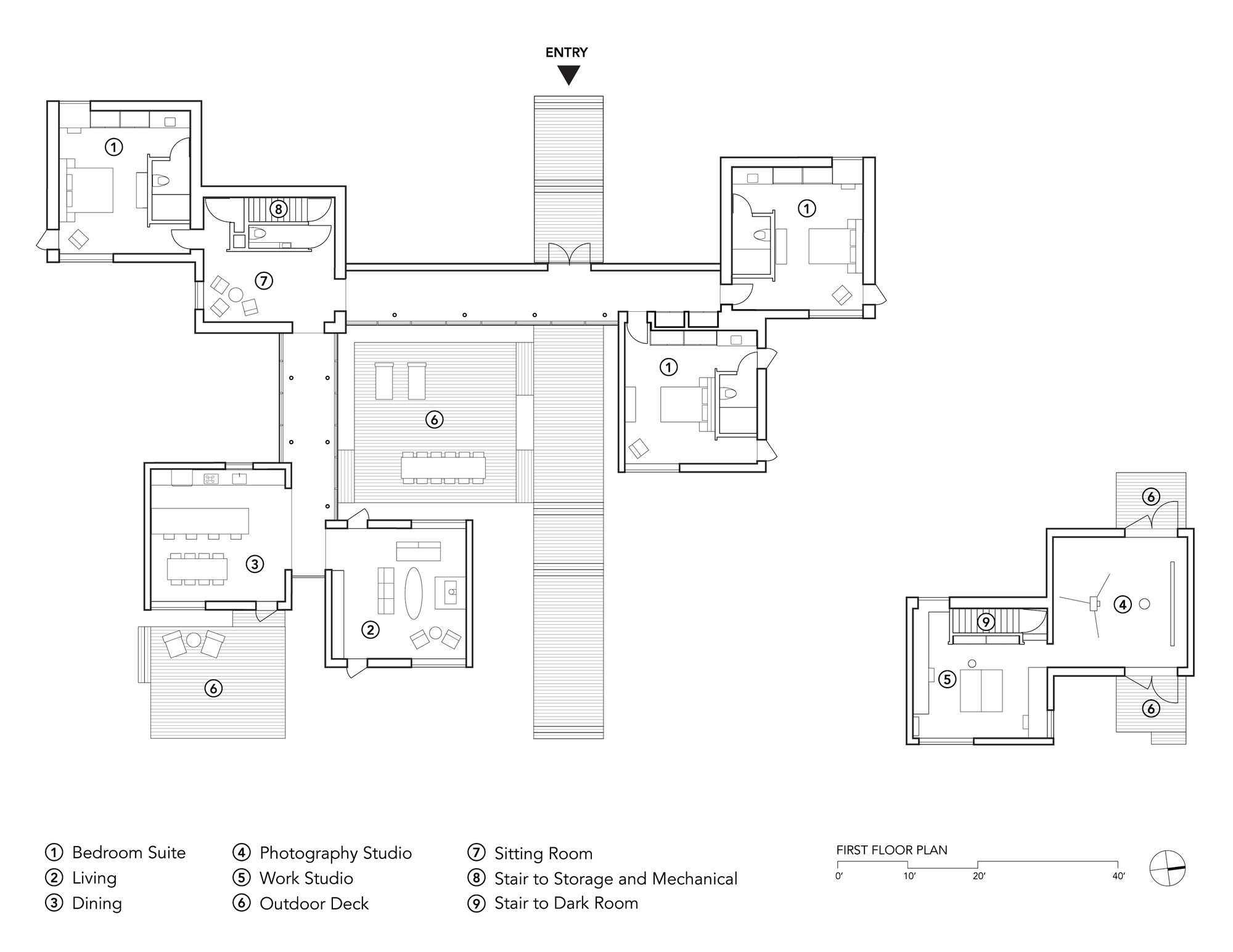
Text description provided by the architects. Located on a land conservancy, a collection of wood-clad cubes orient toward a pond on a sloped site. These eight forms touch the ground lightly and follow the contours of the land, linked by glass enclosed hallways. The simple shapes are strong silhouettes in an agricultural landscape, organized in a shifting grid akin to farming plots in the area. The slatted weathered hemlock cladding is a nod to the utilitarian barn structures that dot the local landscape.
From the drive approach, the house gives little away. The solid and almost barn-like cubes flank the entry that is simply enclosed by a burnished concrete wall with high clerestory. Upon entering, the entry opens up to a glass “bridge,” revealing the pond beyond. Designed as a working retreat for an experimental photographer, the single room structures are divided by function — live, work, sleep. A detached cluster of cubes houses the photography studio and darkroom. Living, dining and bedrooms comprise another cluster centered around an outdoor courtyard.
There is a porosity to the interior world of this retreat. Glass hallways link the cubes and transform into open air bridges with simple sliding doors. Large picture windows and door openings align for expansive views to the landscape. The result is privacy between the different programmatic elements in each cube, with a visual layering of space as the land is slowly revealed.
Project gallery
Project location
Address:Nueva York, United States
客服
消息
收藏
下载
最近



















