查看完整案例

收藏

下载

翻译
Architects:Architects H2L
Area:151m²
Year:2019
Photographs:Seongcheol Kim,Woochul Jung
Manufacturers:Trimble Navigation,WITHJIS
Lead Architects:Changyong Hyun, Junghyun Hwang
Construction:BNB Construction
Design Team:Yongjae Kim
City:Seoul
Country:South Korea
Text description provided by the architects. Small houses are no longer unfamiliar words to us. In an older city sliding down the downward curve of development and growth, there is no value prioritizing efficiency and cost-effectiveness. And that "definite" will be applied to finding and building homes. Those who take a peek at architecture and life beyond in urban areas that they would not have looked back on in the past are often found around us, and architects are also agile in responding to such changes and presenting various works. Our Shingongdeok-dong Micro House is also a common and plain small house that was born at the site of this rustic disorder.
The land was a small hillside village, where 20 small lots of land were huddled together to avoid the development of large apartment complexes. Most of the parcels were about 20 to 30 pyeong, and the area to cover the land was only about 10 to 15 pyeong. Among them, the owner of the building, who purchased a small piece of land, was surprised by these numbers because they were setting the scale of the existing building that exceeded the current building-to-land ratio and sat comfortably outside the boundary line. It is common in our city, where the regulatory power of the law has become as strict as the speed of development of the city, but it was an uncomfortable moment when the architect's first plan collapsed his dream of becoming an architect.
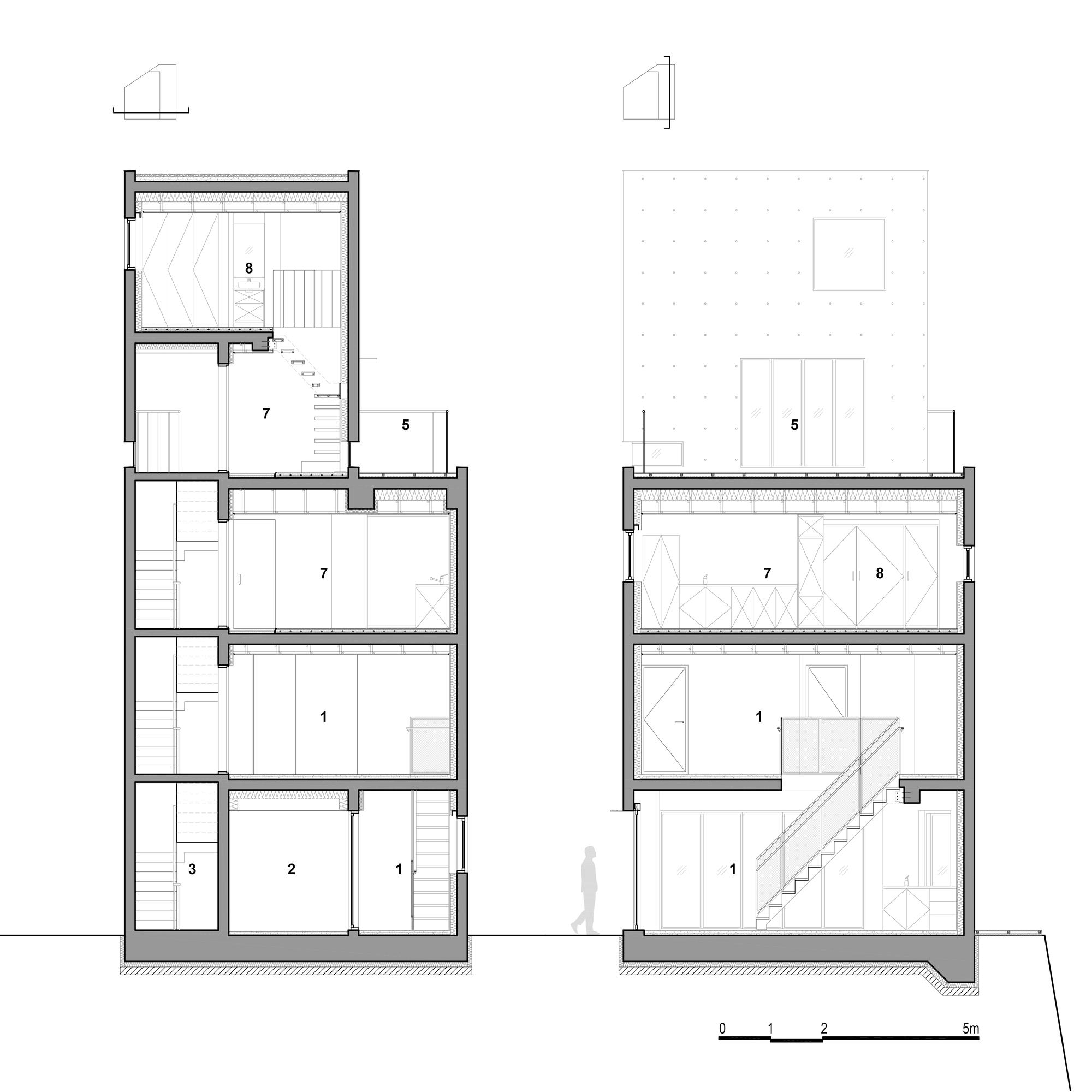
After much consideration, the owner of the building decided to convert the initial plan, which was a combination of direct residence and rental, into a lease-only one, and to decide the lower floor as an atelier-style work space and the upper part as a rental house. This number, which symbolizes the limited size of a small house, is distributed most fiercely in the areas where the land meets. The Shingongdeok-dong Micro House requires entry into and out of second-generation homes and separate entry space into Atelier's work space. And I had to have a parking lot on the front page. The front of the building did not allow any room for residents, studio users, and vehicles.
In order to secure as much internal space as possible, each door was planned as an automatic door sliding that was advantageous for the utilization of longitudinal space by opening left and right instead of a door that had to be moved inside and out to secure a rotating space. After entering the studio, the minimum steps leading directly to the second floor's workspace were laid to replace the hall, and instead, a reception room and conference room with a backyard was created along the stairs. After the architecture sat down, after putting various equipment manholes and small flower beds in the left and right sides of the notice, the architect's plan filled the small land, as if filling the last piece of the puzzle.
The houses were divided into the first generation on the third floor, which devotes 10 pyeong of building area, and the first generation on the fourth and fifth floors, which are divided into two floors. The third floor is a one-room household that makes the most of the pentagonal plane. It has increased efficiency by placing facilities and service spaces on the side of the pentagonal, and living spaces on the rest of the square. The fourth and fifth floors have retreated volumes due to the restriction on the diagonal line between the North and the North, with the lower floors planned for their own public areas, including kitchens, small living rooms and terraces, and the upper section planned for a private space where dress rooms and bedrooms can be divided.
The appearance of such a fierce house was rather plain and plain. The condition of the land and the will of the architect determine the outline and volume, and the architect organizes the proper spatial structure within it and then arranges the openings faithful to the function with the proper rhythm is all about the design. However, it was burdensome for the 4th and 5th floors, where the volume decreased, to be seen as a continuous mass with the lower part, and the only active attempt is to divide them into webbing and float them and place a small pillar inside to replace the wall structure. Like this, the land for small houses may be waiting for us after its existence has already determined the birth conditions of architecture. Of course, it's up to the architect to dig carefully and persistently into those tightly hidden stories.
Project gallery
Project location
Address:Seoul, South Korea
客服
消息
收藏
下载
最近






































