查看完整案例

收藏

下载

翻译
Architects:arba
Area:75m²
Year:2019
Photographs:Pierre Gourvennec
Lead Architects:Jean-Baptiste Barache, Sihem Lamine
City:Murat
Country:France
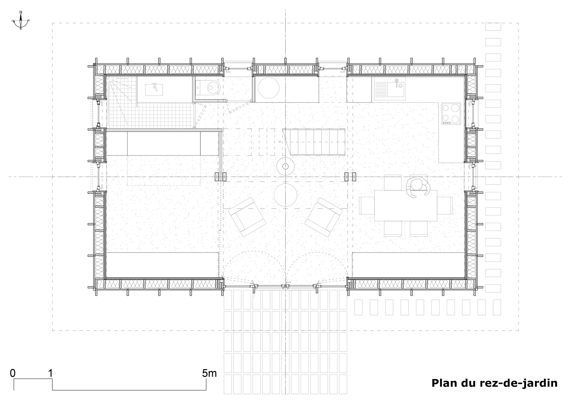
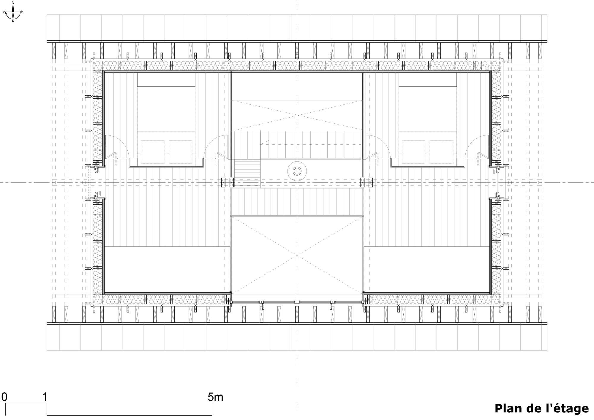
Text description provided by the architects. Influenced by the old slate roofs with curved shapes and carried by rafters which bend under the weight of the stone -or by pieces of framework which were not all straight- and in opposition to the stiffness of the strictly flat roofs from the modern period, this house is covered with a flexible and overflowing roof, convex on one side, concave on the other side. The roof is opened to the South to catch the winter sun, and closed to the North to protect the house from the winds.
Under the roof, the shell consists is made of a larch module, filled or glazed, with fixed or openening window, which breaks the walls down to a familiar scale of the human body.
Inside, the whole volume under the framework is visible from everywhere, but never completely visible, which provides privacy in this unit shell.
In order to show and highlight the work of the four craftsmen who participated in the construction of the house, the concrete slab shaped by the mason is left untreated, the frame house is showcased and visible from everywhere, the electric cables run along the structural pieces without hiding themself, and the second work is entirely made of birch plywood.
Project gallery
Project location
Address:15300 Murat, France
客服
消息
收藏
下载
最近

























