查看完整案例

收藏

下载

翻译
Architects:ROOM+ Design & Build
Area:810m²
Year:2019
Photographs:SM Art Studio
Manufacturers:AutoDesk,Acor,AluV,Autodesk Media and Entertainment,E-Egger,Galaxy Curtains,INAX,Kartell,M&A Arttiles,MPE,PT&T Wood Furniture,Star Blinds,TOSHIBA,Toto,Trimble Navigation,Vietceramics
Lead Architect:Vinh Phuc Ta
Engineering:ROOM+ Design & Build
Landscape:ROOM+ Design & Build
Consultants:ROOM+ Design & Build
Design Team:Casa Yen Nguyen, Cong Dat Nguyen, Thanh Gia Han Le, Thanh Thuy Vi Le, Khanh Duong Ngo, Hieu Hien Trinh, Kim Quy Nguyen
Collaborators:P+P Design & Construction
Country:Vietnam
Text description provided by the architects. The Cities & Gardens is a 7-level building located at a beautiful spot close to the Ho Chi Minh City CBD. The building accommodates a coffee shop; eight rental boutique suites; and a rooftop garden. The site is consisted of two identical land lots of 4x22 meter each with view to a small parkland. The building is divided into two adjoined parts as each land lot is owned by one of two owners who are also brothers.The first part was built 6 months ahead of the other one due to the financing of the owners.
Saigon is a city of multi-culture and opportunities. Every year, the city welcomes million visitors from all around the World come to Saigon to experience the culture, enjoy the city life and look for opportunities. In another aspect, as an unavoidable consequence of poorly controlled developments, the green spaces of the city have been sacrificed dramatically to give way for big building and infrastructure developments. We proposed the concept of “Cities & Gardens” with the intention to create a building that not only reflects the vibrancy and diversity of the city but also engages and connects with the refreshing nature at the same time. The built-form and interior spaces were designed with conceptual inspirations drawn from some notable cities around the World and natural elements in both direct and imaginative ways. We proposed a setback of 6 meters to give space for a landscaped courtyard with big trees and outdoor furniture.
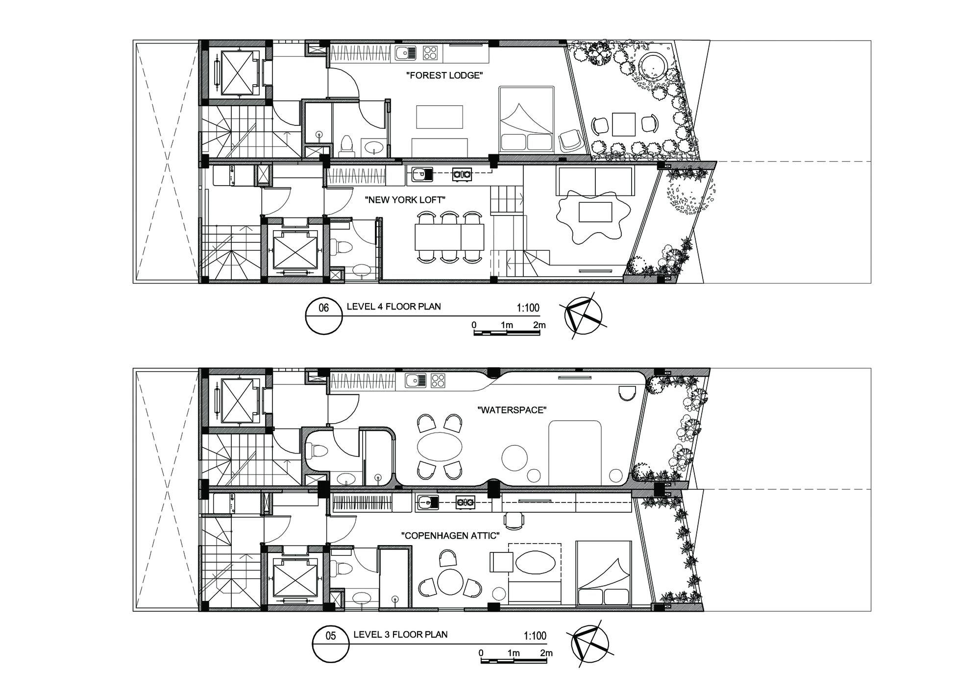
The building facade is consisted of a series of angled blocks, each block is completed with a distinctive design to express the diversity and individuality of the suites while also maintains a consistent built-form. The interior space of each suite also has a unique design with the creative use of forms, materials, colors and details. The Tokyo Home is a tranquil space with design experience learned from Japanese architecture while the Parisian Suite re-imagines the romance and elegance of Parisian architecture in a modernized way. The Earth Garden was uniquely designed in Vietnam vernacular style and sourced from local materials. The interior of the Copenhagen Attic implies the warmth and coziness by the use of oak wood and soft furnishing.
The Waterspace was inspired from the imaginative water body with its dynamic form, and finished with transparent materials. The Loft is a double space suite with the sensible use of industrial and raw materials which recall the 1950s loft in New York. The Forest Lodge has wooden interior and a big forest-like garden filled with various plantings and outdoor furniture. The Saigonese Terrace on the top floor is finished with traditional and local materials such as cement tiles, bamboo screens, white terrazzo, and has a “Saigon-style” terrace filled with local herbs, vegetable and fruit trees. Finally, a cafe and co-working space located at the ground and mezzanine levels and the rooftop garden are where all guests relax, share the table, and meet each other occasionally or at community events hosted by the management.
Project gallery
Project location
Address:District 3, Ho Chi Minh City, Vietnam
客服
消息
收藏
下载
最近





























