查看完整案例

收藏

下载

翻译
Architects:DFJ Architects
Area:120m²
Year:2017
Photographs:Christopher Frederick Jones
Manufacturers:GRAPHISOFT,ACT 3D,Alspec,Lysaght
Landscape:Alex Petersons ‘InRock Landscaping’
Builder:Stehnbuild
Structural Engineering:Westera Partners
Civil:Westera Partners
Design Team:Verity Nunan
Civil & Structural Engineering:Westera Partners
City:Byron Bay
Country:Australia
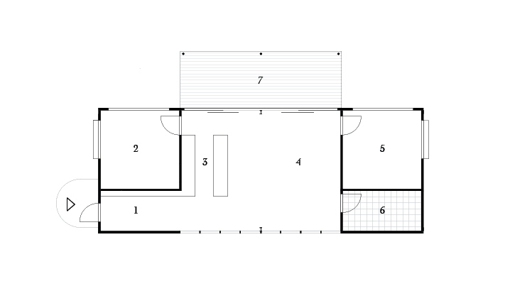
Text description provided by the architects. The small pavilion, situated on the southern edge of the Tweed Caldera, consists of two bedrooms, bathroom, kitchen and small living room running along the contour of the land. The brief was to build small and simply, allowing for a form of ‘elegant camping’ on the site that doesn’t dominate its visible, elevated position.
The roof pitch mirrors the grade of the hill, directing the prevailing north-easterly winds over the structure, creating a protected garden space behind. An enormous banking window visually brings this southern garden into the living space, while also allowing views up into the rainforest canopy. Delivered on a small budget, certain key elements were prioritised to maximise impact, and local makers engaged to avoid expensive design and documentation processes.
Sustainability and passive environmental design sees the shed provide outstanding cross-ventilation and thermal mass, with all grey and black water processed on site. Possum Shoot Shed was the recipient of the 2017 AIA NSW Country Division Award for Small Projects
Project gallery
Project location
Address:45/1 Porter St, Byron Bay NSW 2481, Australia
客服
消息
收藏
下载
最近










