查看完整案例

收藏

下载

翻译
Architects:Elastic Architects
Area:8918m²
Year:2022
Photographs:Erieta Attali
Manufacturers:Novamix,ALUMINCO,Almeco,Deloudis,ENKA,Furniture Gallery,Grammatikas,Interni,Kakarountas,Mexil,Peraki,Sarlas,Valelis,Xenex
Construction Supervision:Stratis Skopelitis
Mep Consultant:JEPA
Lighting Designers:Archtube
Landscape Designers:Greenways
Project Managers:Hill International
Main Contractors:DBD Athens
Acoustics Consultants:Timagenis
Design Team:Ria Vogiatzi, Alexandros Xenos, Glykeria Bimi, Rania Ladianou, Virginia Giagkou, Mado Kapodistria, Katerina Ioannidou, Dimitris Michele Danielle, Vasilis Mpountopoulos
Structural Engineer:Konstantinos Spyrakos
Architectural Finishes:Ippokampos
Av Consultants:AKU
Signage Design:Brattis Sign
City:Corinthos
Country:Greece
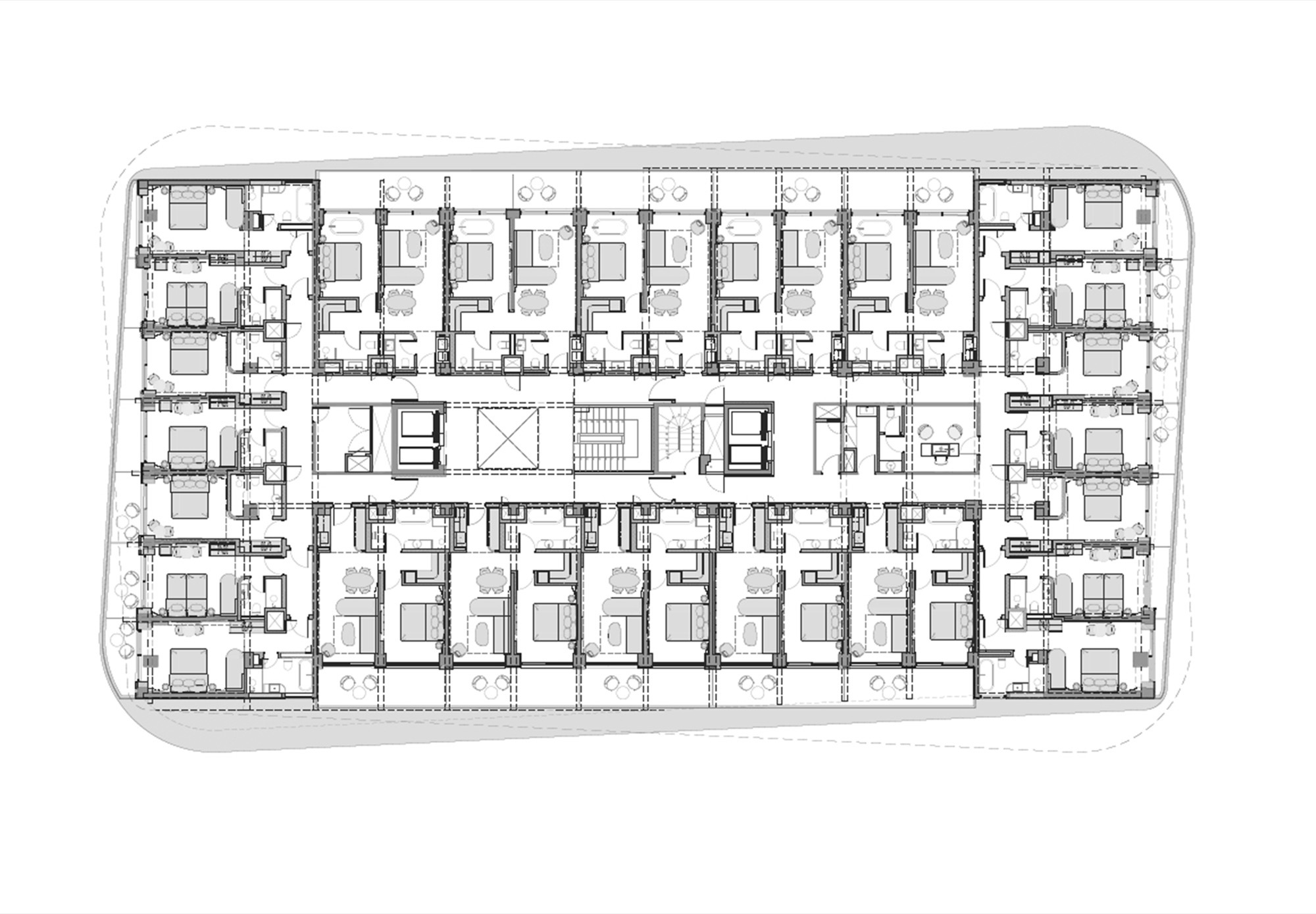
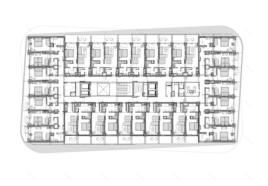
Text description provided by the architects. The total redesign of the iconic, mid-70s, “Hanikian” hotel, embodies elements of the topography of its legendary location on the Corinthian Gulf, shaping a new architectural identity. The formerly rectangular, repetitively formed, modernist building was endowed with an organic form, inspired by landscape formations under the bright natural light.
The design concept for the new hotel highlights the material and sensual properties of its location on the northern edge of the Greek Volcanic Arc, besides “Sousaki, a craterless volcano silent for 2.7 million years. Inspired by a mythological embodiment of a volcanic eruption, the design introduces panoramic views, and emulates the fluidity of lava: The square volumes of the building become a stack of white “pebbles” while successive curved surfaces on the facades of the building give a dynamic form and a sculpture effect that creates an overall sense of movement.
The hotel offers 166 luxury rooms and suites providing indoor dining, two bathrooms, and freestanding bathtubs. Common spaces include a lobby, an indoor sea view bar with a bronze sculptural countertop under an undulating ceiling, an all-day dining restaurant, gym, and spa, as well as a magnificent infinity rooftop shallow pool with bar and lounge seating areas offering extended views over the Corinthian Gulf. Consecutive curved surfaces create a renewed visual identity, in exterior and interior walls, finishes, lighting design, and decorative elements.
The color palette features volcanic shades of terracotta and amber, bronze mirrors, gold, and tinted glass. Bespoke furniture designed for all common spaces offers functionality while following contemporary aesthetics, inspired by distinctive natural elements. Emphasizing energy savings during hotel operation and a low energy footprint, the hotel was designed with creativity and innovation while encompassing functionality, sustainability and cutting-edge aesthetics.
Isla Brown Corinthia was awarded the IDA 2022 Architecture/ Hotels & Resorts Design GOLD Award. The International Design Awards (IDA) recognizes, celebrates, and promotes exceptional design visionaries and discovers emerging talent in Architecture, Interior, Product, Graphic, and Fashion Design worldwide. The project also emerged as the winner in the Excellent Architecture Category of the prestigious international German Design Awards 2024, presented by the German Design Council. The German Design Awards set international standards for innovative design developments and competitiveness in the global market.
Project gallery
Project location
Address:Corinthos, Greece
客服
消息
收藏
下载
最近


























