查看完整案例

收藏

下载

翻译
Architects:3mas1
Area:5708m²
Lead Architects:Juan Fernando Flórez Ángel
Assisting Architects:Michael Carmona
Interior Design:Tatiana Garcia Posada, Manuela Botero Uribe
Landscaping:Greenfield
Lighting:Milkluminance
Program :Hotel
City:San Antero
Country:Colombia
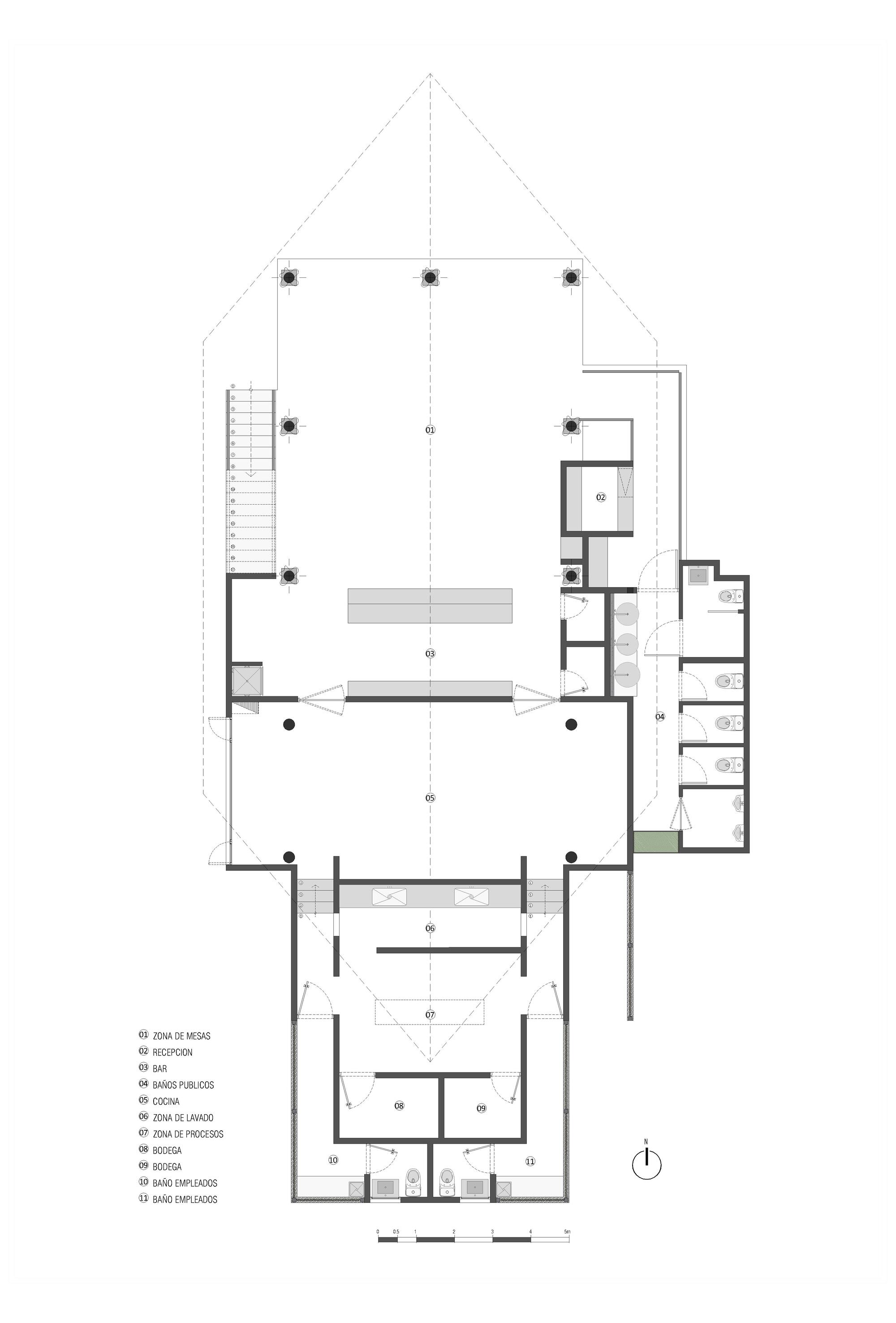
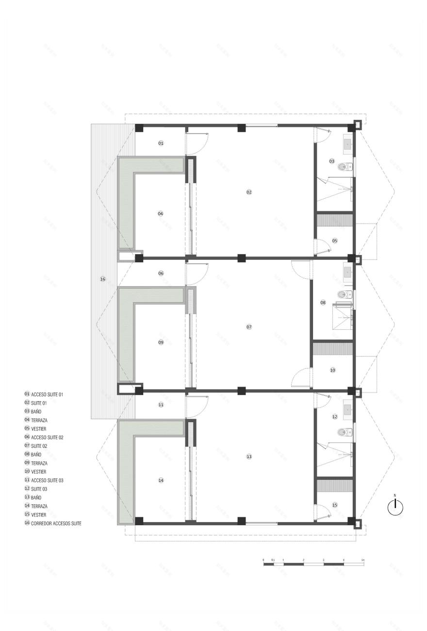
Text description provided by the architects. The Project is the result of combining the needs of a luxury hotel, thus covering the demand for accommodation on the beach of Punta Bolívar, municipality of San Antero, near Montería and Medellín; added to the conditions of the terrain in a plot of 8,885 m2, a beachfront of 63 meters and a length of 137 meters, with native vegetation. Therefore, the project is developed in strips that as they are further into the sea, the buildings rise above stilts, avoiding possible flooding due to climate change and benefiting from the view of the cabins that are in the first line of the sea. The project begins with a breakwater that allows a view of the Gulf of Morrosquillo, then in the first line is located the pool area and the bar, in the second line there are three family cabins and a service cabin with a restaurant, in the third line there is another cabin with suites and 8 bungalows that exceed a height of 10 meters, to have a view of the cabins in the second line, with the stilts below which the gardens are structured, connected to a dense jungle that comes from the back side, for the enjoyment and relaxation of visitors; finally, the service line is generated, within which there is a spa, offices, a children's playroom, a gym, parking lots, and technical areas. It is worth noting that all the water in the complex is taken from the sea and becomes potable to not impact the aquifers of the sector. The hotel was developed hand in hand with interior designers and the premises were to generate employment for the nearby community with no income, local artisans from the area were used in every detail of the hotel to highlight that, within luxury, local art is the protagonist. All materials were sourced from the area to reduce environmental impact, and gardens were implemented to create the transition between the beach, the built environment, and the dense jungle.
El proyecto empieza con un espolón que permite generar una vista al golfo de Morrosquillo, luego en primera línea se ubica la zona de la piscina y el bar, en segunda línea se ubican tres cabañas familiares y una cabaña de servicio con restaurante, en tercera línea se ubica otra cabaña de suites y 8 bungalow que superan la altura de 10 mts., para tener vista sobre las cabañas de segunda línea, quedando abajo los palafitos sobre los cuales se estructuran los jardines que se unen a una densa selva que viene del costado posterior, para el disfrute y relax de los visitantes; por último se genera la línea de servicios, dentro de los cuales hay un Spa, oficinas, salón de juegos para niños, gimnasio, parqueaderos y áreas técnicas, es de anotar que toda el agua del conjunto se toma del mar y se vuelve potable para no impactar los acuíferos del sector.
El hotel se desarrolló de la mano de unas interioristas y las premisas fueron generar empleo para la comunidad cercana carente de ingresos, se utilizaron artesanos de la zona en cada detalle del hotel para resaltar que, dentro del lujo, el arte local es el protagonista. Todos los materiales fueron de la zona para disminuir el impacto ambiental y se implementaron unos jardines que generan la transición entre la playa, lo construido y la espesa selva.
Project gallery
Project location
Address:San Antero, Cordoba, Colombia
客服
消息
收藏
下载
最近
































