查看完整案例

收藏

下载

翻译
Architects:Mange Bekker Arkitektur
Area:860m²
Year:2023
Photographs:Sam Hughes
Manufacturers:AutoDesk,Swisspearl,Bergene Holm,EGE,Fora Form,Nordan,Oras,Polyflor,SG armaturen,Vental,WEBA
Lead Architects:Sam Hughes
Electrical engineer:Møster Installasjon AS
Interior Architect:Bruket arkitekter AS
Frode Solbakk / Client:Voss Active AS
Project Manager:Thomas Hopland, Arkoconsult AS
Foreman:Michel Karlsen Skudal, Arkobygg AS
Fire Consultant (Consept):Sweco AS
Fire Consultant:Firesafe AS
Furniture Carpenter:Styve møbelsnikkeri AS
Country:Norway
Text description provided by the architects. Elva Hotel (The River Hotel) is a small hotel in Voss, Norway. Voss is renowned for its spectacular landscape and as a popular destination for outdoor and extreme sports enthusiasts. The client’s main goal was to establish unique accommodations, connected to their existing activities center, for active guests to experience and explore the local nature.
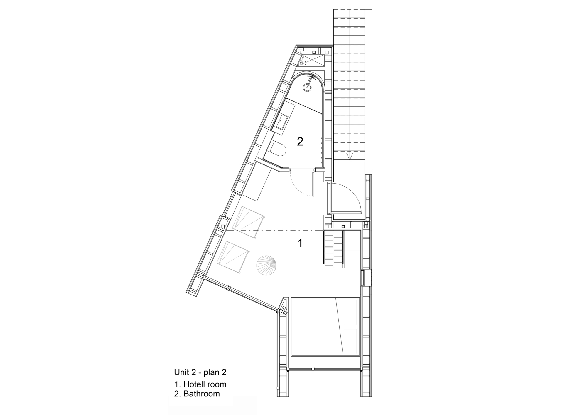
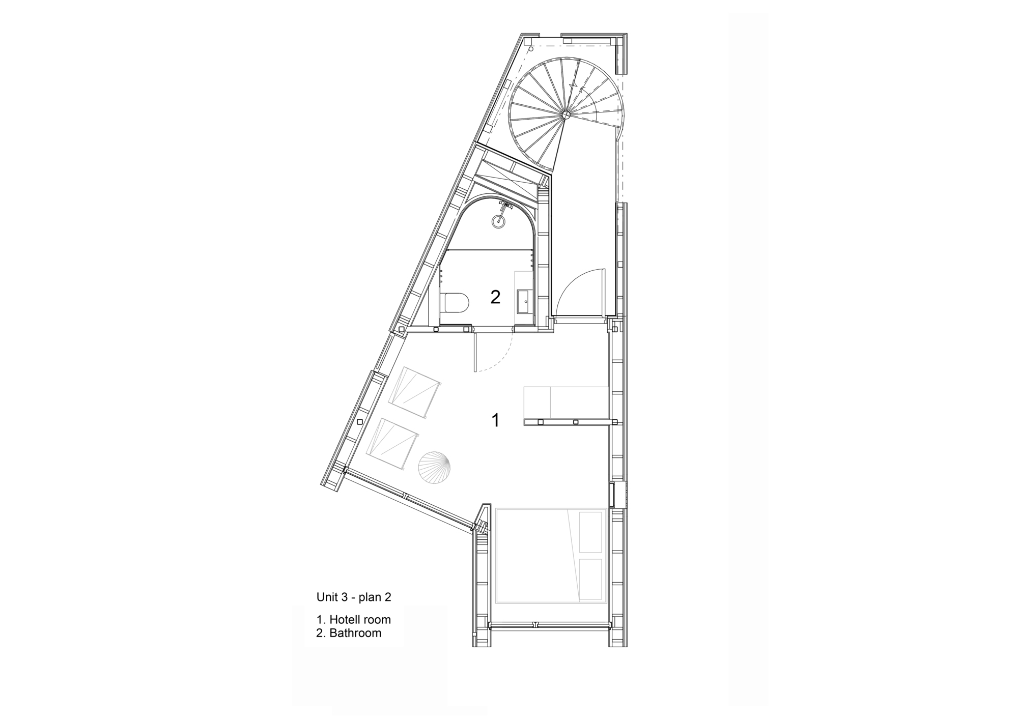
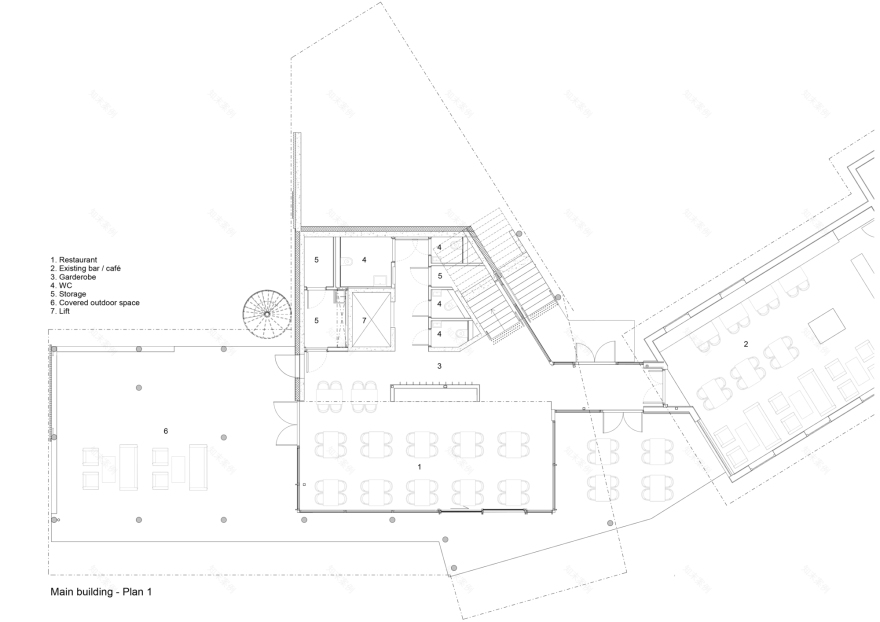
The 14-room hotel consists of five freestanding small tower houses each with one to three hotel rooms, and a main building with four wheelchair-accessible rooms, reception, conference room, and restaurant which connects to an existing building with bar, café, kitchen, and spa area. The restaurant serves locally produced food. One of the main challenges is that most of the site is two to four meters under the projected flood zone levels after factoring in future climate change. Also, consideration had to be taken for the protection of vulnerable wetland habitats along the water’s edge, especially throughout the construction period.
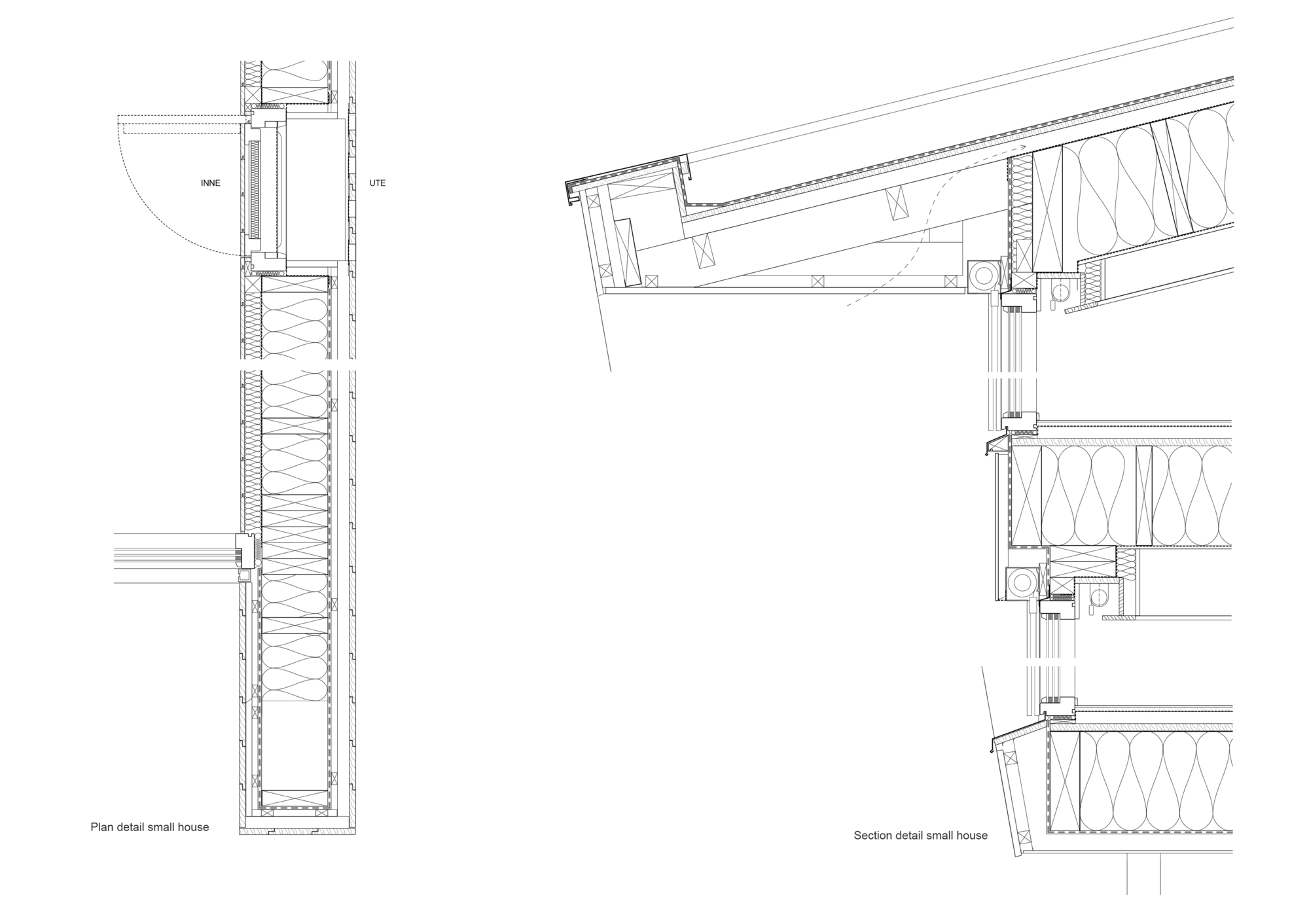
Where required the buildings are raised on stilts above the 200-year flood level. Only the restaurant which connects to the existing bar, kitchen, and spa area is placed below the flood level and designed to withstand flooding through water-resistant material use, with all technical installations placed a minimum of 1,4m above the floor. The raised buildings also create a variety of covered outdoor spaces for the guests and allow visual transparency through the buildings toward the waterfront.
The freestanding units are placed 1,5m lower than the adjacent parking area, and connected to the main building by a sunken covered wheelchair-accessible walkway which creates a natural boundary towards the nature area surrounding the hotel. This height difference also reduces the visual height of the buildings from the neighboring houses behind.
Natural colored materials have been chosen so the buildings blend in better with the surrounding landscape. The outdoor areas are planted with local species of meadow grass and flowers to encourage local insect and birdlife.
Project gallery
Project location
Address:Nedkvitnesvegen 25, N 6, 5710 Skulestadmo, Norway
客服
消息
收藏
下载
最近














































