查看完整案例

收藏

下载

翻译
Architects:Laboratory of Architecture #3
Area:4500m²
Year:2023
Photographs:Giorgi Mamasakhlisi
Lead Architects:Dimitri Shapakidze, Irakli Abashidze
Collaborating Architects:Tamar Tekhova, Tata Koiava,
3 D Visualization:Kakha Maisuradze, Kakha Vachadze
City:T'bilisi
Country:Georgia
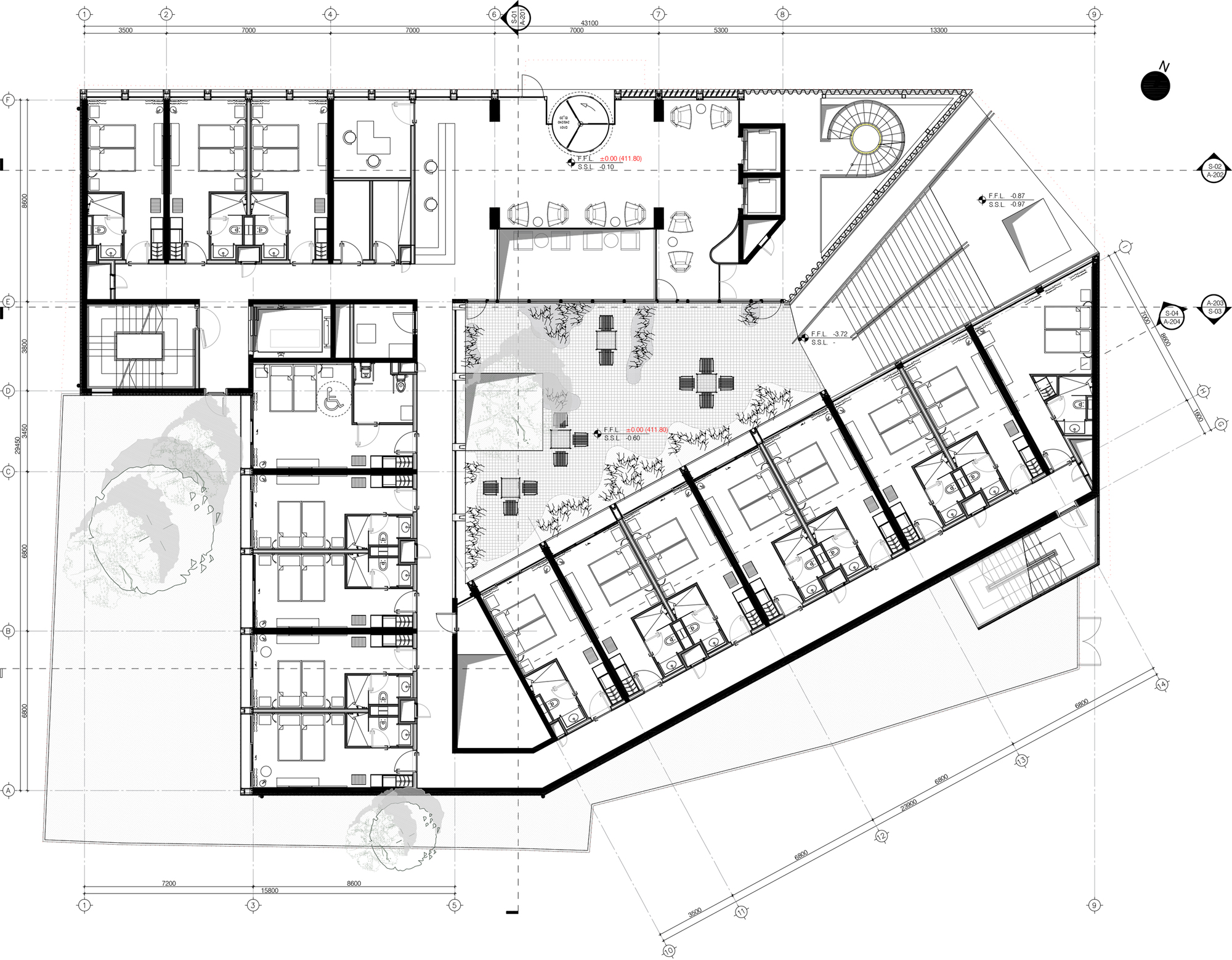
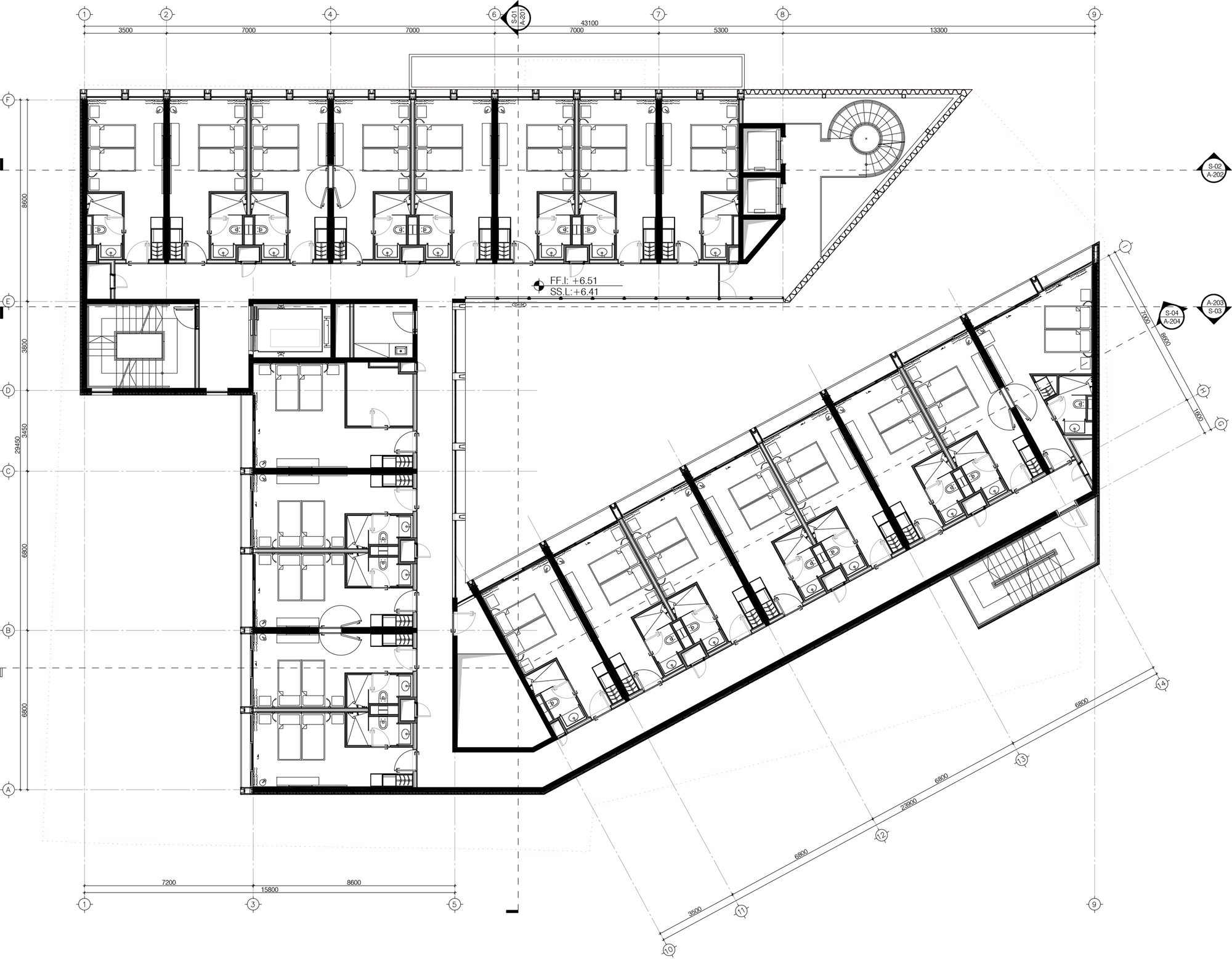
Text description provided by the architects. Situated within the historic confines of old Tbilisi, the new hotel occupies a space of significance. This winding thorough road, recognized as the "street square," stands as one of the city's most ancient relics. It was a vital conduit for numerous historic merchant caravans and artisanal streets.
Simultaneously, it functions as a bustling transportation artery and a communal gathering area. Within its bounds, an array of public functions coalesce, forming a tapestry of ethnic, religious, and intercultural diversity. This intricate mosaic serves as a defining feature, subtly woven into the core of the building, which itself embraces the mosaic style reminiscent of the 1970s.
The core objective guiding the design of the hotel's architecture and interior is to introduce a new dimension to this historical tapestry, seamlessly integrating and reflecting the vibrant milieu. Taking the place of a 1980s administrative building, the new structure emerged.
The rationale behind the former building's demolition stems from the realization that transforming it into a full-fledged hotel would necessitate expansion, potentially disrupting the scale of the historic surroundings. In contrast, the new edifice perpetuates the architectural heritage of the old city. It echoes the tradition of structures that mirror the sharp corners where ancient streets intersect. From these vantage points, one can simultaneously appreciate the imposing facade facing the street and the traditionally adorned inner courtyard.
Project gallery
Project location
Address:15 Kote Afkhazi St, T'bilisi 0105, Georgia
客服
消息
收藏
下载
最近






































