查看完整案例

收藏

下载

翻译
Architects:Studio BO
Year:2021
Photographs:Alessio Mei
Manufacturers:Focus
Lead Architect:Omar Benmoussa
City:Casablanca
Country:Morocco
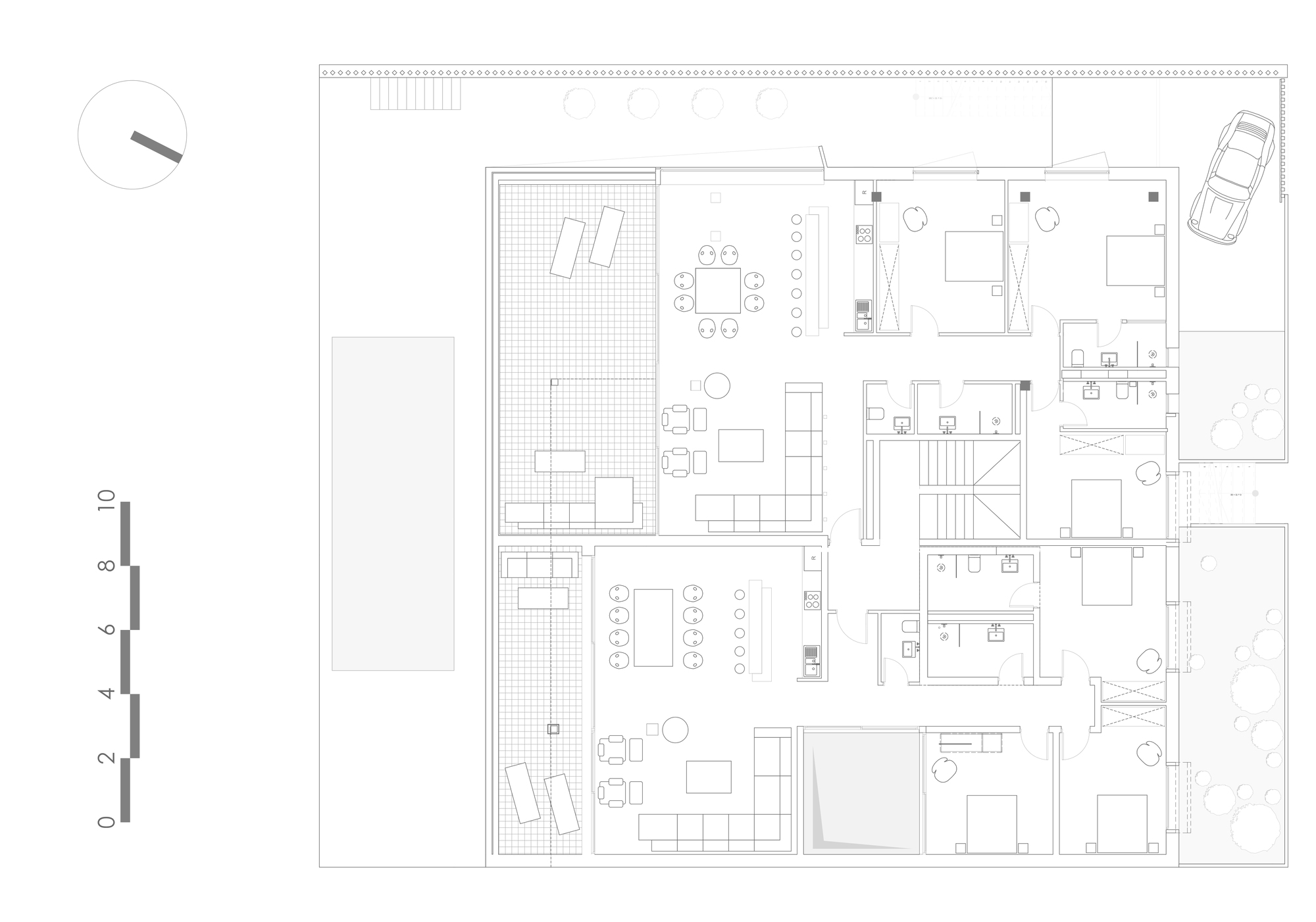
Text description provided by the architects. The project takes place in the village of Imsouane. It is a small fishing village between Essaouira and Agadir in southern Morocco. This village is a well‐known spot for surfers around the world. They call it the “magic bay”. The project is a boutique hotel that is on a cliff in front of the magic bay. In addition to being on the front line, the building is also raised by a good thirty meters above sea level.
Along the national access roads to Imsouane, we can observe these agricultural lands surrounded by a fence wall made from beigeish limestone simply stored on top of each other. This was the trigger for the concept of the project, namely a work of stratum, a first volumetry containing the 3 lower levels, overhung by a whitish volumetry containing the last upper floor. The particularity of the project is that it is 2 adjoining buildings and that it is an R+1 with 2 exploitable basements. From the street, the building looks like only 2 levels, while from the seaside, there are 4 usable levels.
The difficulty of the project was to dig the limestone cliff, to sit the building with its 2 basements open to the sea. The entire structure of the building was made of concrete. Because of the 2 adjoining buildings, certain things have been shared, such as the stairwell, or certain services such as the yoga room, the lobby, or the lounge of the building. Thanks to this pooling, we were able to create a skylight that crosses the building from the rooftop to the last basement, to bring natural overhead light and natural ventilation to the different housing units.
The main access is from the ground floor which is the 3rd level from the bottom. The 20 housing units are located in the 3 upper levels of the building. All these units have a view of the “magic bay”. The principle of the project was to create a building with several housing units all facing the sea. The building offers access to the rooftop with an outdoor bar, a yoga area, and a lounge to appreciate the horizon. The building also offers access to the common areas of the last basement, in which there are the kitchens, the catering area, a yoga room, a sauna and Hammam, a lounge, and the main terrace which surrounds the infinity pool.
The materials used are quite different. The Zellige beldi coating was used for all the wet rooms, kitchen, and bathroom, but also for the bedrooms, dressing room, and certain hallways. Also, the slabs were not entirely covered by a false ceiling to leave apparent the texture of the raw concrete formwork. All the woodwork of the building was made of exotic wood straight from Bali. The swimming pool has also been clad in green stone from Bali. Apart from the floors covered with beldi zellige, the rest of the building was covered with 3m by 1.5m earthenware tiles.
Project gallery
Project location
Address:Casablanca, Morocco
客服
消息
收藏
下载
最近





































