查看完整案例

收藏

下载

翻译
Architects:Architectural Studio Chado
Area:600m²
Year:2015
Photographs:Alexandra Slavogorodskaya,Evgeny Denisyuk
Founding Partner / Senior Architect:Evgeny Zadorozhniy
Structural Engineer:Sergey Barilov
City:Konstantinovsk
Country:Russia
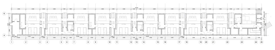
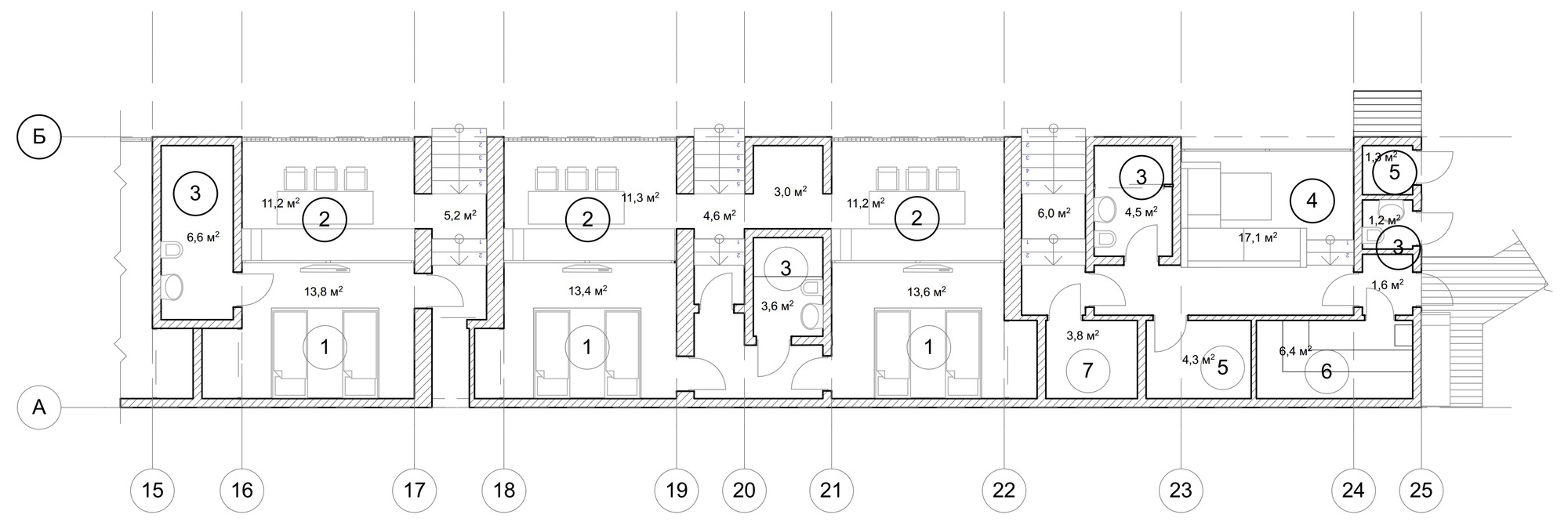
Text description provided by the architects. Water, forest, stone, timber: a single-story dormitory in the forest is built in complete harmony with the natural landscape. Tranquil stone forms do not distract attention from nature, which is constantly in motion: a trembling of leaves, a flow of water, and a gentle breeze.
Through the huge panoramic windows, inserted directly into the stone walls, opens a peaceful view of the river. Each room has a natural extension – a terrace with a table and sofas, which connect the internal and external spaces.
The building is connected with the natural environment by the main construction material: a stone with an interesting texture, which was extracted in the quarry of the neighboring village.
Project gallery
Project location
Address:Pravoberezhnaya str., 1, Konstantinovsk, Óblast de Rostov, Russia
客服
消息
收藏
下载
最近


































