查看完整案例

收藏

下载

翻译
Architects:Mastrominas ARChitecture
Area:5771m²
Year:2017
Photographs:George Fakaros,Georg Roske
Manufacturers:Novamix,Sika,COCO-MAT,Ideal Standard,PORCELANA,Ε-PROGETTO
Architect In Charge:Ilias Mastrominas
Art Direction/Interior Design:Lambs and Lions, Berlin
Art Direction:Lambs and Lions, Berlin
Interior Design:Lambs and Lions, Berlin
City:Kos
Country:Greece
Text description provided by the architects. Casa Cook Κοs is a new 5 star resort hotel of 216 beds in a 29.080 square meters beachfront plot, located on the greek island of Kos, in the south east Aegean Sea.
The architectural design attempts to redefine the meaning of tourism accommodation as an offered cultural product and to promote it into an experience for the guest, connecting him with the place, the history and the island’s culture.
The approach is holistic and is carried out by the master plan (urban level), as well as the architectural design, the interior design, the facilities (e.g. gastronomic experience) and furthermore the recreation aspects (e.g. music).
The goal was achieved by the abolishment of the stereotype of the hotel and the creation of an alternative hospitality space where the guest feels like living in a friend’s house, a relaxed atmosphere, where luxury services are offered carelessly and discreetly. Simple materials, raw surfaces, off-white cubic plain forms and dry stone walls, are framed by pines, palm and olive trees as well as aromatic herbs.
The classic main building is deconstructed. The public area acquires the urban arrangement of a traditional greek settlement. Around the central square, the main public functions are articulated in four individual buildings; the reception, the administration, the bar with shop and the library.
In the connecting axis between the main square and the beach-club, one will meet the ground floor spa building which is designed in a plain and modest modular cube-shape architecture. The spa offers a unique range of alternatives including traditional hamam, indoor pool, gym and outdoor yoga space.
The central path drives to the dominant restaurant/beach club complex which constitutes a transaction from the built area to the beach. It connects and serves both, the inner main pool area and the beach. The north wooden veranda oversees the sand dunes and the beach, providing an abundant shelter during warm days.
The idea of the building is abolished and the facilities are freely placed under sheds. The area is adjusted according the weather conditions by a series of big sliding window frames that are secretly located in special niches. When “meltemi”, the strong north wind blows, the beach front window frames are unfolded, protecting the central pool and the internal verandas zone. During chilly days, the sheds can be transmuted into a framed building with unobstructed views.
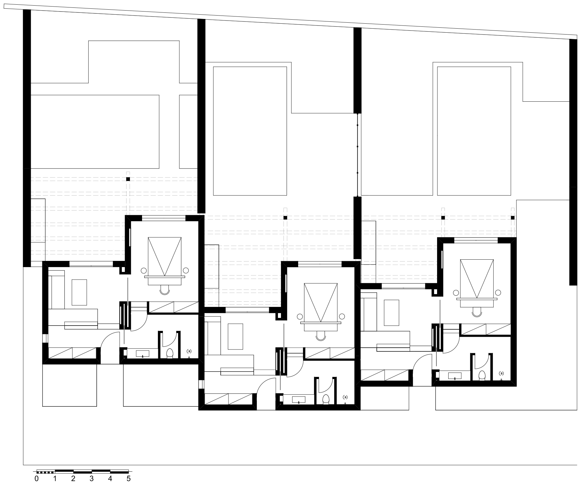
The typology of the rooms consists of three different variants. The standard double rooms are allocated in groups of one to three in “small houses” which are ground floor or two storeys buildings. Another option is the “houses with living room” that are developed in complexes of two or three, sharing a pool and an internal yard. Finally, the “big houses” of one or two bedrooms, with private pool and yard.
The houses are located in three zones according to the room typology. The building allocation and their cubic plain forms refer to the traditional architecture and urban arrangement of the Aegean islands settlements. The concept is integrated with narrow paths that lead to unexpected openings, external staircases and built outdoor sitting areas.
Originally published on January 03, 2018.
Project gallery
Project location
Address:Kos, Greece
客服
消息
收藏
下载
最近
















































