查看完整案例

收藏

下载

翻译
Architects:OR Architecture,Smart Construction of Villages
Area:201m²
Year:2022
Photographs:Shaoshuai Ren,Changhui Zheng
Manufacturers:Chenhong,JP Life Standard
Lead Architects:Chujin Xue, Xiaoqing Hu
Structure Design:OR Architecture
Landscape Collaborator:OR Architecture
Design Team:Yan Xiong, Sheng Luo, Yanyi Chen, Wenshan Luo, Honghao Zhao, Lingfeng Pan, Zhouqi Fu, Yixin Li, Gongwen Lu
Consultant:Changhui Zheng
Client:Xinxiang South Taihang Travel Limited
Collaborator:Shangqiu Huashang Construction Limited
City:Huixian
Country:China
Text description provided by the architects. Guoliang Village is famous for the "Heaven’s Road", a roadway dug out of the 119-meter-high cliff by completely manual method. It is still the only way to enter the village. The original site of the project, Guoliang Primery School, is located at the highest and deepest point of the village. As the place where most of villagers studied and grew up in childhood, it carries the memories and emotions of the villagers. The design team hopes to recreate the Heaven’s Road in the building in honor of the spirit in another way, as the climax of the village, forming a first-to-last echo.
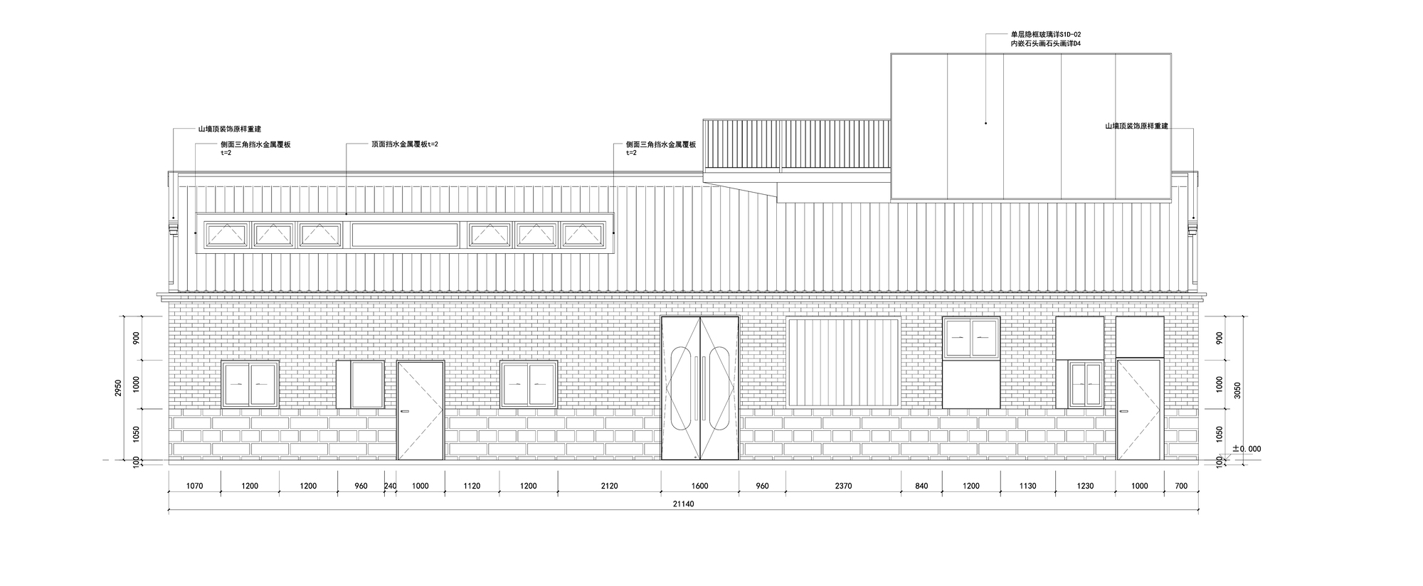
A plan is proposed to use the steel structure as the reinforced endoskeleton of the building. The wall is reinforced by the steel structure anchor. The roof and roof platform are stressed by the steel structure, so as to play the role of unloading weight and reinforcement of the whole house at the same time.
The Heaven’s Road not only represents a special space in the building, a symbolic image, an experience of digging a road on the cliff, but also an important part of the entire circular tour route. The narrow Heaven’s Road penetrates the roof, connecting the indoor classroom steps and the outdoor viewing platform on the roof, resulting in spatial conversion of inside and outside, opening and closing, and width change.
The step classroom, the Heaven’s Road, and the roof platform constitute a series of narrative spaces: The classroom retains some of the original wooden roof trusses, and original load-bearing walls of rubble masonry, reproducing the original space atmosphere of the primary school and forming an echo between the new and the old. The glass box above the s Heaven’s Road let the sky light fall vertically from above and shine on the pixel map of Taihang Mountain formed by the stone curtains on both sides. The roof platform connects the roof ridge and the back mountain, a new commanding height of the village.
A small amount of accommodation rooms and bathrooms are installed, providing a complete reception service. The added functions are assembled in a prefabricated modular methods, including a two-floor "big beds" for accommodation and integrated bathrooms in the courtyard. The "big beds" are made of New Zealand pinus radiata gulam. It is assembled by tenon and mortise technique. The bathroom is set in the glass roof gray space. A long bar is set on the back of the bathrooms for tourists to take a short rest. The courtyard adopts a partial sunken layout to organize the drainage during heavy rainfall in the mountain area and avoid the impact of the direct drain on the low-lying houses. The height difference between the courtyard (- 30cm height), the seats (40cm height) and the ground allow the seats can be used both as desk and bench. The courtyard can also be used as an outdoor teaching place together with the glass roof gray space.
Project gallery
Project location
Address:Guoliang Village, Shayao County, Huixian City, Henan Province, China
客服
消息
收藏
下载
最近







































