查看完整案例

收藏

下载

翻译
Architects:NEME Studio Architects
Area:130m²
Year:2022
Photographs:Chengqiang Huang
Lead Architect:Mincong Deng
Design Team:Chengqiang Huang, Xiaofeng Lin, Jianfeng Luo
Structural Consultant:Zhaozheng Chen
Engineering:local construction crew
Clients:Common Space
City:Foshan
Country:China
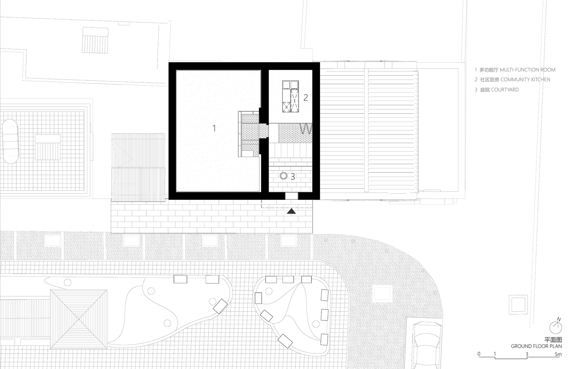
Text description provided by the architects. The project is located next to Chengde Park and Bijiang Elementary School in the ancient village of Bijiang, Beijiao Town, Shunde. The project site is an abandoned pawnshop storage building from the late Qing Dynasty, which has been unused for nearly 20 years. We initiated the Common Space with young friends from different industries, and after receiving support from the fund, we rented the pawnshop in the hope that it would become a space that is open and able to host different community activities in the future.
The open nature of the team clashes with the defensive attributes of the pawnshop storage building in terms of its architectural design. Features such as a 5-meter high, half-meter thick red sandstone wall, narrow and tall doorways, and more than a meter of elevation difference between the interior and the park create an experience that feels like entering a fortress or a hidden chamber, making it difficult for people to approach due to a sense of resistance.
The low pavilions and scattered trees create a pleasant environment, making it the most popular gathering place. This has inspired us. For the outdoor area, we employed a simple approach to reshape the pawnshop's courtyard and the alley in front. We used leftover materials from the clearance process to create segmented steps connecting the park with the interior and exterior of the pawnshop. We also incorporated a newly made mirrored doorway, which reflected the surroundings, diminishing the perception of a deep doorway.
Simultaneously, we preserved the wild vegetation at the entrance and the trees in the courtyard, extending the park's greenery and ensuring a continuous line of sight. Through the rhythm of walking, the continuity of sightlines, and the unfolding scenery, we mitigated the inherent differences in elevation and the sense of obstruction. In the indoor space, we have introduced an inverted triangular roof structure with exhaust capabilities to bring visual flow to the originally enclosed and cramped space. The four-sided sunroof curtain wall also provides ample light to the otherwise dark interior, giving people the opportunity to perceive the changing sky throughout the day.
As people ascend the park's stairs, enter the interior through the courtyard, and casually look along the wall towards the ceiling, they meet the sunlight of sunrise and sunset, once again leading their thoughts to distant places. At night, the gentle glow seeping through the semi-transparent curtain wall provides a warm guide for the park and passersby.
Due to limited funding, in the initial design, we established material and construction principles, and in the end, we extensively utilized the building itself and nearby resources to complete most of the construction: 1. Most of the materials from demolition and clearing were recycled, reducing a lot of "construction waste" and the need for transportation: · Indoor concrete flooring (using roof tiles as aggregates). · Outdoor paving (reusing old bricks and stone slabs). The community kitchen was designed and constructed using the remaining old wooden beams, steel, and sunroof materials. 2. Except for the steel structure, all other craftsmen were local villagers living nearby. 3. 80% of the hardware materials were purchased within a one-kilometer radius.
Project gallery
Project location
Address:Beijiaozhen, Shunde District, Foshan, Guangdong Province, China
客服
消息
收藏
下载
最近


































