查看完整案例

收藏

下载

翻译
Architects:Masonry of Architects
Area:2600ft²
Year:2022
Photographs:Robin Shibu
Manufacturers:Asian,Kavery,Maheswary Marbles,S Windows,Saint Gobain Glass,Surya Lime,Tata Oxide,Weinerberger Bricks
Lead Architects:Sabarish Thirumurthy, Tamilselvan Kannan
Glazing:Vijay Increations
Projects Architectes:Sabarish Thirumurthy Tamilselvan Kannan
Plot Area:2400 sft
Fabrication:Siva Engineering
City:Coimbatore
Country:India
Text description provided by the architects. The design brief was to create a multi-utility space accommodating the activities like yoga, chantings, and lodgings with the basic kitchen and utilitarian spaces. The construction was taken care of in two phases.
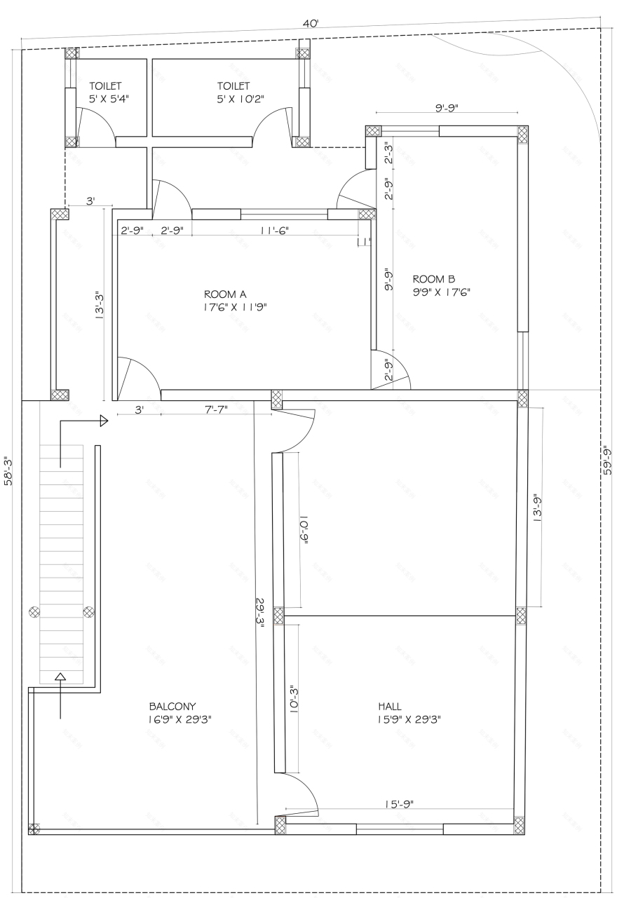
The first phase was focused on constructing a convention space confining 30 to 40 wards. The roof was done as a shallow vault to create a reverberating space to chant from a vantage point. The ventilation was done in a way such that the easterly winds enter from a lower level into the room and the stacks up and vents out through the western direction. The plot measures 40’ in width and 60’ in depth located at the foothills of Coimbatore west.
The planning was very simple on a rectilinear plot we placed a rectangular mass on the western side with the short side facing the road and a long side facing the west. Due to the exposed side facing west we had to use materials with higher “u” values and lesser “R” values. The ideal choice was to go with porotherm blocks measuring about 16” x 8” x 8” in its size. It is larger in size but light in weight which resulted in faster construction phases yet while finishing it becomes slow due to the brittleness.
Project gallery
Project location
Address:Marudhamalai Adivaram, Coimbatore, Tamil Nadu 641046, India
客服
消息
收藏
下载
最近



















