查看完整案例

收藏

下载

翻译
Architect:Bureau Brisson Architectes
Location:Lausanne, Switzerland; | ;View Map
Project Year:2017
Category:Offices
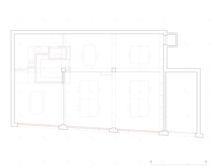
At Avenue de France 80 in Lausanne, three aligned shop windows open onto the pavement of this residential area in the west of the city. Built in the 1960s on the ground floor of a building with the typical Lausanne architecture of the time, this commercial premises originally housed a grocery-butcher's shop. At the beginning of the 2000s, the shopkeeper left the premises and the premises were taken over by an art restorer who occupied it for about fifteen years, curtains drawn. After his retirement, the premises are looking for a new occupant. The timing is perfect for the architectural firms Bureau Brisson Architectes and biolley pollini architects, located further down the street, who are looking for larger premises. After a constructive collaboration with the landlord, the works are completely transformed to accommodate their new assignment. The cold rooms and all the partitions are removed in favour of a large open space in which the column-and-beam structure is highlighted. A service block then articulates the space, organizing the commissary at its heart, the sanitary facilities and the kitchen on the back corridor, and some storage for the rest of the space. The different levels of floors are revealed by different colours of linoleum, responding to the original catelles preserved on the walls.
▼项目更多图片
客服
消息
收藏
下载
最近




















