查看完整案例

收藏

下载

翻译
Architects:CAPOL
Area:99486m²
Year:2015
Photographs:Feng Shao
Engineering:Shenzhen Capol International & Associates
Landscape:Shenzhen Huacheng Garden Landscape Co.Ltd
Client:Baoan District Construction and Works Bureau, Shenzhen Bao’an District Maternal and Child Health Hospital
City:Shenzhen
Country:China
Text description provided by the architects. With the economic development of Bao'an District and the rapid increase in population size, the only maternity and child care hospital in the district has become increasingly overwhelmed. In 2009, the Bao'an District Government decided to plan a new maternity and child care hospital to relieve the medical pressure in the area. Therefore, the newly-built Baoan District Maternity and Child Health Care Hospital has been assigned to undertake the medical needs and maternal and child health care of the 5.8 million people in its jurisdiction.
The project is located in Baoan Center, the core of the Bay Area, surrounded by high-density mixed commercial and residential land. Under the requirements of high-density urban environment and complex functions, how to design efficient medical buildings to meet the tasks carried by the building itself is a major design difficulty.
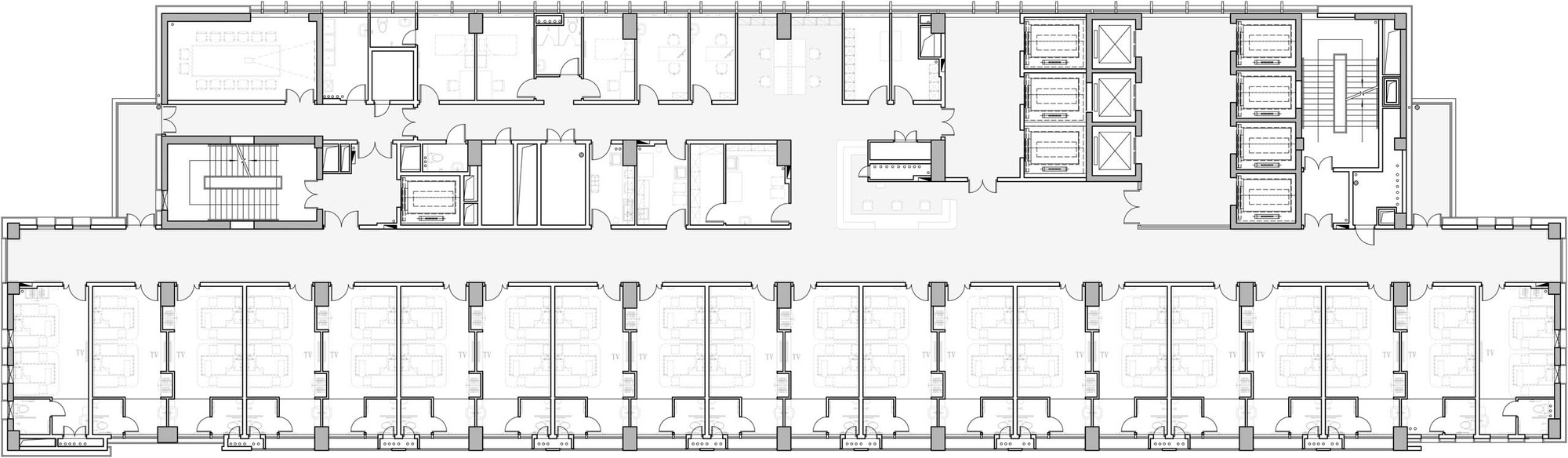
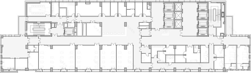
CAPOL undertook the general contracting work of architectural design from the plan to the construction drawings, creatively adopting the "compact triangle structure": with the medical technology department as the core, the outpatient department was arranged on the main urban road with more people, and the inpatient department It is far away from urban main roads and noise sources. The shortest medical consultation, first aid flow line and hierarchical registration system formed by the triangular layout create an efficient medical experience.
The design introduces a number of decentralized landscape systems such as courtyard greening, roof greening and entrance plaza greening into the building. At the same time, the scattered courtyard greening is parallel to the hospital traffic axis, and the retreat greening platform is adopted to maximize the enjoyment of the waiting space on each floor Sunlight and green landscapes shorten the distance between patients and nature, enhance the richness of space experience, and form a calm and healing architectural space.
Not satisfied with a fixed functional space, the building further implements timely updates of treatment methods and treatment environment according to usage requirements and technical iterations during the operation phase. Due to the introduction of intelligent waiting room technology, a large number of waiting rooms have been transformed into cultural exhibition spaces, communication spaces and children's playgrounds. The transformation of functions not only makes the treatment procedures more efficient, but also brings more entertainment and recreation space for doctors and patients. At the same time, the intelligent interface and efficient traffic space reserved in the architectural design also provide a good platform for the introduction of intelligent technology and robots.
In the compact urban center land, Shenzhen Baoan District Maternity and Child Health Hospital not only provides users with a pleasant experience, but also maintains the vitality and flexibility of building growth in the iterations of demand, providing a sustainable, Green and smart medical buildings.
Project gallery
Project location
Address:Yulu Road, Baoan District, Shenzhen, China
客服
消息
收藏
下载
最近














































