查看完整案例

收藏

下载

翻译
Architects:Atelier Tecnoform Co., Ltd,Clouds Architecture Office
Area:298m²
Year:2020
Photographs:GION,Noriaki Eto
Lead Architects:Masayuki Sono, Ostap Rudakevych, Noriaki Eto, Go Inagaki
Construction:Maruyamagumi Co.Ltd.
Landscape:Ryoujyuen Co. Ltd
Executive Architect:Atelier Tecnoform Co., Ltd+Atelier archi and craft+Jackie & Partners LLC
Owner:Shigeoka Co Ltd
Mechanical, Electrical And Plumbing:Kasamoto Fascility Co. Ltd
Glass Art:Noriaki Eto
City:Hashimoto
Country:Japan
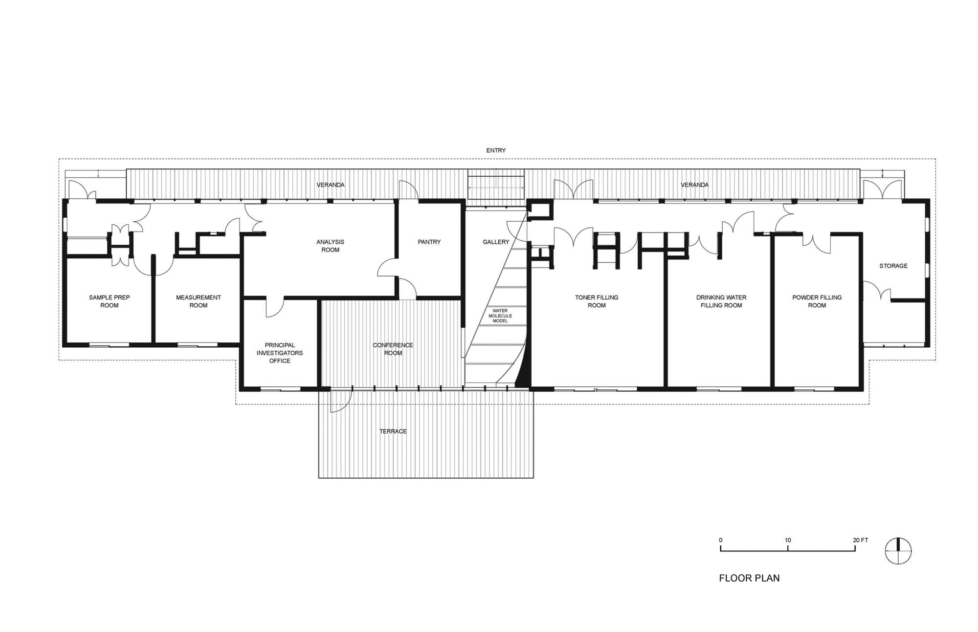
Text description provided by the architects. Aquaphotomics is a field of science that investigates water spectral patterns as a source of holistic information for biological and aqueous systems. The Yunosato facility is an Aquaphotomics research laboratory where the interplay of water and light are explored.
The entry sequence is a transition from familiar rectilinear forms to more fluid and lofty curves that open up towards the view of Mount Koya, a world heritage temple settlement site and holy center of esoteric Buddhism in Japan.
The research center extracts mineral-rich spring water that flows underneath the site. A triangular glass floor in the gallery echoes the spring, expanding the space downward, creating a floating sensation. Under the glass floor, textured mirror refracts light to create a luminous backdrop for a suspended model of a water molecule. The combination of the conical roof and transparent floor create depth and movement in the small space.
The main wall of the conference room is a large scale art glass that reflects light and casts fluid reflections across the room. A custom designed conference table with an undulating steel support frame sits on an oak floor that extends out to the terrace, connecting interior and exterior, expanding the space.
A curvilinear void between the gallery and conference room is subtracted using spherical geometry to connect the two spaces. Seen from different points of view the spherical void appears in varying forms: from crescent, half circle to full sphere, suggesting phases of the moon. In Japan moonlight is associated with the creation of life and is believed to imbue water with the breath of universe. This cosmology formed the fundamental vision for this facility and provided inspiration for the design concept to be experienced both spatially and symbolically.
Project gallery
Project location
Address:Hashimoto, Wakayama Prefecture, Japan
客服
消息
收藏
下载
最近






















