查看完整案例

收藏

下载

翻译
Architects:Number TEN Architectural Group
Area:5700m²
Year:2020
Photographs:Stationpoint Photographic
Manufacturers:AutoDesk,Aluminium Composite,Atrium Stair Glass,Curtain Wall,Delta Beams,Gillis Quarries,Glass,Lab Benching,Precast Concrete,Structural steel,Wood Feature Wall
Lead Architects:Brent Bellamy
Structural Engineer:Crosier Kilgour and Partners
Mechanical Engineer:SMS Engineering
Electrical Engineer:SMS Engineering
Landscape Architect:HTFC Planning and Design
Partner In Charge:Doug Hanna
Interior Designer:Gail Allen
Lead Technician:Michael Sigurdson
Contract Administration:Jeff Gelmych
Lab Design:Dean Schilling
Specifications:Jesse Watson
Technician:Pam LeClerc-Smith
Client:Richardson International
Civil Engineer:WSP
Contractor / Project Manager:Bockstael Construction
City:Winnipeg
Country:Canada
Text description provided by the architects. Richardson Innovation Centre is a next generation food science laboratory and research facility located in in downtown Winnipeg, Canada. The north side of the site defines the border of the Exchange District National Historic Site, Canada’s most intact collection of turn-of-the-century Chicago School warehouse buildings. To the south are several continuous blocks of surface parking lots adjacent to a rail line.
Straddling these two divergent urban conditions, the site presented an opportunity to use proportion, scale and materiality to create a building that sits comfortably within an historic streetscape, while defining a modern architectural language that sets a precedent for future development in a new downtown neighbourhood.
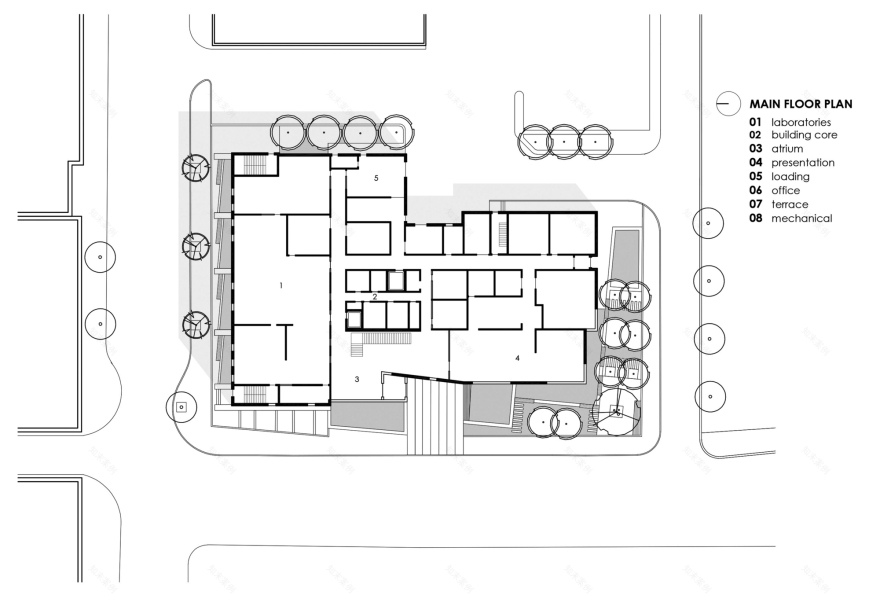
The building program began as a three-storey layout with two floors of laboratory research space and one floor of supporting office area. To create a narrow office floorplate with access to daylight and views, the top floor was divided into two halves and stacked at the north end of the site. This move creates a strong urban edge at the intersection and establishes a visual proportion, scale, and relationship to the street that directly references the character and feel of the adjacent historic warehouses.
Building massing steps down to the south as it moves away from the intersection, allowing sunlight to penetrate deep into every floorplate and to the rooftop terraces. The massing also steps back from the sidewalk towards the south to create a sun-filled greenspace and plaza that naturally absorbs rainwater runoff, softens the harsh pedestrian experience, and reduces the urban heat island effect. As the surrounding parking lots are developed in the future, the plaza will become a neighbourhood pocket park and community node. The building addresses its urban condition by creating a strong dialogue with the sidewalks through façade transparency and an enhanced public realm along the entire pedestrian edge.
The façade is clad with a field of smooth-face local Tyndall limestone creating the backdrop for a random pattern of uncut Tyndall with deep contrasting colours and rough edges that create dynamic shadows as the sun moves around the building. Tyndall stone cladding with deep punched windows references the colour, texture, materiality, and visual weight of the surrounding warehouse buildings, reinterpreted in a modern composition.
The top two office floors appear as a light glass box teetering on a stone base. A custom ceramic frit gradient on the curtain wall reduces glare, heat gain and energy use. A double cantilever strengthens the urban edge at the intersection while creating a unique pedestrian experience at the sidewalk. The glass box sits at an angle to create space for an office level roof terrace on the west side, and to reveal framed sidewalk views of the iconic CAN-D-MAN wall mural on the neighbouring historic candy factory, making the locally familiar character part of the composition and experience of the new building.
The building’s program elements have been composed to inspire innovation and collaboration. The floor plan is centred on a large, sun-filled atrium with a feature stair providing connectivity between laboratories and all other building departments. With large platforms providing dramatic views across the downtown skyline, the stair is designed to invite lingering and encourage the chance meetings and casual idea sharing that can pollinate innovation and creative thinking.
Project gallery
Project location
Address:Winnipeg, Manitoba, Canada
客服
消息
收藏
下载
最近


































