查看完整案例

收藏

下载

翻译
Architects:rue royale architectes
Area:1989m²
Year:2022
Photographs:Vladimir de Mollerat du Jeu
Lead Architects:rue royale architectes
Landscape architect:Atelier du Bocal
Signage:Atelier Supernova
Engineering Consultants:TPF ingénierie
City:Billom
Country:France
Text description provided by the architects. The first intention is to integrate the project as much as possible into its context. In this case, it was not just an issue of addressing the specifics of a plot of land, its neighboring sites, or its topography, but about opening it up to the broader environment and sending a strong message about the place and the role of the school in the city. Instead, it is a significant and structural element of community life, one that is welcoming and open. The "open" school is an educational tool that trains children to become future citizens.
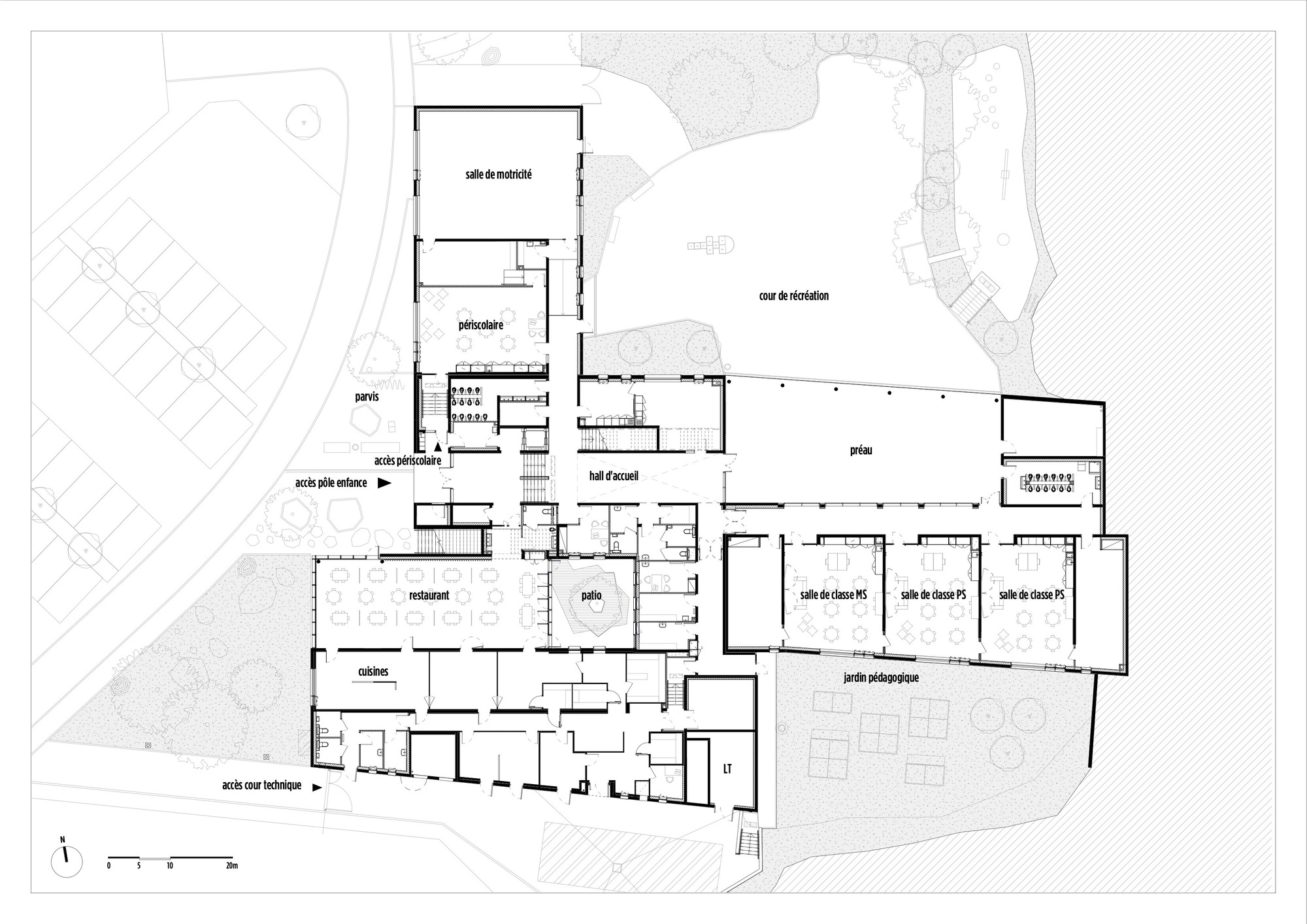
The school is set into the slope, hewing as close as possible to the topography of the land. A ground floor consisting of two half-levels rises from the lower, horizontal part of the site. The upper floor is perpendicular to it, absorbing the difference in level and minimizing the leveling earthworks required. The school is immersed in nature, which in this context is generous and eclectic. It offers a formidable teaching tool. It blends into the landscape thanks to several additional features like the meadow-like green terraces, the vegetable garden, the patio planted with trees, and the open connection to the courtyard, which itself tells a story.
From a technical standpoint, the project uses two main materials: concrete and wood. The team as a whole was committed to using regional and even on-site materials, with raw concrete and local wood-certified BTMC (“Wood from the Massif Central”). The BTMC approach aims to promote local varieties of wood and the companies that produce them, guaranteeing their origins, traceability, and the sustainable management of forests, as well as the quality of processing and use. The entire chain of production, processing, and construction is involved in this process. With this project, the contractor acted as an ambassador for the BTMC label. Maliges and Genevrier agreed to respect the label as a condition for being awarded the contract.
The ground floor is made of sandblasted concrete from local aggregates. The wooden upper story features a timber-frame structure and walls, mixed wood and metal posts, glued-laminated timber beams, CLT (cross-laminated timber) slabs, and Douglas fir cladding. The cladding is made up of flat slats of different widths and perpendicular slats that give it a sense of rhythm and vibration. Throughout the rest of the project, wood is openly visible in the woodwork, shutters, and ceiling soffits, as well as in the curtain walls at certain strategic points like the patio, dining hall, and library.
The facility is clearly divided into parts. It is a nursery school with six classrooms, but it also includes an after-school care center and a large-scale catering center (the municipality's central kitchen). The entrance, located in the center of the building, separates the catering area to the south from the after-school care area to the north.
Each has its own independent access. A large double-story reception hall on the ground floor connects to three classrooms and their respective sleeping areas, which open onto the lower courtyard. A clockwise staircase leads up to three additional classrooms and the upper courtyard. Classrooms face the courtyard to preserve the children's privacy. At the western end, above the main entrance, the library and documentation center has a generously proportioned wooden terrace protected from the sun and open to the outdoor landscape.
Project gallery
Project location
Address:7 Av. Victor Cohalion, 63160 Billom, France
客服
消息
收藏
下载
最近























