查看完整案例

收藏

下载

翻译
Architects:Archipente
Area:8500m²
Year:2022
Photographs:Nicolas Trouillard
Landscape Architect:Omnibus
Structure Consultants:betrec INGENIOR structure
Acoustics Consultants:Rez’On
Architects:Edouard Molard, Christophe Lauer, Victor Caballero, Christian Pupier
Project Owner:Département du Val-de-Marne
Fluid Engineering Consultant:Enertech
High Environmental Quality Consultant:Tribu
Ergonomics:Preventech Consulting
City:Valenton
Country:France
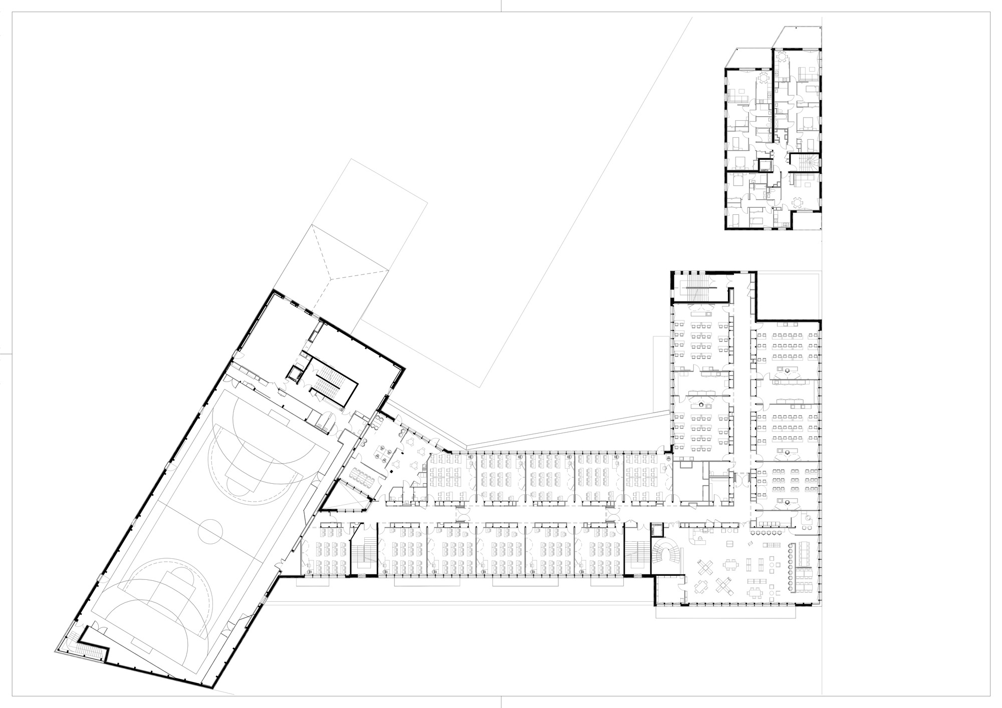
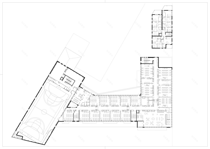
Text description provided by the architects. Three buildings, three functions - Located at the corner of Avenue Guy-Môquet and Rue du Colonel-Fabien, the project consists of three separate buildings that can function independently. The main entrances to the educational building and the gymnasium are located on Mail Yvonne-Hagnauer, a recently opened pedestrian area by the municipality of Valenton between Rue du 8-Mai-1945 and Rue du Colonel-Fabien. This space is protected from car traffic, providing a calm and secure environment for students and families. The six staff accommodations (double or triple-oriented T5 apartments) are located to the north of the plot, connected to the residential fabric of the neighborhood. They face Avenue Guy-Môquet, allowing occupants to disconnect from their professional environment.
The gymnasium features a collective sports field (for handball, basketball, etc.), a dance studio, and a 14-meter-high climbing wall. It offers various modes of operation depending on the day, time, and users. Outside of school hours, it is made available to associations and sports clubs. The ground floor, which students can access directly from the school grounds, houses the multipurpose hall, changing rooms, and toilets. The first floor is exclusively dedicated to sports activities. It is composed of wooden frames with underlying beams and is punctuated by tall openings on the northwest façade, extended by five rectangular roof lights oriented towards the northeastern light.
The secondary school students have a bicycle and scooter parking area, sheltered by the canopy that borders the entrance gate. They access the classrooms from the playground (a program requirement) by crossing the covered walkway located beneath the educational building. The south-facing orientation of the building allows for maximum winter solar gains and protects the classrooms from the summer heat with motorized blinds (adjustable and tiltable slats). Most of the time, the playground is only shaded by vegetation. Inside, the predominant colors are white, wood, and raw concrete.
The light tones harmonize with the brightness of the spaces. Abundant natural light is achieved through continuous strips of triple glazing set within wood-aluminum hybrid frames. Over a hundred light ducts (stainless steel tubes, curved or straight) provide natural lighting to the central corridors and the back of practical workrooms (for artistic and scientific education).
All facades share the same design language, whether it's the educational building, the gymnasium, or the staff accommodations. The spandrels, windows, and blinds have a cream color that echoes the wood interiors. The MOB (wooden frame) fillings are clad with light gray fiber cement panels (Equitone). Steel sunshades, acting as sun breakers, are installed in front of the staircases and unique spaces (such as the library and gymnasium) to create varied lighting atmospheres, their kinetics guided by the time of day and sunlight.
As is customary, ARCHIPENTE has anticipated the possibility of installing photovoltaic panels on the "fifth façade" of the buildings. The south-facing roof slopes, technical provisions, and structural dimensions are designed to accommodate the weight of the panels and their frameworks. Considering the significant rise in energy prices, the department has embraced the idea of producing its own electricity. A study has been approved to implement a photovoltaic power plant on the college's rooftops. The project will then meet the criteria for "Passive Plus Building" certification.
Open plan, active framework - There are essentially two ways to construct energy-efficient buildings. The first involves relying on thick insulation and the efficiency of machines. The second approach involves optimizing the design phase, considering that what is not spent on technology can be invested in material choices and spaces. In Valenton, the second approach is clearly favored. Wood is an excellent ally in this regard. Instead of a concrete structure, a timber frame can accommodate the majority of insulation within its framework. In total, approximately 1,000 m3 of wood, 85% of which is sourced from France, is used in the project.
Constructing the floors using dry construction methods requires precise structural planning. All the glulam frames are installed on a 120 cm grid, a measurement that cor- responds to the standard width of a wood panel (or wood derivative). As a result, all dimensions in the project are multiples of 30 cm (60 cm, 1.20 m, 2.40 m, 3.60 m, etc.). No partition walls hinder the principle of open-plan buildings, which allows for flexibility in modifying partitions according to evolving needs. Concrete cores for staircases and a few diagonal bracing elements are sufficient to stabilize the wooden structure.
The concept of an "active framework" is another valuable tool for the project's flexibility, envisioned by ARCHIPENTE. It involves reserving a long series of service ducts on either side of the central corridors for dis- tributing electricity and utilities. This strategy simplifies the management of space for the double-flow ventilation system, reduces the plenum height of false ceilings, and allows access to technical elements without disrupting the classrooms. This approach will be particularly beneficial when implementing the photovoltaic electricity generation system for the school. As the illustrious Alvaro Siza highlighted, "Architecture begins when all constraints have been integrated."
Project gallery
Project location
Address:Valenton, France
客服
消息
收藏
下载
最近






























