查看完整案例

收藏

下载

翻译
Architects:Craft Narrative
Area:102m²
Year:2022
Photographs:Studio Recall & Studio Sohaib
Design Team:Bharat, Shubham, Ajay, Vijay & Yatindra
Client:Rajshri Deshpande, Nabhangan foundation
Structural Consultant:Sonal Nimbalkar
Photography:Studio Recall&Studio Sohaib
City:Aurangabad
Country:India
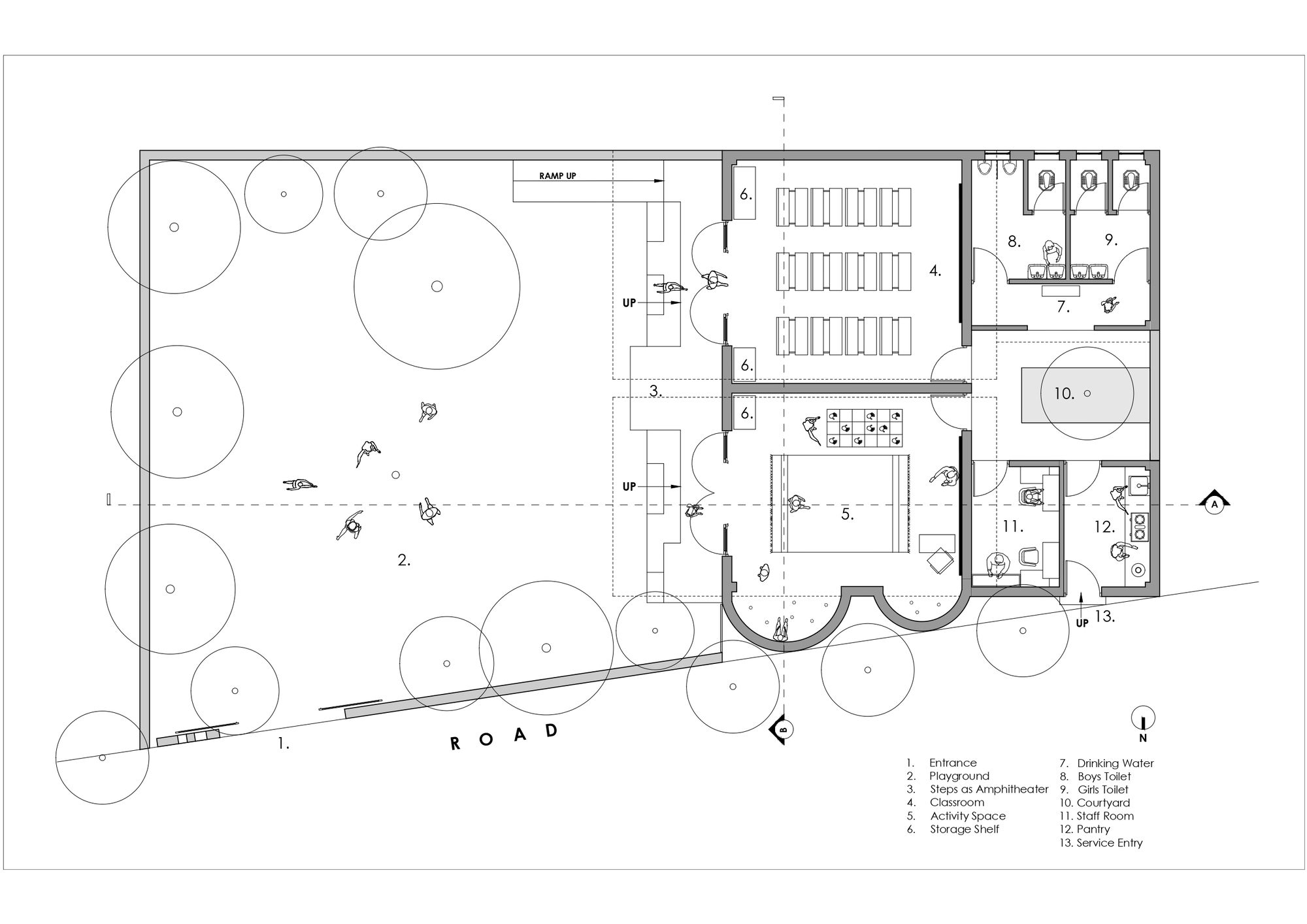
Text description provided by the architects. The Vaulted School is an initiative from Rajshri Deshpande, Founder of the Nabhangan Foundation. Working in the fields of rural regeneration & community building to empower villages to self-reliance. A school is built just minutes away from Dhorkin Tanda, a hamlet in Maharashtra inhabited by sugarcane-cutting labor near Paithan, Aurangabad. The hamlet had one school accommodating a total of 30 students, which was dilapidated. What the old structure lacked, the new structure had it hacked: ample lighting and ventilation achieved with the help of vaulted roofs, a stand-alone sanitation facility, a kitchen for mid-day meals, and an overall conducive environment for knowledge to reside in and foster the ‘play and learn’ ideology.
The vaulted school is designed to evoke and satisfy the curiosities children are capable of, and answers them in the most natural way possible: the breeze on their faces that flows because of the Venturi effect, the green buffer zones that cut off the glare, and the importance of planting native flora and fauna in and around the school. The planning provides ample space for one of the most essential needs of a school—the playground, tucked on one side of the site. The overall site of 305sq. m. offers a classroom equipped with storage shelves for books and educational toys, a staff room for the teachers, designed with storage units for examination papers and academic journals, and lastly, a multi-purpose hall that doubles up as an additional classroom or a dining hall if and when need be.
In the foresight, an additional floor can be added by dismantling the vaulted roof temporarily for construction. The same can be assembled as a roof for the next level and the central gutter beam can unfold to extend the slab floor. Even with these changes, the dynamics will only be affected positively. All the current spaces are carefully designed in the 102 sq. m. built-up area the premise offers. The classroom’s orientation responds evidently to the breeze pattern and sun path. Considering the soil conditions present, a pile foundation is constructed to strengthen the substructure on which the load-bearing brick walls find their ground. The process is furthered with the vaulted metal sheet roof that minimizes the heavy structural cost and makes the form structurally rigid with minimal support. As one looks deeper into the shape of the structure and the design of the classrooms, the semi-circular volumes serve as noise buffers to the disturbances caused by vehicles passing by on the adjacent side of the road.
A free path for ventilation and light is created by the high ceilings, which on the outer side are made up of non-reflective roofing material to reduce heat gain. Each and every wall is painted with pieces of information the child will imbibe even while sitting idly; one of the prominent being a depiction of The Big Dipper on the classroom’s low-height ceilings which is a craft intervention made by inserting an acrylic rod within the slab. Yellow glossy colored epoxy flooring added an additional layer of fun and is painted with mathematical learnings and traditional floor games to utilize the flooring area at its best.
Moreover, the playground, just like the classroom, is a product of psychologically backed design thinking, subtly introducing the concept of an amphitheater to its tiny users. The steps under the overhang double up as seats for when the school is to conduct a recreational activity that requires staging and audience areas. The superstructure revolves around local bricks & traditional patterns as infill materials to bridge the gap between technicalities and rooted aesthetics.
Project gallery
Project location
Address:Aurangabad, Maharashtra, India
客服
消息
收藏
下载
最近

































