查看完整案例

收藏

下载

翻译
Architects:ALTA
Area:5600m²
Year:2022
Photographs:Charly Broyez
Manufacturers:Degano,Fougeray,Kone,Manivel
Structural Engineering:CNR
Electrical Consultant:LUSTR’ELEC
Ground Works:COLAS
Cladding:QUEMARD
Waterproofing, Plumbing, Heating And Ventilation,:Mahey
Exterior Woodwork:ALU RENNAIS
Interior Woodwork:BINOIS
Metal Works:CARLO
City:Saint-Malo
Country:France
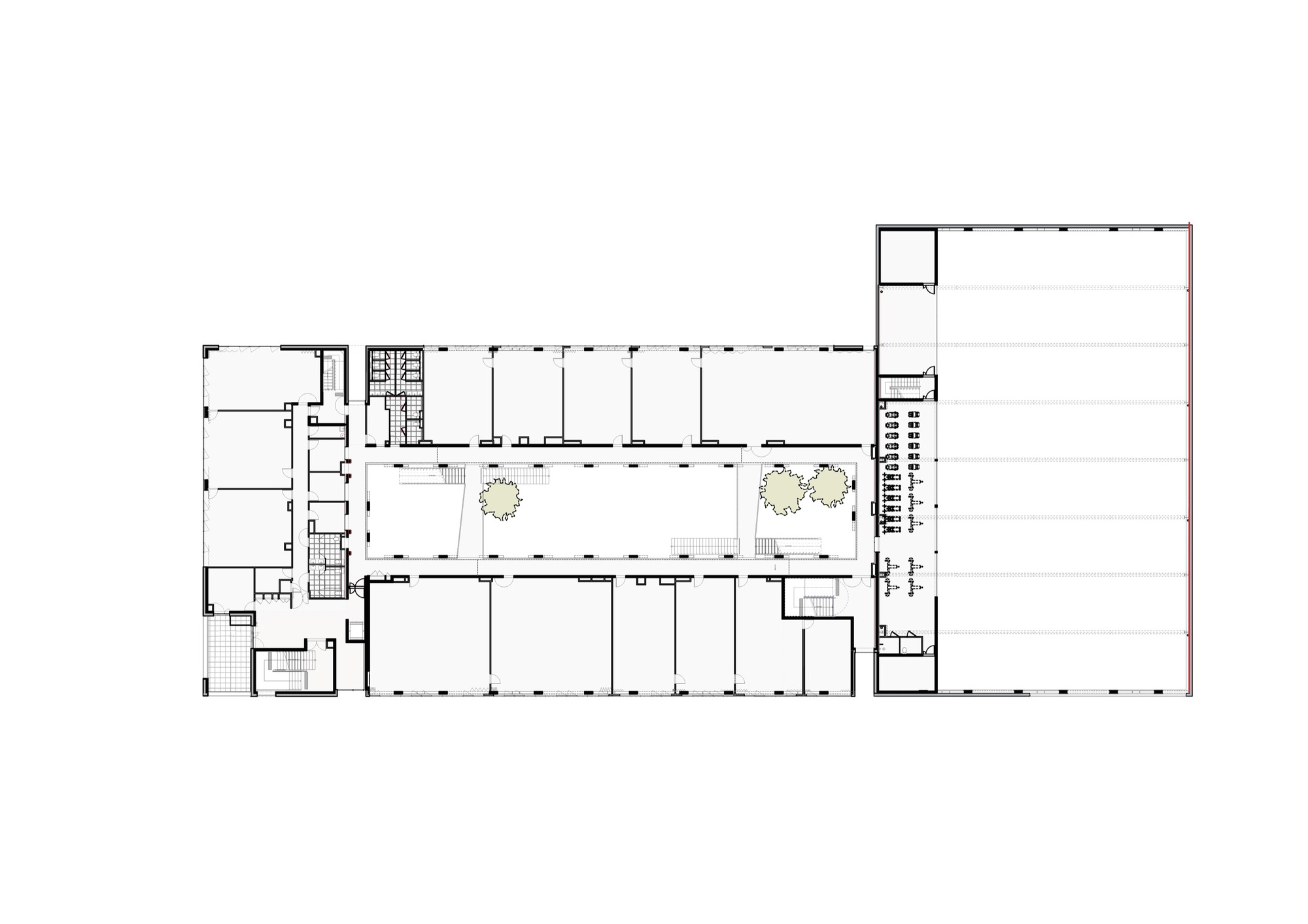
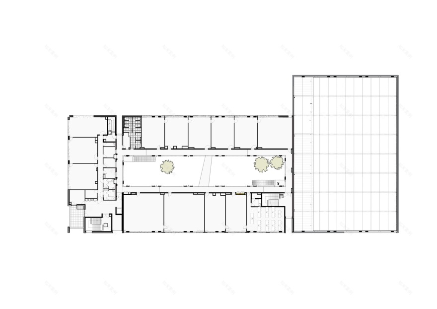
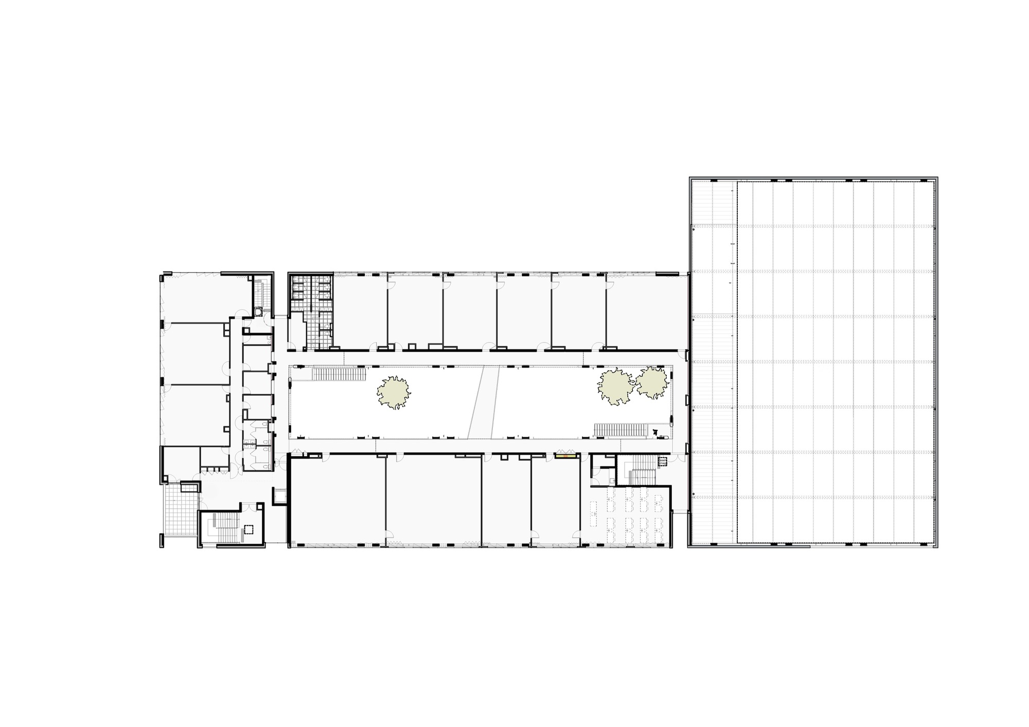
Text description provided by the architects. The project, located on the street of La Croix Desille, is an educational establishment divided into 3 entities: a post-baccalaureate establishment with 6 classes for 150 students and a cafeteria on the ground floor; a high school with 10 classes with technical and administrative facilities for 350 students; and a sports hall. These three entities, distributed over two floors, form a single building gravitating around an atrium covered by a glass roof. This central space is a reference to the glass-covered foyer of the "mother house", the Institution in Intramuros, a real meeting place, a place of conviviality, where everything happens.
The project is part of the iconic writing of Malo identity: as it is a partially "professional" high school dedicated to construction techniques, two architectural elements are highlighted: two large beams that carry all the floors and facades of the equipment. The W-shaped structure reproduces the image of port cranes; the shed glass roof is in keeping with the architectural identity of the buildings that can be seen around the port of Saint-Malo.
The atrium distributes the entire program from the corridors and walkways. It acts as a buffer space, allowing the regulation of the climatic atmosphere of the building (solar contribution in winter, cooling, and natural ventilation in summer). The CDI, the administration, the school life premises, the sports room, and the cafeteria are grouped together on the ground floor; the two floors bring together the classrooms and the different areas/workshops linked to the vocational baccalaureate specializations.
The gymnasium, a space dedicated to the high school and the agglomeration, hosts on the first-floor multi-sports (basketball, handball, volleyball, badminton ...) and upstairs a weight room and a climbing wall. The architecture continues the W-shaped structural motif, allowing the built volume to be suspended and freeing up total transparency of the sports field towards the outside.
The emphasis was placed on the quality and durability of the materials. In the search for a refined style, we wanted to limit the multiplication of colors and materials. Thus, the single white color allows the living and active elements of the place to be highlighted: the natural light, the trees, and plantations, but above all the students themselves.
The project takes advantage of the presence of existing trees of various species that border the avenue, not as a dimensional constraint but as a revelation of the landscape identity that allows a balanced dialogue between the project and the future development of the "campus" district.
Project gallery
Project location
Address:Saint-Malo, France
客服
消息
收藏
下载
最近



























