查看完整案例

收藏

下载

翻译
Firm: O'Neill Rose Architects
Type: Residential › Private House
STATUS: Built
YEAR: 2021
SIZE: 5000 sqft - 10,000 sqft
BUDGET: Undisclosed
Photos: Michael Moran (14)
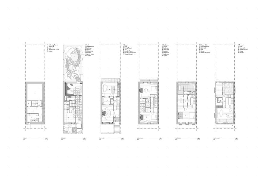
As a series of spaces organized in a vertical gradient, Gramercy Townhouse allows the occupants to retreat from the intensity of the city in order to reconnect with family, friends and the community of South Asian artists that they support. The project is a full renovation and penthouse addition to a 19th century townhouse in New York City.
The lower levels provide spaces to cook, eat, socialize, and perform together, all of which look out to an intimate, rear garden. These spaces have custom furniture that we designed with collaborators, which allow for family gatherings both small and large.
The project also reunites the occupants with the city in the quieter, upper level private spaces, which turn a contemplative focus outward to the city just beyond. With large angled windows, a sculptural skylight, interior glazing, and a rear terrace with an oculus open to the sky, the top floor is a dialogue between inside and out, and between home and the city.
Because the home hosts both the immediate family of four and much larger gatherings, the scale of spaces are not what is typically seen within the footprint of a New York brownstone, including an acoustically engineered music room, a media room for up to 15, and a kitchen that feels intimate with four but expands to seat three time as many. Many of the custom furnishings were designed in collaboration with Danish artisans in order to meet these unique requirements.
客服
消息
收藏
下载
最近
















