查看完整案例

收藏

下载

翻译
Architects:evr-Architecten
Area:5225m²
Year:2022
Photographs:Stijn Bollaert
Manufacturers:Roval Aluminium
Stability Engineer:VK Engineering
Building Company:SOCATRA NV
Project Architect:Manu Heytens
Design Team:Sien Declercq
Landscaping:Denis Dujardin
Techniques:studiebureau IRS
Re Used Materials:Rotor
City:Brussels
Country:Belgium
Text description provided by the architects. The renovation of the AG Campus is an ambitious and sustainable project in the center of Brussels. It introduces light, air, and space. Throughout the renovation, materials were chosen as sustainably as possible, and maximum effort was made to preserve and reuse materials from the existing building. The roof of the new extension was implemented entirely as a green roof and additional green spaces were added in the garden, adding in total more than 1500m2 of green spaces in the heart of Brussels.
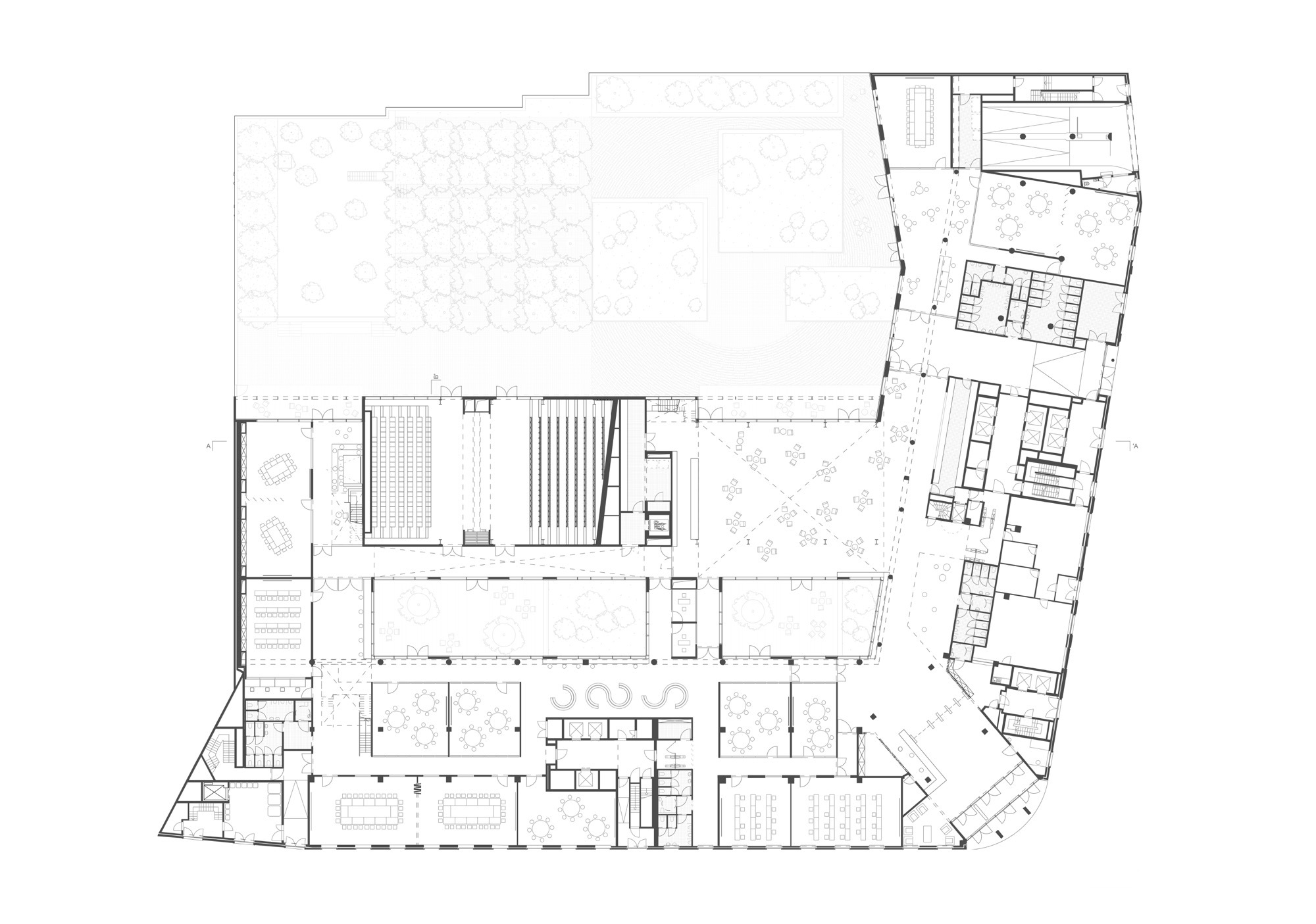
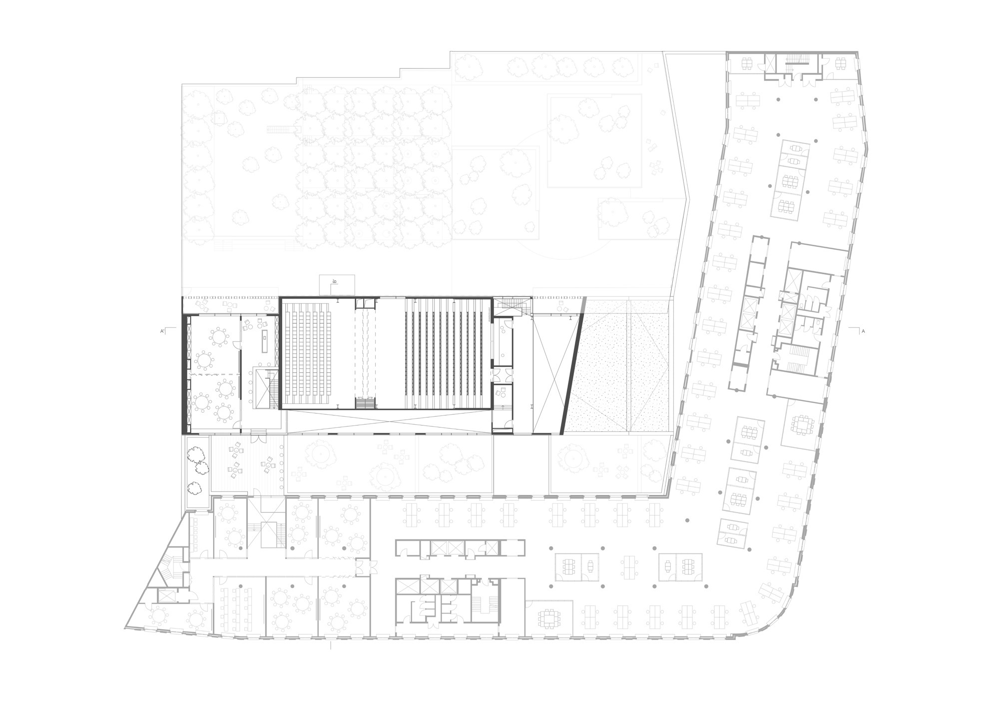
The project AG Campus is a renovation of the ground level of an existing building in the very center of Brussels. The campus is a meeting and learning place and includes classrooms, meeting rooms, a big lounge area, two big auditoria, and much more. To realize a supported and sustainable project, an integral, transversal, and integrated approach was put forward from the beginning.
The main goal of the project was to introduce light, space, a connection to nature, and comfort for the people who use the building. Before the renovation, the ground floor was a series of separate, dark rooms. Any form of interaction was absent. The new Campus wants to be open and communicative, to stimulate "living together" and "working together", in an open mindful way. To this end, the ground floor was redesigned completely.
The existing extension of the building was rethought in terms of flexibility, daylight, the relationship with the existing inner and outer areas, solar gains, and spatiality. Two spacious patios were implemented between the existing building and the extension. This intervention not only provides plenty of daylight but also creates views and organizes an intimate, changing relationship between inside and outside, nature and the seasons. The garden was renovated as well, adding several big green spaces to boost biodiversity. In addition to this, the new roof of the extension is green, resulting in a total of an additional 1500m2 of green spaces in the city center.
The project also tries to set the highest levels in terms of the environment, with solar panels for renewable energy, buffering or re-using rainwater, and thorough re-use of building materials. For advice on reuse and construction materials, we got assistance from Rotor. Rotor is a cooperative design practice that investigates the organization of the material environment. We think it is crucial to highlight this kind of project so that it can act as an incentive for future projects.
Project gallery
Project location
Address:Brussels, Belgium
客服
消息
收藏
下载
最近










































