查看完整案例

收藏

下载

翻译
Architects:Shepheard Epstein Hunter
Area:10700m²
Year:2022
Photographs:Paul Kozlowski,Ben Clarkson | Bowmer+Kirkland,Martine Hamilton Knight
Manufacturers:KEIM,Kingspan Insulated Panels,Air Tightness Solutions,Airedale Group,Architectural Profiles,Avonside,Bespoke Building and Joinery Projects,Boon Edam,C2C,Dolphin,EOS,Evans Concrete,Framedeck,Howdens,IKO Polymeric,Komfort,MB Glass,MPB Concrete,MR Industrial,Manson Timber Engineering, +7Monowa,Otis,Permabond,Reynolds,Syston,VMZINC,Velfac-7
Project Management:Bidwells, Pulse Consult, Concept PM
Landscape:Ares Landscape Architects
Acoustic Engineering:Sweco
Design, Direction, Development And Delivery:Steven Pidwill, Patricia Martin del Guayo
Design And Specification Support:Ruth Nelson, Alvaro Santos, Sarah Kidd
Construction Stage Detailed Support:Ana Carp, Seetal Mistry, Tzeh Bin Cheong, Celia Hsin
Cost Consultancy:Gleeds
Phase One M&E Design:Tetra Tech
Phase Two M&E Design:CPW
Construction Stage Mechanical Services Detailed Design:Anderson Green
Cladding External Wall:Norman & Underwood
Breeam Facilitator:Stroma
Constructions:Bowmer + Kirkland
Structural And Civil Engineers:Tetra Tech
Building Control:Socotech
Fire Engineering:Sweco
City:Leicester
Country:United Kingdom
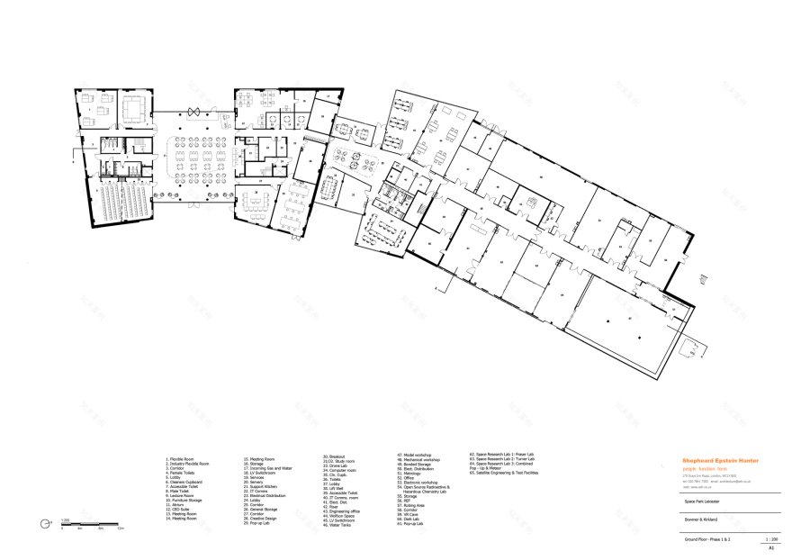
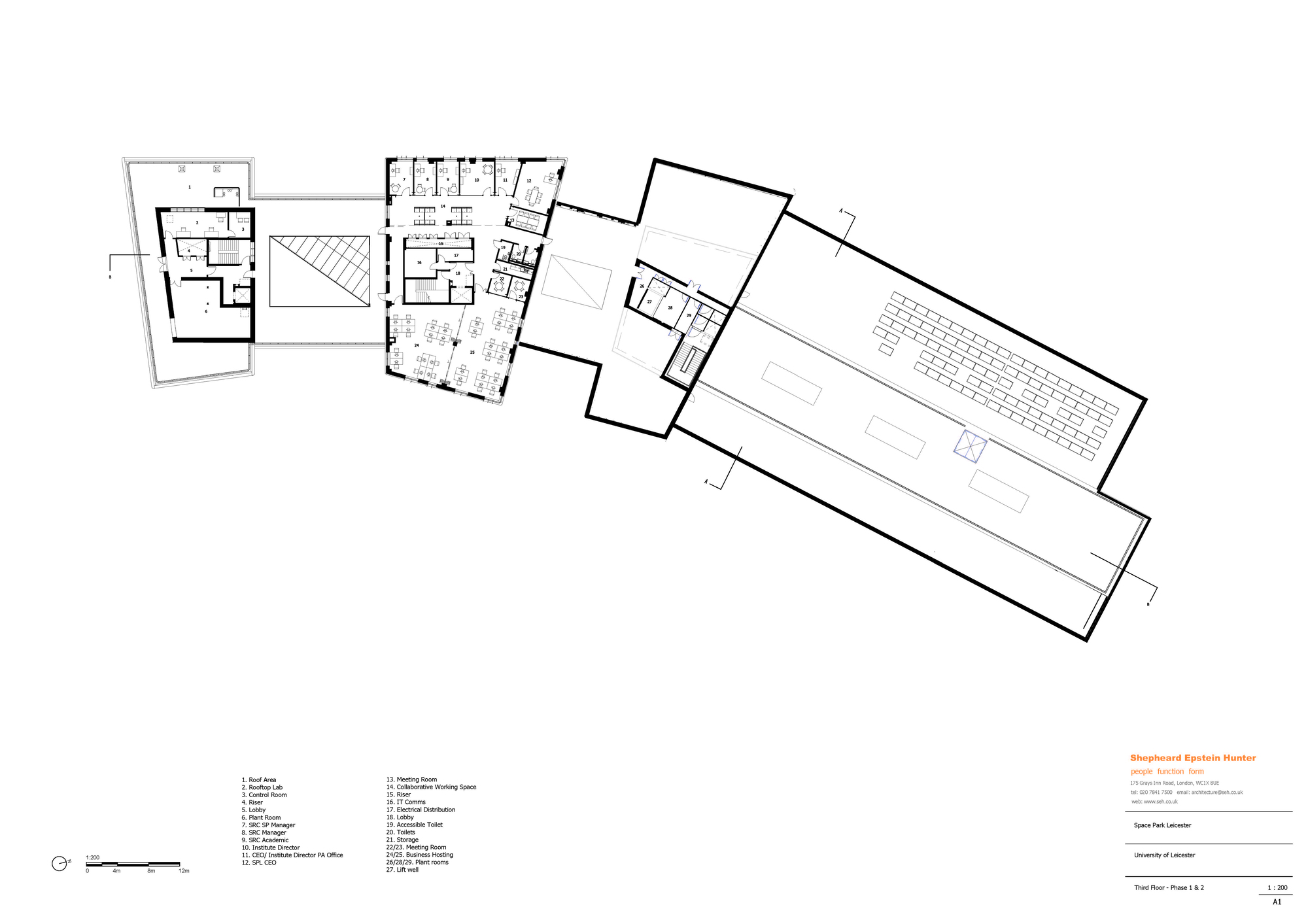
Text description provided by the architects. Space Park Leicester is designed as a robust, sustainable, and practical facility which can manage change and adaptation over a long life to suit changes in the requirements of the users, but is also intended to be a beautiful, attractive place that equally welcomes research specialists and schoolchildren, and manages to convey ‘something about space’ through its use of functional forms and long-lasting, recyclable materials.
The building is arranged as four and five-story pavilions that provide teaching, laboratory, office, and collaboration space around a central atrium, encouraging interaction between disciplines and outreach with the local community and schools; and a two-story technical wing (capable of upward extension) which provides specialist laboratories, workshops, and clean rooms, delivering the METEOR (Manufacturing, Engineering, Technology, and Earth Observation Research) program. The buildings hug the curving eastern boundary like a serpent on the plan, sitting close to parkland and mature tree canopies, and furthest from the adjacent low-rise housing to the west which is of a different scale.
The project is an example of design excellence and imaginative and regenerative use of publicly owned brownfield land which promotes economic growth in association with neighboring development. It creates Space Park Leicester as an independent research institute, synergetic with the nearby National Space Centre, and aligned with the UK’s National Space Strategy's four objectives: unlocking growth in the UK space sector; collaborating internationally with partners and allies; growing the UK as a science and technology superpower and developing resilient space capabilities and services.
Space Park Leicester has transformed a long-disused contaminated brownfield site in a flood-risk zone at the end of a cul-de-sac into a generator of social, economic, and environmental improvement. The site, formerly used for a landfill, was capped and raised to 400mm above the 1:1000-year flood level and 700mm above the 1:100-year (+50% climate change allowance) flood level. The site was overgrown after disuse twenty years ago and adopted by badgers and so the rectangular perimeter on which initial designs were based was reduced by 25% during early design stages to allow their retention.
Professor Martin Barstow from the University of Leicester has said: ‘We have an amazing building. It has really delivered everything we wanted in terms of the quality of the environment and the variety of meeting/interaction spaces and laboratory facilities. The beautiful atrium creates a focal point for the occupants of the building and a welcoming landing space for visitors. The facility allows us to host industry partners side-by-side with academic researchers and creates a new model for collaboration. We believe we have created something unique in the world and a number of international visitors have confirmed this in their enthusiastic and positive comments.’
Project gallery
Project location
Address:Space Park, 92 Corporation Rd, Leicester LE4 5SP, United Kingdom
客服
消息
收藏
下载
最近










































