查看完整案例

收藏

下载

翻译
Architects:AHR
Area:8500m²
Year:2020
Photographs:Diane Auckland, Fotohaus
Manufacturers:IdealCombi,Velux
Landscape Architect:AHR
Main Contractor:BAM
Quantity Surveyor:Mace
Project Manager:GL Hearn
Architect:AHR
Civil & Structural Engineer:Hydrock
Services Engineer:Hydrock
City:Bristol
Country:United Kingdom
Text description provided by the architects. Designed to support the next generation of student engineers, the building aims to break down boundaries between engineering disciplines, enable greater collaboration, and make Engineering more inclusive by attracting students from a wider cross-section of society. Set over three floors and 8,500m2, the building features teaching studios, simulation suites, laboratories, and specialist workshops accommodating a wide range of subjects.
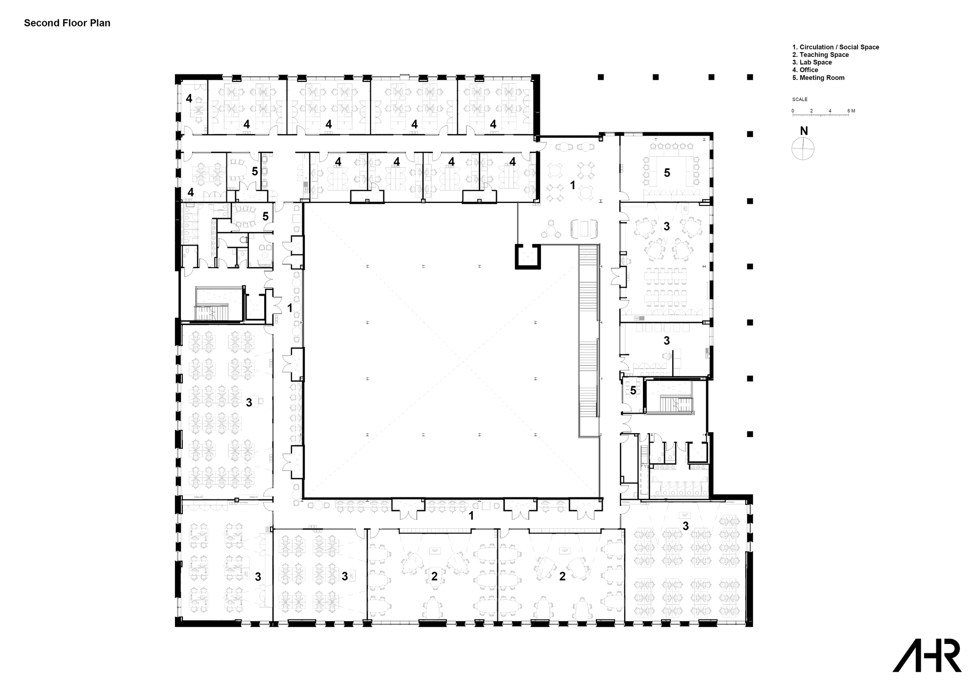
The brief recognised the value of ‘Social Learning’ spaces outside of traditional teaching to encourage collaboration. A significant design constraint was the spatial and servicing requirements of over 20 different labs and workshops – AHR’s response was to stack the accommodation based on practical requirements: heavy workshops and ‘maker’ space on the ground floor; specialist laboratories on the first floor; and lighter labs and offices on the top floor.
Within a constrained site this created an uneven distribution of spaces across floors, so AHR’s solution was to flip the massing inside out and organise spaces around a central atrium, with a void that gets bigger as you move upwards. This strategy made the building envelope thermally and cost-efficient while creating a central Social Learning space that met the faculty's vision. The diagram almost completely removes traditional corridors, making the building feel safe and inclusive, particularly to lone students working at night.
The atrium is topped by a dramatic 1000m2 timber-framed north-light roof which encloses practical ‘maker space’ (ground floor), collaborative workspace (first floor), and quiet study spaces overlooking activity below (second floor). Distinctive Corten steel cladding creates a bold presence at the heart of the UWE campus masterplan. The open colonnade faces the main thoroughfare and provides a welcoming threshold into the building. The design is very flexible to change over a long lifespan and a strict structural grid was adopted. Elevations follow a 1m module with vertically banded windows allowing maximum flexibility to relocate internal walls.
Services follow a ‘ring main’ around the atrium edge feeding off to perimeter rooms, all intended to provide maximum building lifespan. The project was delivered on a live site and to an ambitious timescale, opening to students exactly three years after design work commenced, with the final eight months during the peak of the first wave of Covid-19. While occupancy was limited during the first year, the spaciousness and natural ventilation strategy has enabled staff and students to make use of the building throughout the pandemic.
The University has targeted carbon neutral by 2030. The brief included BREEAM Excellent, with a focus on operational energy and a DEC B operational energy rating. The building is designed for long-term adaptability with an efficient structural grid. Corten steel cladding requires no maintenance and windows were selected that would exceed 60-year lifespan. The 1000m2 atrium roof is glu-lam and CLT which has offset 125t of carbon. This highly serviced building performs extremely well against the RIBA 2025 climate targets and through robust design strategies will provide very long life with minimum barriers to adaptation and change.
Project gallery
Project location
Address:Bristol, United Kingdom
客服
消息
收藏
下载
最近




































