查看完整案例

收藏

下载

翻译
Architects:FaulknerBrowns Architects
Area:8250m²
Year:2019
Photographs:Jack Hobhouse,David Cadzow,Kristen McCluskie
Manufacturers:Randers Tegl,Rieder Group,Forbo Flooring Systems,Interface,Armstrong Ceilings,British Gypsum,Broadstock,CTD,Frovi,Hardscape,Ideal Standard,Naughtone,Orangebox,Schüco,Thorn,VMZINC,Venesta,Zumtobel
Mechanical & Electrical Engineers:Buro Happold
Landscape (Design Stages):Land Use Consultants
Landscape (Delivery Phase):OOBE
Environmental Engineers:Buro Happold
BREEAM Assessor:Cundall
Planning Consultant:DPP
Clients:Durham University
Delivery Architects:Space Architects
Project Manager, Quantity Surveyor And Cost Consultant:Turner & Townsend
Structural / Civil Engineering (Design Stages):Buro Happold
Structural / Civil Engineering (Delivery Phase):Cundall
Environmental / M&E Engineers (Delivery Phase) Environmental / M&E Engineers (Design Stages):Buro Happold
Environmental / M&E Engineers (Delivery Phase)::Cundall
Clerk Of Works:Hickton (on behalf of Durham University)
M&E Engineers:Buro Happold
Structural And Civil Engineering:Buro Happold,Cundall
City:Durham
Country:United Kingdom
Text description provided by the architects. In 2017, a new University Strategy was launched to offer strategic direction for Durham University over a ten-year period. FaulknerBrowns were engaged to inform and support this strategy with the development of a new University Masterplan. Central to the new University Strategy and Masterplan was the provision of enhanced teaching and learning facilities to support an increase in student numbers, enable the adoption of new pedagogies, and to create facilities that could be shared by all students rather than be aligned to specific faculties or departments.
The Lower Mountjoy Teaching and Learning Centre was the first strategic project to emerge from this plan. Independent research into how spatial design can support the success of innovative pedagogies informed the development of teaching and learning ‘space model’, which became the basis for the building’s accommodation brief.
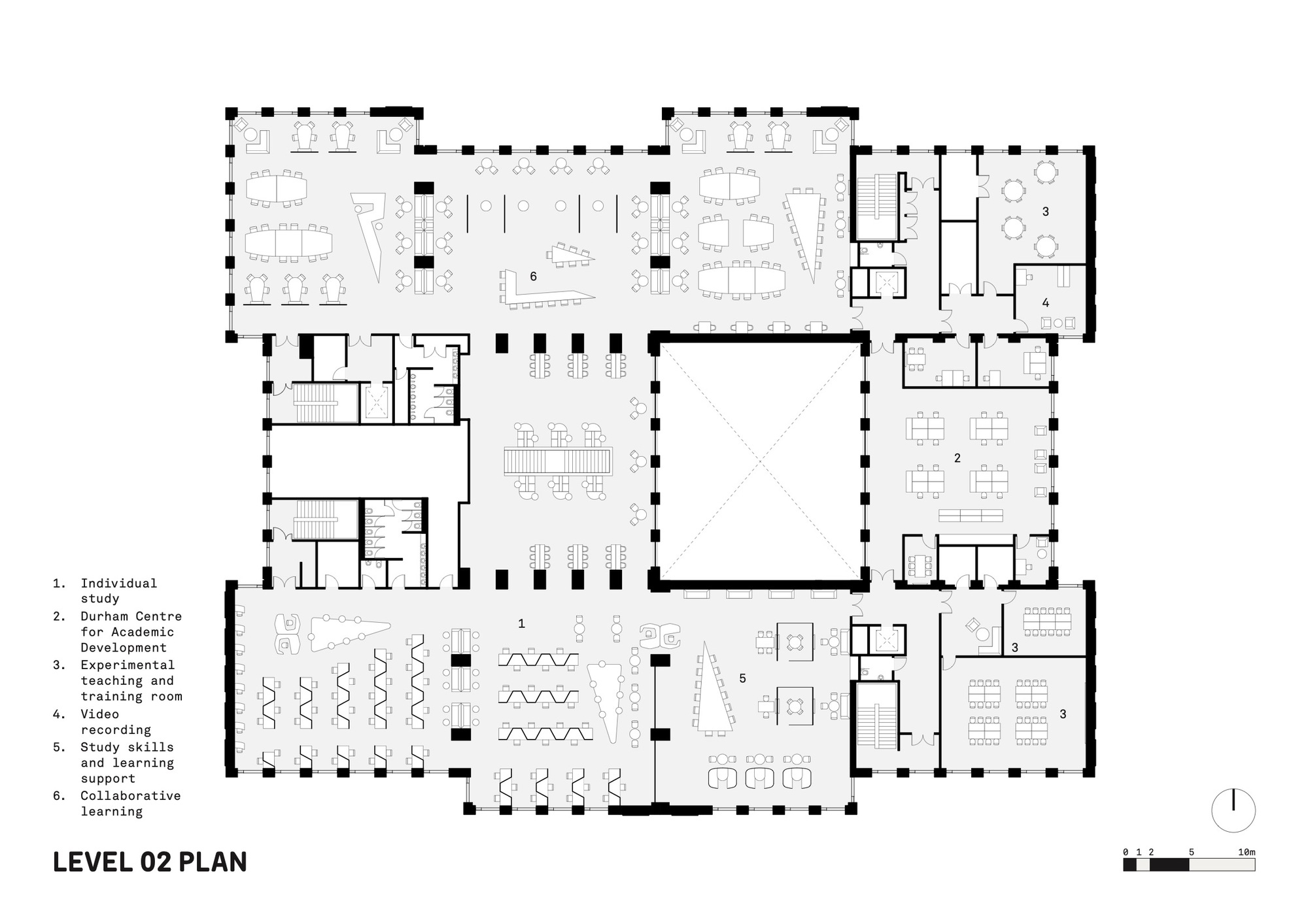
A top-lit central courtyard forms the social and circulation hub of the building giving access to the café, 250 and 500 seat lecture theatres, seminar spaces and project rooms. A diverse mix of teaching spaces surrounds the lecture theatres, supporting traditional seminars as well as more innovative pedagogies. The vaulted top floor of the centre provides an extensive ‘learning commons’ with a broad range of settings for focused, contemplative, active and collaborative learning.
The site is located adjacent to a conservation area and within view of a UNESCO World Heritage Site. To ensure the new centre integrates sensitively with its context, the overall building volume is broken down into an assemblage of smaller repeated elements to relate more closely to the fabric and grain of the historic city.
A three-storey module with a 15x18m footprint was established as the building block from which the centre was formed. Each module has two façade types: a ‘fenestrated’ façade generally on the long face, and a ‘gable’ façade to the short face. Each module is capped by an asymmetric pyramidal roof with a central roof light. Twelve of these modules rotated and handed, create the plan layout and building volume, with one of the central elements being ‘removed’ to create a focal internal courtyard.
The dynamic roof profile not only delivers interest in the external form, it also creates a series of dramatic top-lit ceiling coffers to the upper-level learning commons. Full height windows provide views to the surrounding landscape and glimpses of the city’s iconic cathedral.
An elegant and durable palette of materials gives character to the exterior. Handmade facing bricks, in a combination of buff and grey, form the predominant external material. The pyramidal roofs are finished in a traditional standing seamed zinc sheet to contrast with the tones of the brickwork below and respond appropriately to the conservation setting.
An integrated technology and sustainability strategy was central to the university’s vision for the teaching and learning centre. The centre has therefore been designed to BREEAM ‘Excellent’ standard and to deliver EPC ‘A’ rated energy performance.
Since opening, the building has established itself as a hugely popular facility for teaching and learning, embraced by students and academics alike.
Project gallery
Project location
Address:Durham, United Kingdom
客服
消息
收藏
下载
最近



























