查看完整案例

收藏

下载

翻译
Architects:Atelier RenTian
Area:6667m²
Year:2023
Photographs:Inter_mountain images
Lead Architects:Tian Ren
Civil Construction:Zhejiang Dajing Construction Co., Ltd.
Landscape:Linhai Urban Investment Engineering Construction Co., Ltd.
Interior Decoration:Zhejiang Xurui Construction Co., Ltd.
Design Team:Weiyi Lin, Shiyi Li, Siyi Zheng
Collaborate Ldi:The Design Institute of Landscape&Architecture China Academy of Art Co., Ltd.
Clients:Linhai Guyou Asset Investment Holding Co., Ltd.
Program:Educational Architecture--Kindergarten
City:Taizhou
Country:China
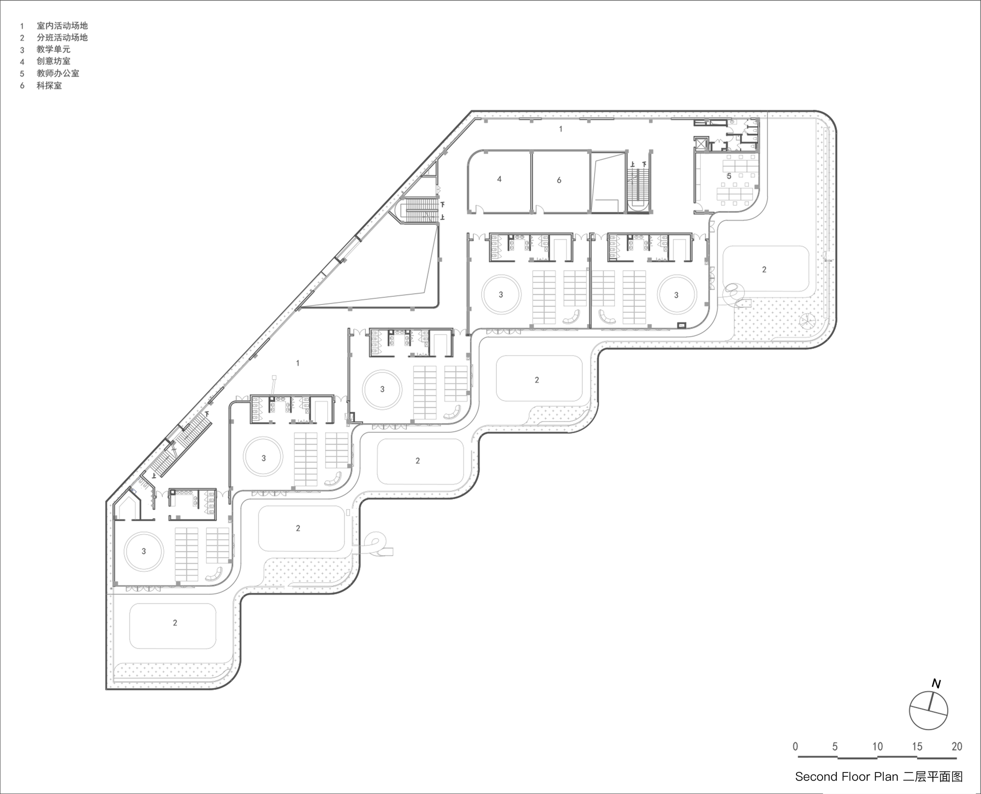
Text description provided by the architects. Located in Linhai City, Taizhou City, Zhejiang Province, China, the new 12 classes of Dayang Preschool Group Xicheng Kindergarten can accommodate 360 children between the ages of 3 and 6. With the design concept of "children's big toys", the design aims to create a learning environment that makes children feel at ease and relaxed, and establish a teaching space for children that respects nature, develops personality, and cultivates spirituality. The park adopts the waveform, which echoes the mountain, introduces sunlight, wind, and plants so that children can feel the natural changes of the four seasons, and stimulates children's imagination, natural perception, and artistic experience.
Subject to the special trapezoidal land, the design breaks the simple spatial form of the traditional kindergarten and expands the traffic space into indoor and outdoor activity space with different design themes as clues: The enlarged fold-shaped activity corridor forms a communication space, and the partial expansion of the traffic space is the hall as an indoor public game activity space, and the children's slides are arranged both indoors and outdoors to connect different floors up and down, providing a rich and colorful activity and game venue for children.
The teaching units still adopt the standardized activity unit type, and the layout of the floor-by-floor is withdrawn. There are indoor activity places of different scales inside, and the outdoor activity space of each class integration is set up outside. Each children's outdoor activity space is separated by a "path", weakening the strict boundary between classes and forming a more open spatial relationship that can be integrated.
The concept of "availability" is introduced into the design of a preschool education environment, aiming to improve the possibility of promoting children's behavior and enriching the educational attributes in the environment through the construction of the environment. Preschool education space is not only a combination of materials but also a relationship between teachers, children, and the environment. By perceiving the availability of the environment, young children discover new possibilities in exploration.
In kindergarten, design some small and interesting Spaces, such as a hidden space in the corner or a low space where only children can stand and play, to cultivate children's emotional awareness. In addition to small Spaces suitable for children's scale, public Spaces are also important, such as the design of the library to provide a variety of reading Spaces, the placement of skylights and a variety of play facilities in the atrium, to create a bright and interesting multi-dimensional environment.
Modern early childhood education theory (" Montessori method ") believes that the communication activities of children of different ages are conducive to their psychological growth, knowledge growth, and social ability cultivation. Kindergartens should provide Spaces for children of different ages to interact together and create opportunities for children of different ages to do activities together. Therefore, when designing kindergarten architectural space, it is necessary to break through the pattern of separation and closure, emphasize both separation and combination, flexibility and change, and attach importance to the creation of public activities and communication space.
Project gallery
Project location
Address:Xiecheng Bei Road, Dayang Residential District, Linhai, Taizhou, Zhejiang, China
客服
消息
收藏
下载
最近













































