查看完整案例

收藏

下载

翻译
Architects:Team MIMO,University of Applied Sciences Düsseldorf
Area:115m²
Year:2022
Photographs:Marvin Hillebrand
Text description provided by the architects. The House Demonstration Unit is a research building of the University of Applied Sciences Düsseldorf as a contribution to the Solar Decathlon Europe and the living.lab NRW.The Solar Decathlon is considered the largest international building energy competition. For the 20th time, universities worldwide were asked to develop and implement ideas for sustainable building and living. In June 2022, the final took place for the first time in Germany, more precisely in Wuppertal. The interdisciplinary team MIMO united 18 professors, about 70 students, and ten staff members from all seven departments (Architecture, Design, Electrical and Information Engineering, Mechanical and Process Engineering, Media, Social and Cultural Sciences, and Economics) to compete in all competition categories of the competition.
The team from Düsseldorf University of Applied Sciences has set out to demonstrate a solution for holistic resource-efficient buildings in an urban context under the guiding principle ‚Minimal Impact - Maximum Output‘, or MIMO for short. The guiding principle implies that only what adds value to the place and creates maximum benefit with minimum impact should be done. The building prototype to be implemented traditionally in the Solar Decathlon competition and to be erected in two weeks is called House Demonstration Unit, HDU for short, and the current competition edition shows for the first time the concept focal points elaborated in the preceding so-called Design Challenge - a redevelopment and expansion concept for urban densification elaborated in the style of an architecture competition.
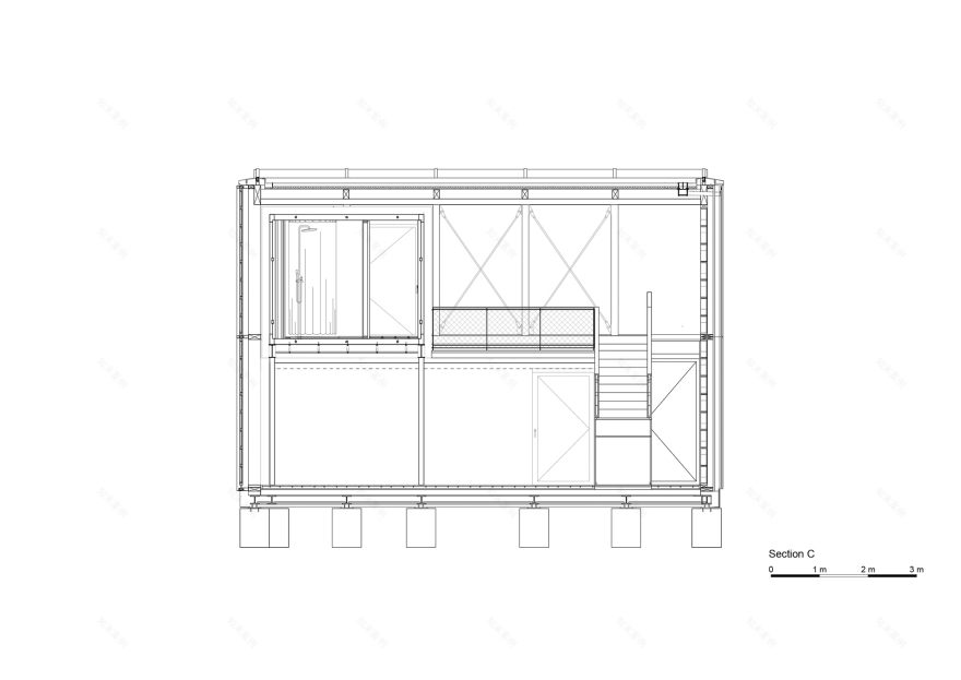
The HDU of Team MIMO exemplarily shows two compact residential modules shortened to approx. 8 m as well as a technic module, which is placed on top of each other over two levels as well as surrounded by the climate envelope. The so-called climate envelope surrounding the common room and residential modules forms a thermal buffer space via large, openable skylights and glass louvers in the facade. On each of the two levels, there is a residential module reduced to the bare essentials, as well as communal areas such as a kitchen, a large dining area, a lounge, and a development of furniture including storage space.
The modules are based on solid, glueless solid wood wall and ceiling elements that were prefabricated into room modules and transported to the Solar Campus in Wuppertal fully installed. Besides glue-free wood and untreated cork, clay is the most important natural building material in the project. Team MIMO‘s HDU will be used as a research object for three years at the Solar Campus in Wuppertal as part of the living.lab of the federal state North Rhine-Westphalia (NRW). The living.lab NRW is the central research and educational facility of the state of NRW for climate-neutral building and sustainable living in the city of the future.
Project gallery
Project location
Address:Wuppertal, Germany
客服
消息
收藏
下载
最近




























