查看完整案例

收藏

下载

翻译
Architects:dwp
Area:2433m²
Year:2021
Photographs:Brett Boardman
Manufacturers:Troldtekt,Regupol America,Alpha Precast,Austral Bricks,Forbo,Havwoods,Lysaght,Rubner Holzbau S.p.A.,Supawood,Viridian
Lead Architect:Ivana Simkovic
ESD Consultant:Northrop
Acoustic Engineers:Northrop
Landscape Architect:Clouston
Quantity Surveyor:WT Partnerships, WT Partnership
Builder:Belmadar
Documentation Team:Hugh Thomson, Tiziana Tovar
Signage:Carol Leung
Structural And Civil Engineers:Northrop
Hydraulic Engineer:Northrop
Bca Consultant:Design Confidence
Dda Consultant:Design Confidence
Fire Engineers:Design Confidence
City:Merrylands
Country:Australia
Text description provided by the architects. The design of the Eric Tweedale Stadium is driven by the stadium’s connection to the local environment and history of the Cumberland Plains. Located within Granville Park, once a widely forested area, its form and materiality respond to the site’s heritage and create a connection to its current sporting environment. The Stadium extends beyond the traditional perception of the suburban grandstand, catering for Cumberland City Council’s diverse community while remaining sympathetic to the environment and setting within Granville Park.
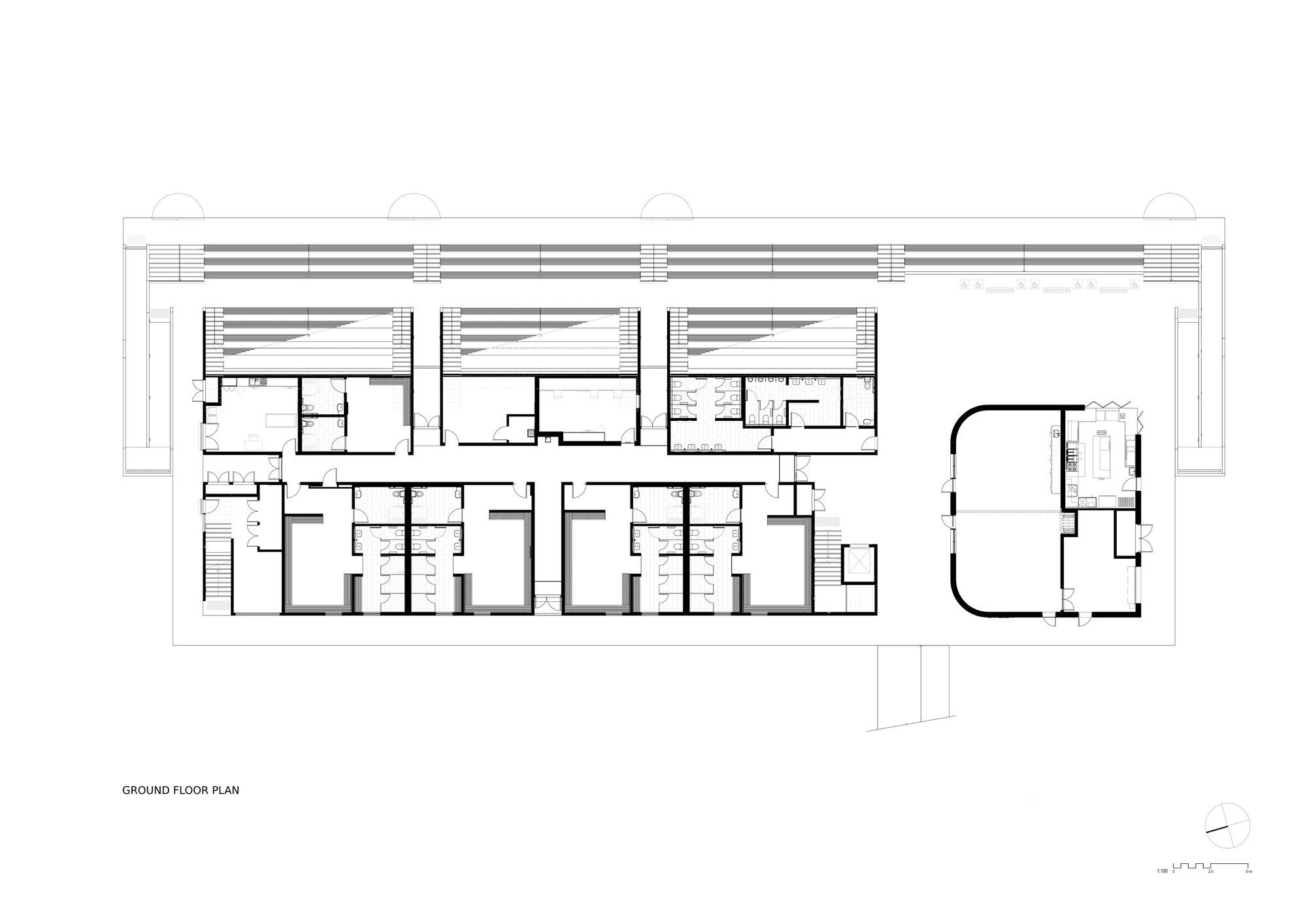
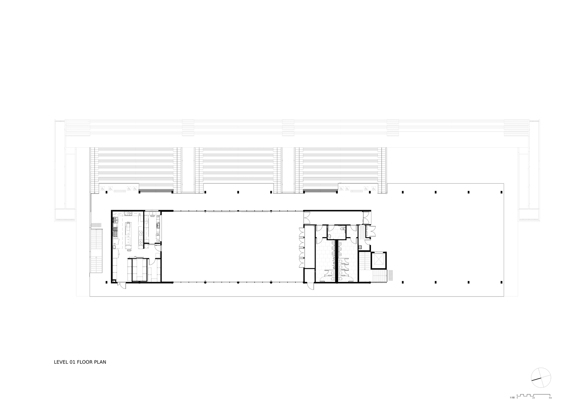
Located on the western side of the park, the stadium is surrounded by an upgraded rugby pitch to the East and mature and richly colored red and grey gumtrees to the West, separating it from the carpark and the street. A canteen and community multipurpose room open out to the viewing platform on the Southeastern corner of the building enabling multiple community activities to have an option for indoor/outdoor connection for versatile use of space. The Stadium also includes a grandstand for 760 spectators, change rooms, admin and first aid room, first-floor function space, a commercial kitchen, and an outdoor viewing deck on level 1.
The flexibility of design allows for different community and sports activities to unfold throughout the building. Function space on the upper floor has views to the east and west and allows for a variety of community events and well-being classes. Sustainable design was an important objective of the project and timber construction was key to achieving this. The goal was to demonstrate that this scale of the building can be a highly sustainable development that is a low carbon, low waste, and highly energy efficient.
The glulam roof cantilevers over eight meters over the seating, creating a simple yet impactful and beautiful form that also gives historical reference to the forest that once dominated the site. Beyond the low carbon footprint of the timber structure, the stadium has an east-west orientation to allow for natural cross-ventilation, passive solar shading achieved with timber roof overhangs, a rainwater tank for irrigation of the landscape and rugby pitch and flushing of toilets, and there is provision for photovoltaics over the entire roof and metering to monitor and reduce wastage.
The stadium provides an active contribution to climate protection of around 109t CO2e. This storage effect corresponds to the greenhouse gas emissions of 5 Australians per year or the combustion of 268 barrels of oil. The stadium’s interiors create a bright and welcoming atmosphere for different groups and users to meet, work, exercise, and socialize. The design of the interior’s palette is aimed at simplicity and a restrained look.
Timber rafters and columns are bringing a warm and earthy glow and softening the interior palette, while raw polished blocks and precast concrete are creating an inclusive design inspired by the stadium's connection to the environment, history, and heritage. The use of a mass timber structure in the Stadium is the first use of glulam timber for this type of facility in Australia, representing an impressive achievement in timber engineering.
Project gallery
Project location
Address:Merrylands NSW 2160, Australia
客服
消息
收藏
下载
最近























