查看完整案例

收藏

下载

翻译
Architects:Kode Architects
Area:487m²
Year:2019
Photographs:ui-jin Gu
Lead Architect:Min-Ho Kim
City:Bucheon
Country:South Korea
Text description provided by the architects. Recently, churches have been performing a role not only as puritanical churches but also as local community facilities. If a church that performs such an intermediate role overwhelms the surroundings with its ornate appearance, it would be absolutely not possible to avoid friction with the surroundings. We thought that urban churches would need to look simple in order to be considerate of neighbors and such formative simplicity in the busy downtown landscape could rather bring stronger symbolism.
Through an appropriate openings plan in a simple-form building that allows openings where they should be opened and eliminates openings where they should be closed, we allowed the church windows to be functionally operational and, at the same time, we created dramatic spaces using the lights in the spaces like main hall or staircase. Building a church with a limited budget in a form of simplicity and with an appropriate opening plan that produces strong symbolism in the urban area and still enables it fully to perform its original function is the key point of church architecture that we pursue.
What we considered the most important in the plan was that the new church would go well naturally with surrounding buildings. The land given was located at an alley of a residential area, one block inside from the main street, and surrounded densely by 3 or 4-story residential buildings. The old buildings and the vehicles parked even on such narrow alleys due to the lack of parking space made the surrounding landscape more crowded. In consideration of such condition of the land, we thought a fancy church might cause the only feeling of coercion to the surroundings but could not easily fit into the existing landscape. Our intention was to approach the neighbors with architecture in a simple form and frugal appearance not to make the neighbors feel pressure with the church building. We intended to build a space where people could experience spatial richness and face God.
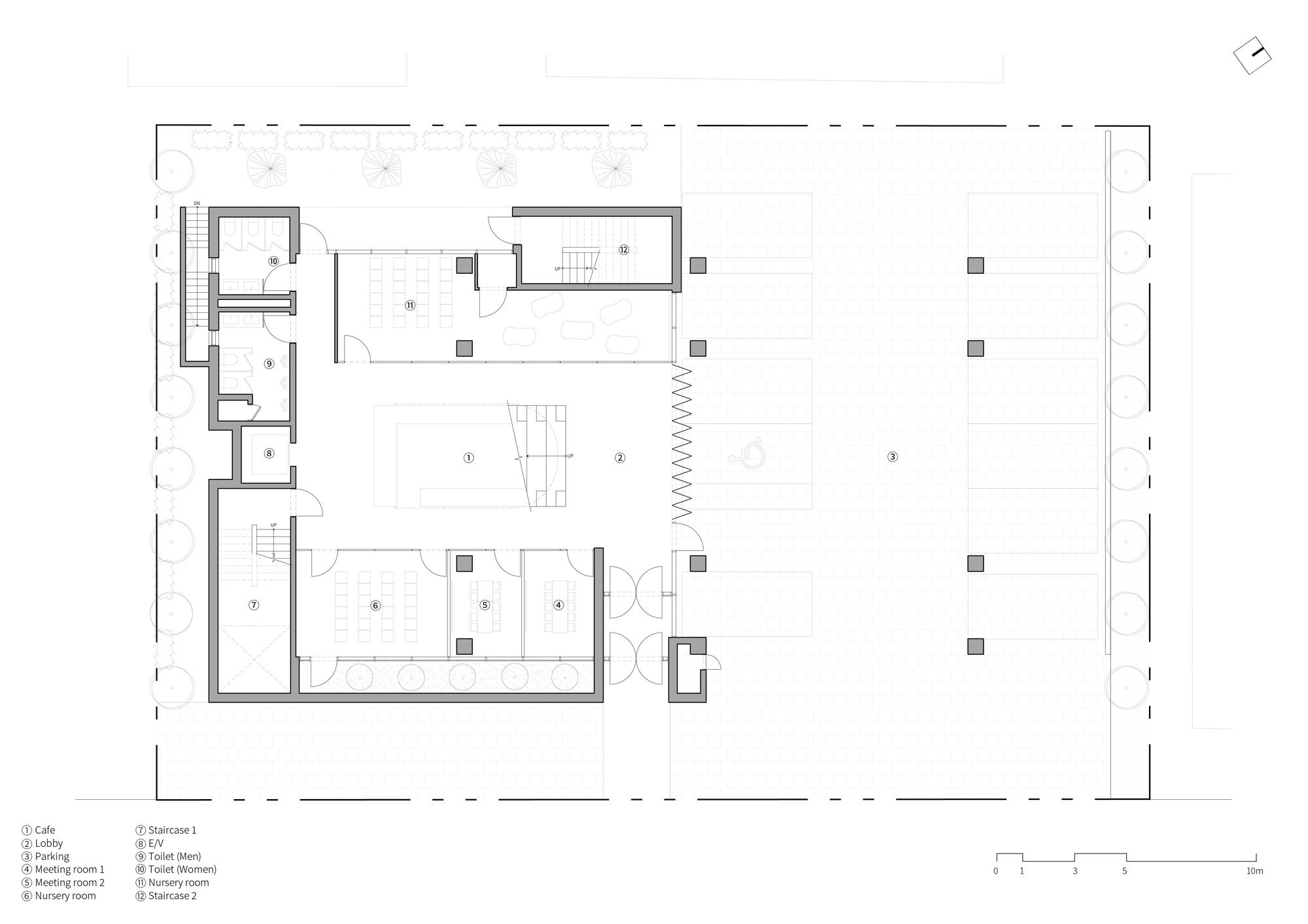
Considering the condition of the neighboring lands, we planned the building with a 3-storey horizontal mass. The space was largely divided by program for each floor and composed of a first-floor café, second-floor church main hall, and third-floor cafeteria. With a design that each floor was not built up in the same floor size but each floor was getting withdrawn more from the street as it goes up higher, we intended to minimize the feeling of coercion that the church building could produce to the surrounding buildings. Considering the spatial sequence required by the church, a rectangular space was desirable so that various ceremonies could be held.
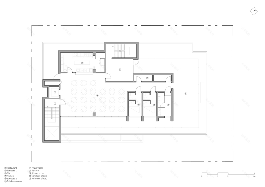
We designed a rectangular plane with a symmetrical module structure by adding symmetry, one of the characteristics of religious architecture. Accordingly, on the first and the second floor, subsidiary spaces are located symmetrically centered around a lobby and a hall with multipurpose stairways, and on the third floor which is comparably smaller than the downstairs, a cafeteria at the center is surrounded by rooms. The core such as vertical circulation/restrooms was lined up vertically and located at the end of the building, not following the rectangular plane flow, in order not to be overlapped with the main circulation flow that focusses on the multipurpose stairways. In addition, we tried to expose the identity of the church by expressing the vertical space of the stair hall instead of spireas a solid mass.
Due to the characteristics of churches that people converge not daily but only Sunday, it required a circulation plan that could accommodate such a huge flow. The grand staircase in the center of the church not only solves such circulation issues but also can be used as a stairway café or a concert hall for children on weekdays when not crowded, and can be utilized as a worship area when worship space is not sufficient. The first floor operated as a community space alters its characteristic according to the utilization of the multipurpose grand staircase and it creates a spatial characteristic of the entire church building. Therefore, the core space of the church is the grand worship hall but we can say the multipurpose staircase plays the most important key role in the whole architecture plan.
We planned congregation to have a religious experience during the course of sequence to come up the stairs to the second floor and move toward the grand worship hall. On the second-floor lobby, people face firstly a cross made by the wall vertically stretched up to the ceiling and the reveal horizontally spread, and after entering the grand worship hall, they face another cross made by the wooden decoration laying down horizontally and the long narrow vertical window. Through such space design, people can see the symbolism of the church successively from the lobby up to the grand worship hall. Furthermore, the inner spaces of the second floor excluding the grand worship hall are separated from the lobby by the glass and look visually opened but the solemn atmosphere of the church is maintained thanks to the long reveal coming down. This reveal gives territoriality to the lobby space and simultaneously maximizes the sense of openness at the very moment of entering the grand worship hall.
Project gallery
Project location
Address:18 Gyeongin-ro 398beon-gil, Sosa-gu, Bucheon, Gyeonggi-do, South Korea
客服
消息
收藏
下载
最近































