查看完整案例

收藏

下载

翻译
Architects:Arii Irie Architects
Area:483m²
Year:2019
Photographs:Kai Nakamura
Manufacturers:AutoDesk,Nuprotec,Tachikawa,Toli,YKK AP
Lighting Design:Sugio Lighting Design Office, Atsushi Sugio
Structural Design:KAP, Hideyuki Hagiuda, Sachiko Kominami
MEP:Architectural Energy Research Institute, Hiroshi Sako
Contractor:Siguma-kensetsu
Architect:Atsuo Arii, Kako Irie, Arii Irie Architects
City:Ageo
Country:Japan
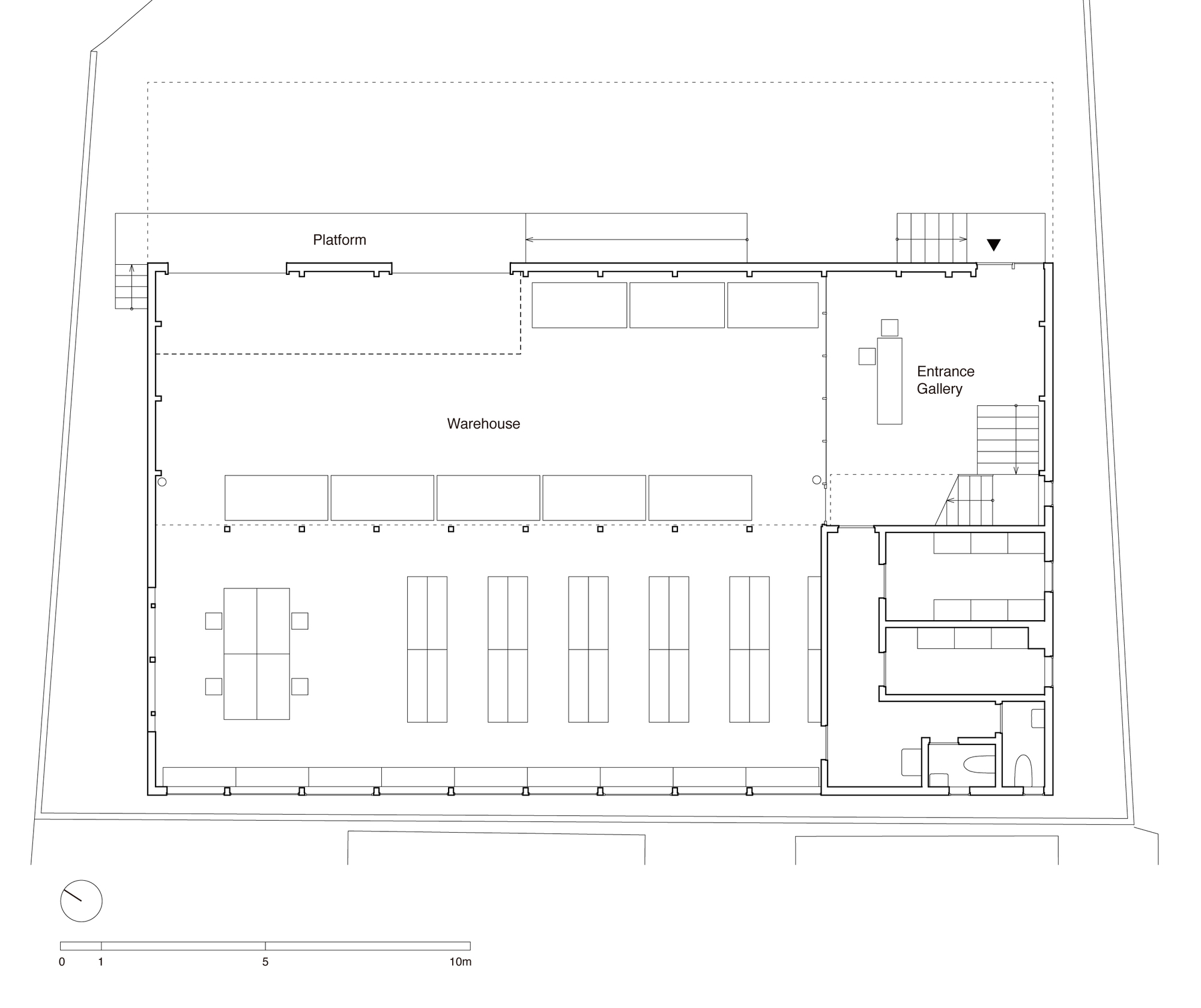
Text description provided by the architects. Located in a suburban context along a highway connecting Tokyo and Gunma, the project is a warehouse/office for a trading company that deals with machinery parts. A simple timber construction gable shaped roof with a cantilevering truss for the platform was chosen as a logical and economical solution for the organization of space.
The warehouse is positioned on the first floor with adequate floor height in the front for forklifts, and the office is placed in the rear of the second floor for protection from the roadway noise. Free standing columns divide the plan into two, with knee braces symmetrical to the gable segmenting the beams into standard lumber lengths. The diamond shaped space created by the knee brace is utilized as an environmental filter for the building.
Natural light penetrates above through the full length skylight while a tent suspended below diffuses the light and reflects it to the ceiling. The heat of the sunlight is sent to the floor by pair of air ducts in the winter and exhausted by fans on the gable end in the summer. The diamond shaped void hovers above the warehouse and office, seemingly as an autonomous space by its strong geometry, while providing a sense of comfort for the workers.
Project gallery
Project location
Address:Ageo, Saitama Prefecture, Japan
客服
消息
收藏
下载
最近






















