查看完整案例

收藏

下载

翻译
Architect:Kipseli Architects
Location:Chania, Greece; | ;View Map
Project Year:2017
Category:Shops
How can architecture and design express memory and time? This was the challenge during the relocation of a pharmacy where it was originally established 120 years ago. The spot, a listed building in the historical city of Chania, Crete, posed various architectural restrictions regarding the preservation of its original façade. Thus, we decided to create a new façade behind the old one.
Between these two, a gap was created, enclosing the memories of time, essentially the features of the old pharmacy: pharmacist’s bottles and old scales, original medicine and advertisements of the previous century, a pendulum clock stopped in time. In this pharmacist’s “cabinet of curiosities”, one can experience the past, with its superstitions, biases, secret remedies, and the sense of humor of the time.
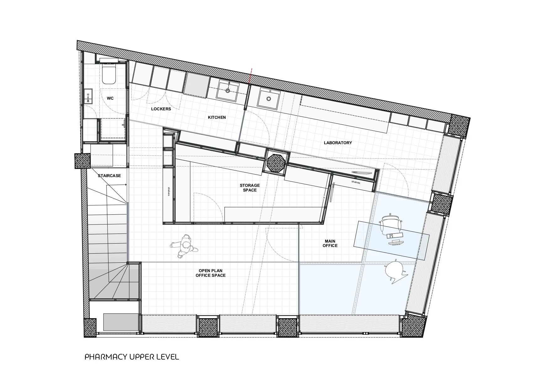
The concept behind the design of this pharmacy lies in the “nested-doll principle”, interpreting the recognizable relationship of objects within objects by overlaying layers of memories and time. Through this design technique the architects aimed to redefine boundaries between the present and past. The new façade created is double faced, on the inside one can experience the present with short glimpses to the past through the reuse of old furniture pieces from the old pharmacy.
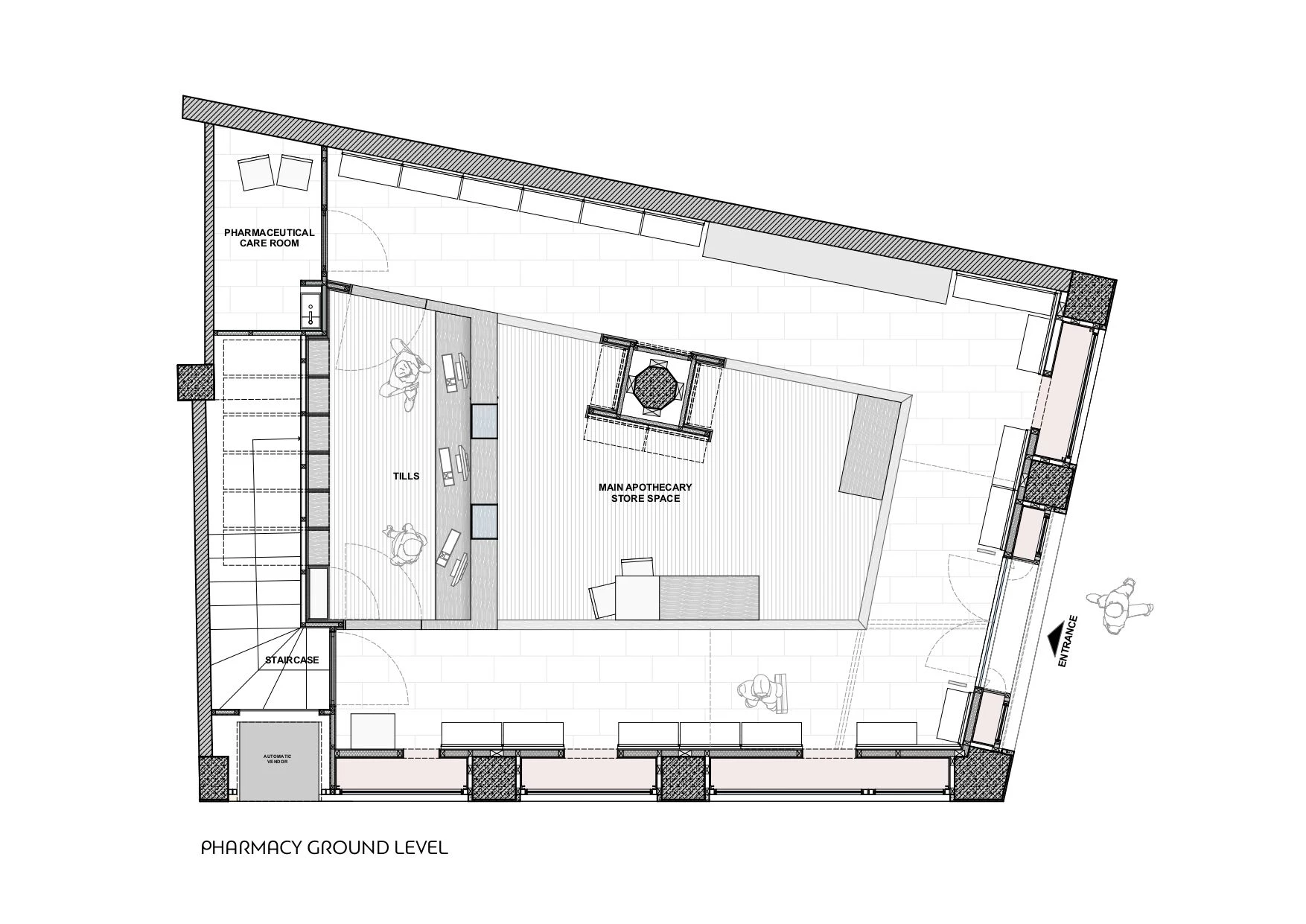
In the center of the shop there is the medicine counter area that is surrounded by the health and beauty retail zone which is developed in the perimeter of the shop. This dual design quality that lingers between past and present, inside and outside is intensified by the extended use of copper in the exterior side of the new façade in contrast with the all-white clinical interior side of it, through the different lighting color temperature used as well as all the traditional elements chosen to be shelved on the outside such as the blue and brown bottles that has been owned by three generations of the same family in comparison with all the health and cosmetic products that are placed on glass shelves on the inside.
Copper was specifically chosen due to its timeless qualities as well as its natural antimicrobial properties.
As it reflects an ambient red and orange light it harmonizes with the city’s authentic color atmosphere.
Thus this 90sqm pharmacy becomes a 120 year-old bequest that integrates into the historical city of Chania, it signifies the importance of wellbeing through the years and at the same time it successfully serves the purpose of a health and cosmetics store of the present time
Architects: Kipseli Architects
Design Team: Stylianos Axiotakis, Ilias Romanas
Contractor: George Bilas
Photographer: George Messaritakis
▼项目更多图片
客服
消息
收藏
下载
最近


















