查看完整案例

收藏

下载

翻译
Architect:Tomi atelier architect
Location:XJ74+XF6, Vientiane, Laos; | ;View Map
Project Year:2023
Category:Shops
HER WORKS is a brand by Lao women, showcasing the richness of local materials and empowering the skills of Lao women. Through a modern and distinctive approach, HER WORKS presents Lao products with a modern design aesthetic, capturing the essence of their craft in a uniquely charming style.
Derived from the brand's identity, the concept is rooted in a blend of contemporary aesthetics and authentic local elements. This inspired us to design the space and building with a timeless minimalist approach, seamlessly integrating with the surrounding environment.
Situated at the heart of Vientiane capital, this 4-storey tore of HER WROKS occupies a prime spot within a bustling community area, frequented by both locals and tourists, infusing the surroundings with vibrant energy throughout the day and night.
In creating the facade, our aim was to achieve simplicity and harmony with the surrounding architecture while embedding it with an inviting charm. We choose to feature the brand's iconic triangular shape in the facade design, seamlessly using the shape for the small openings. Emphasizing the central triangular opening, our goal was to create a focal point within the facade design. These triangular shaped apertures serve not only an aesthetic purpose but also help in control natural lights that enter the interior space. Furthermore, this facade design promotes airflow, embracing the concept of natural ventilation.
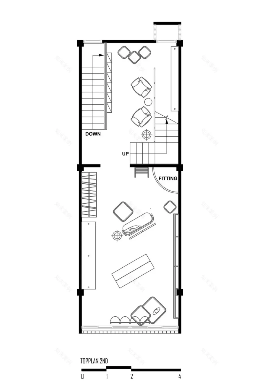
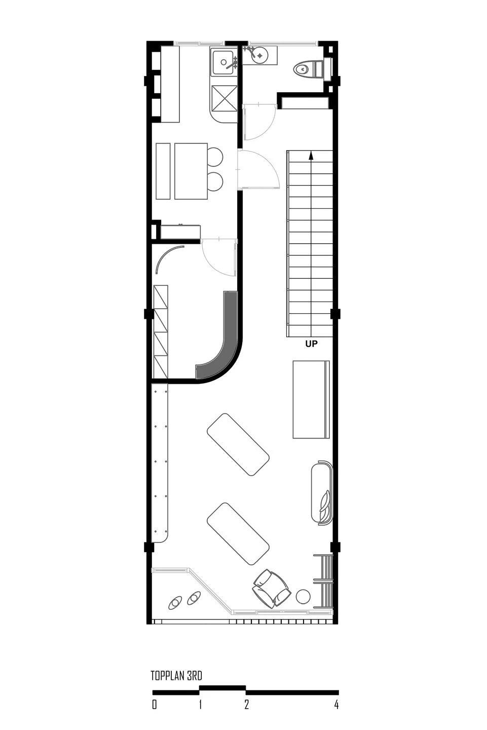
Considering the existing architectural as a flat house with open only front and back sides, we have installed windows at both ends across all floors for a better airflow and implemented roof ventilation on the fourth floor which designated as a storage area, to enhance air circulation through the premises. Additionally, we have incorporated a solar panel on the roof to enhance the sustainability aspect of our design concept and facilitate the generation of electricity for the shop.
In terms of an interior design, polished terrazzo is being selected for the general floor finish while ceiling and wall finishes are in a stucco paint, both of which were a popular material in the past. The overall mood and tone of the shop are neutral, achieved through a combination of off-white and beige colors. Accents are provided by timber elements on the walls and product shelves. These simple yet timeless elements serve to elevate the product display within the store. Notably, the reception counter and its featured backdrop, fashioned from HERWORKS original cotton materials, have been creatively transformed into organic shapes and assembled as one astonishing backdrop, serving as the focal point upon entering the shop. To entice guests to explore the upper floors, we have adorned the ceiling with a navigational line inspired by the local tribal weaving patterns. Furthermore, on the accent wall of the third floor, we have depicted intricate weaving patterns inspired by the local vine known as "Kheua Por Piak". This not only connects to local elements but also enhances the shop's aesthetic appeal.
Finally, we are deeply honored to have been a part of this meaningful project. We firmly believe that HER WORKS serves as more than just a display for products crafted by Lao women. It stands as a hub for sharing knowledge about the Lao region and offers visitors an opportunity to immerse themselves in the fusion of craftsmanship, design, and art.
▼项目更多图片
客服
消息
收藏
下载
最近


























