查看完整案例

收藏

下载

翻译
Flower shop boutique
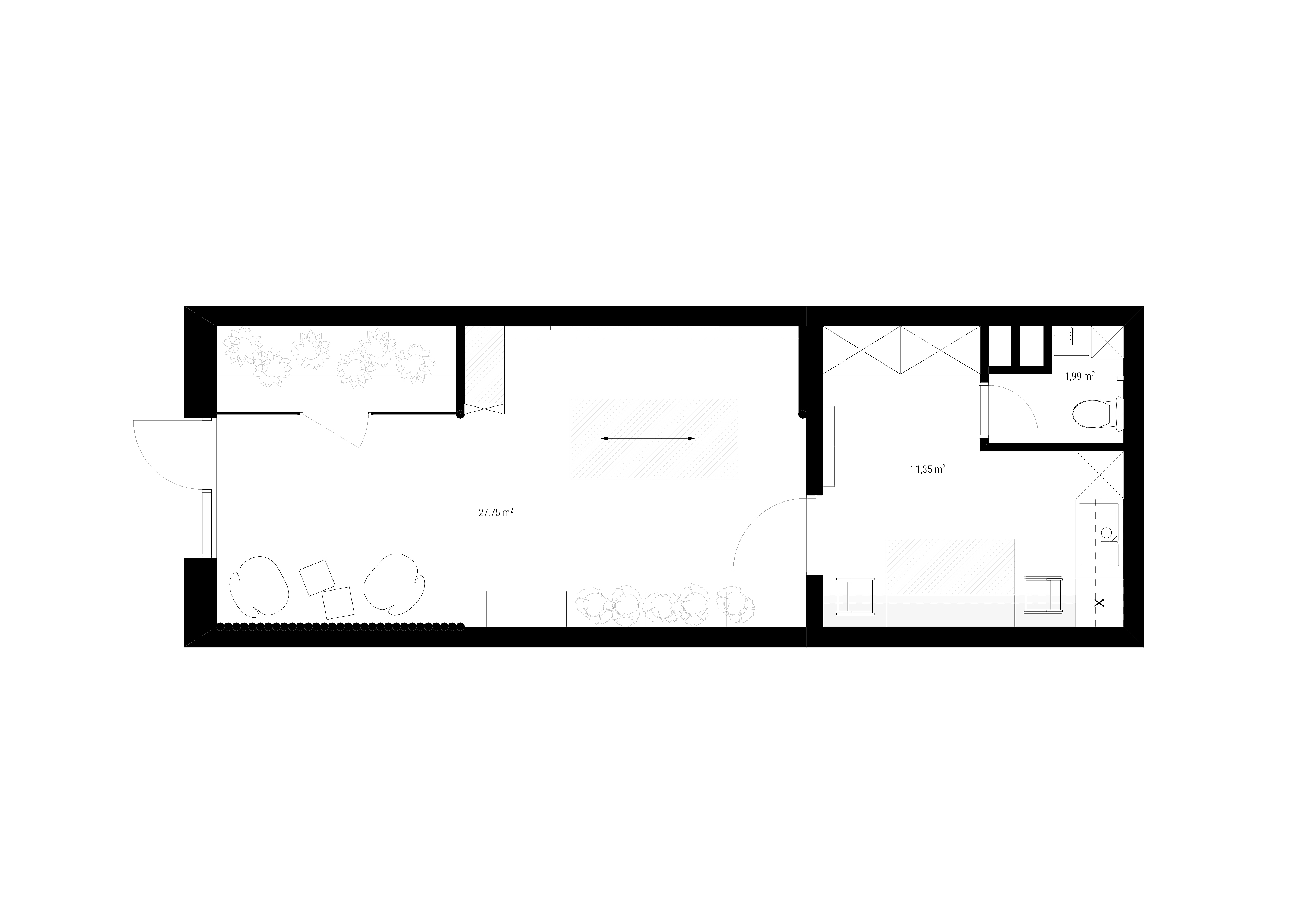
AREA: 41 m2
LOCATION: Kyiv, Ukraine
La Rue is a flower boutique that specializes in online bouquets. Therefore, in the first place, the store was designed for the convenience of florists who will work on bouquets for delivery. A huge mobile transforming table in the main room allows several specialists to work simultaneously and adjust position for their easement. It was developed in close cooperation with the store's florists, and therefore takes into account the peculiarity of their work as much as possible: it provides shelves for wrapping paper, pull-out containers for waste, and tool boxes. If necessary (because of the large overload of orders, for example), a folding table for work is also provided in the utility room. The mirror facing on the far wall masks the entrance to the utility room, visually enlarges the store's space and allows natural street light to be reflected even in the back of the store, making the room brighter at the work place.
It is no less important for an online store, of course, to provide a visually attractive "instagrammable" background for a photo shoot of ready-made bouquets and, in general, for sharing the store's work processes and life on social media. Therefore, in the main hall, despite the small area, we have developed several photo locations, with different backgrounds / colors / styles and different levels of illumination for different moods of the bouquets.
* Logo design and brand book developed by NEXTPAGE (2019)
Thank you for watching!
客服
消息
收藏
下载
最近

















