查看完整案例

收藏

下载

翻译
Location:1-6 Funatochō, Ashiya, Hyogo, Japan; | ;View Map
Project Year:2023
Category:Shops
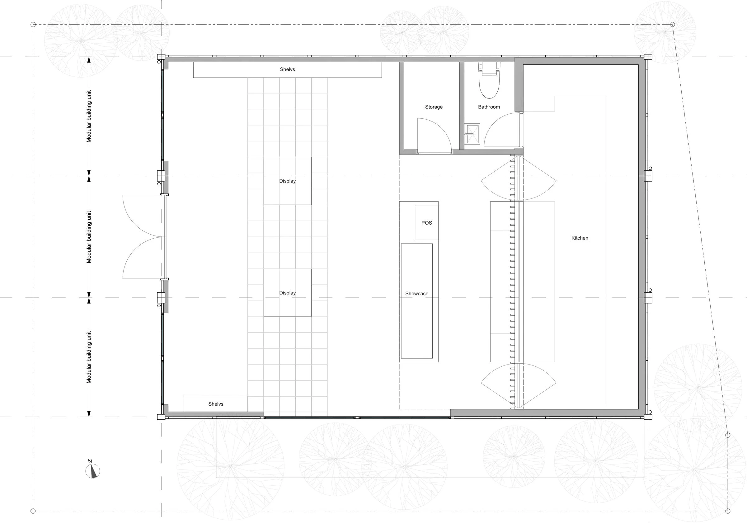
This is a standalone baked sweets shop project in Japan.
We are facing worldwide sharp inflation rises as never before due to the covid pandemic and the war.
Construction cost is no exception, and architects & designers need more precise, flexible and sharper project decisions.
Our challenge here was to be faced with this chaotic modern era.
We knew that project cost control was extremely difficult in this period, so we tried to find a simple material scheme and construction method, yet the brand value and elegance remained.
The building itself is prefabricated modular type, constructed by a crane in a day at the site. We finished the exterior with white painted boards - It is just another white wall, but it can be a unique canvas of tree shadows, giving visitors a welcoming vibe.
Since the place concept is a literal organic baked sweets shop, we used Terra-cotta (baked clay) tiles and natural woods as an interior accent. Besides, we decided to paint the rest of the area white based on our intention to reinvent the atmosphere of simplicity.
Thanks to the selected materials and structural uniqueness of the building, the whole building modules can be moved and re-constructed easily by a crane in a different place as a new structure in case our baked sweets shop closes or changes location. In this manner, the design of the object achieves environmentally conscious qualities and contributes to sustainable urban developments for a better future.
This project represents how we, as designers, address global challenges in modern times and imagine a better future by taking small yet precise changes and decisions into our practice.
Through simple yet conscious decisions, the modular building with a white paint finish invents its own ways in response to environmental challenges.
The project aims to produce a gesture where the designer, on the one hand, follows the client's goals and visions for a successful business for maximum commercial results. On the other hand, it suggests design solutions using much less waste of energy, including time, effort, budget, and materials.
Founder, Nao Tokuda
▼项目更多图片
客服
消息
收藏
下载
最近























