查看完整案例

收藏

下载

翻译
// CONCEPT
Less is more and so is the case with the lightingsituation. Minimal shape with clean lines, something thatcontrasts the space rather than overpower.
Choose neutral fabrics like beige, off white or mutedgrey, natural wood tones and simple shapes.
Choose neutral colors for walls which better reflectdaylight through space.
Decorations are maintained to a minimal degree tomaintain a calm ambiance.
The furniture has a distinct artisan feel.
We heavily focused on simplicity,creating a peaceful and warm environment with aminimalist layout.
// ZONING
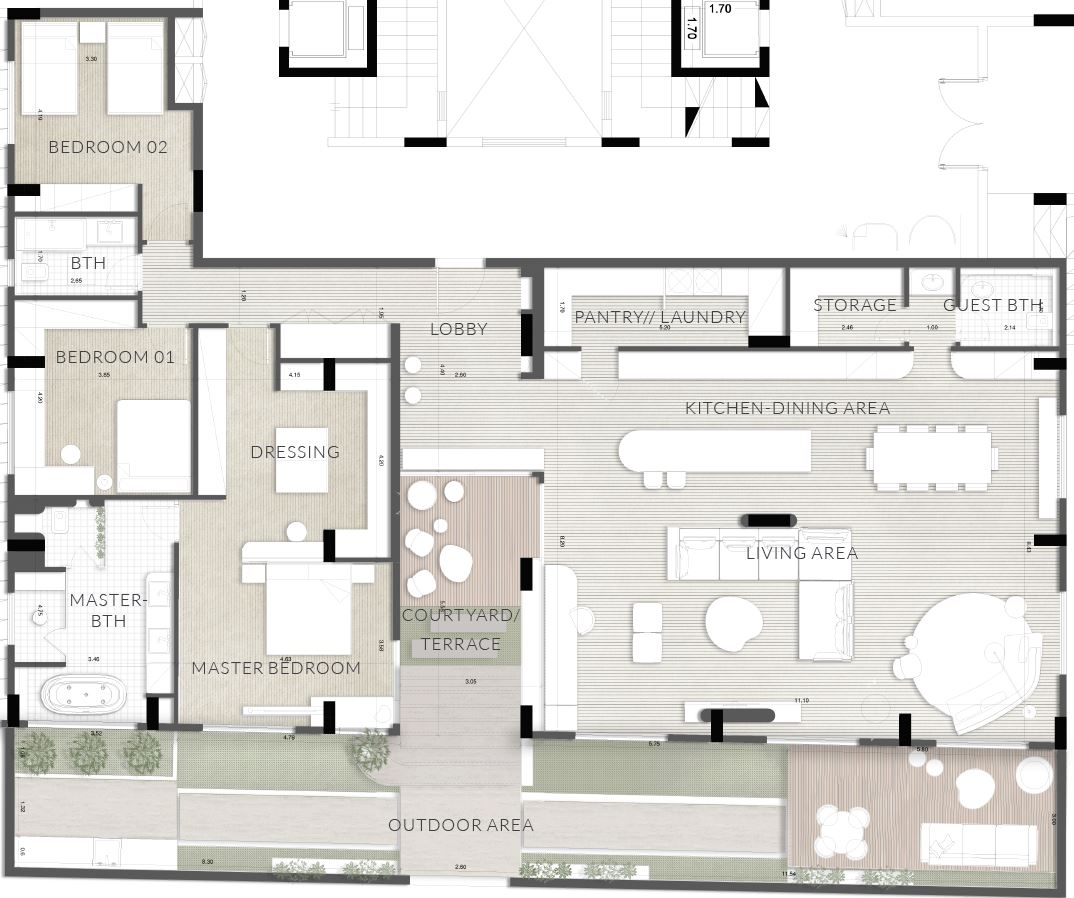
// MASTER PLAN
// LIVING AREA & DINING AREA
// MASTER BEDROOM
// MASTER BATHROOM
// BOY BEDROOM
// GUEST BEDROOM
// OUTDOOR LANDSCAPE
客服
消息
收藏
下载
最近
























































