查看完整案例

收藏

下载

翻译
Designer:Specific Generic
Location:Paris, France; | ;View Map
Project Year:2023
Category:Shops;Showrooms
After successful stores in the US, luxury eyewear brand Ahlem is opening a flagship store in their home city of Paris. Stockholm based multidisciplinary design agency Specific Generic has been rewarded the great trust to give shape to the store. They have explored the visual world of artists Isamu Noguchi and Constantin Brâncuși as a basis for the development of the design, resonating with Ahlem’s artistic vision
where both artists have been a constant influence.
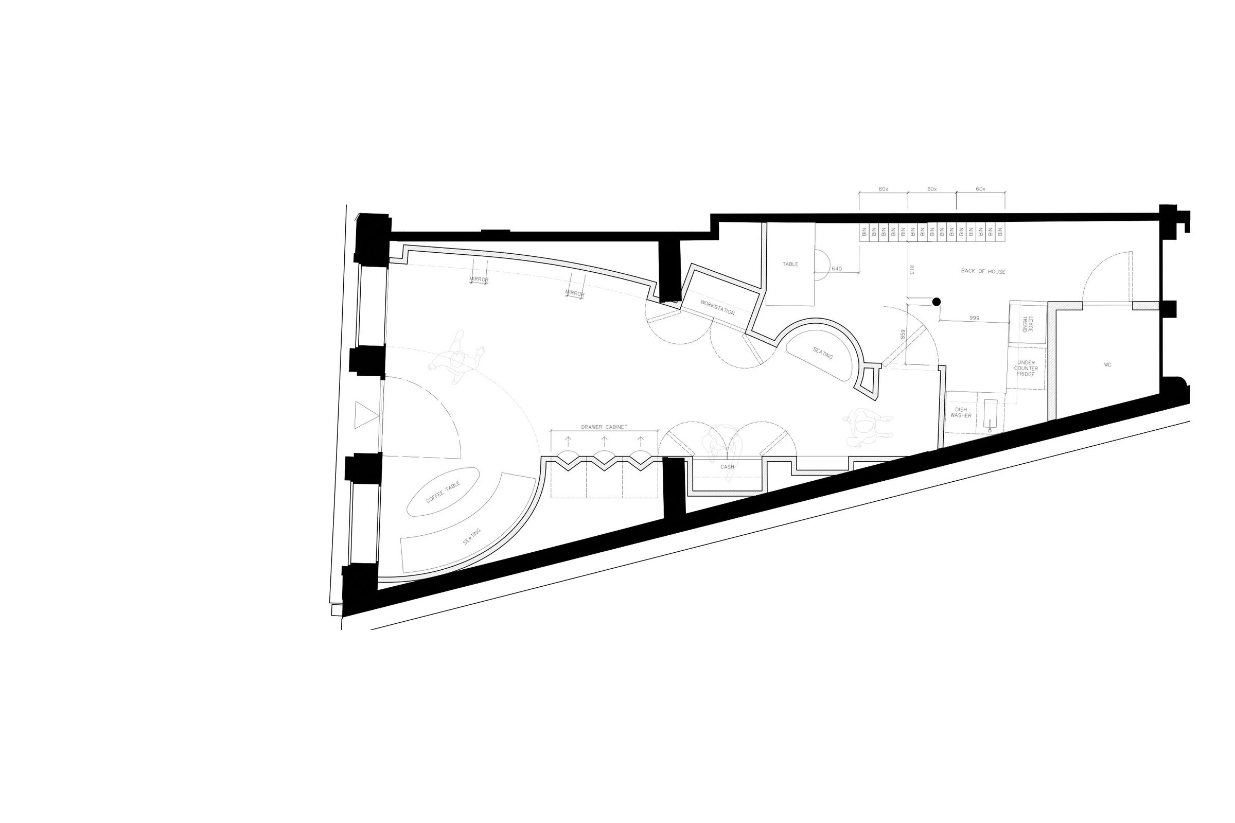
Noguchi, who shared his time between the US and Paris, just like Ahlem, is a fundamental source of inspiration for the brand and the design of the store reflects this kinship. The shape of the space interacts directly with The Paris Abstractions, from Noguchi's early work, creating a soft and memorable setting for the presentation of the finest of craft, the eyewear.
Specific Generic creates a space where voids contribute on equal terms with the built structures. The color and materiality of the walls evoke a sculptural plaster object by Brâncuși. Ahlem’s passion for quality and attention to detail has inspired the architects to invite elements of craftsmanship, such as the skillfully hammered edges of the wooden walnut benches.
Designers: Specific Generic
Photographer: Mickaël A. Bandassak
▼项目更多图片
客服
消息
收藏
下载
最近














