查看完整案例

收藏

下载

翻译
Location:Gyeonggi-do, South Korea; | ;View Map
Project Year:2021
Category:Shops
South Korea’s high-end boutique bakery, Whitelier, opens its fifth flagship store in Misa District of Gyeonggido, South Korea. Designed by New York and Seoul based award-winning studio, Studio Eccentric Co., Ltd., together they aim to display this flagship bakery store to the next level.
Compound word of ‘White’ and ‘Atelier’, Whitelier is well known for its specialty in making white bread. As this bakery only focuses on making premium white bread and jams, it has been important to express the artisanship of this bakery on the exterior as well as the interior of the space. Studio Eccentric has aimed to show this store as a white workshop of white bread and further developed on the design.
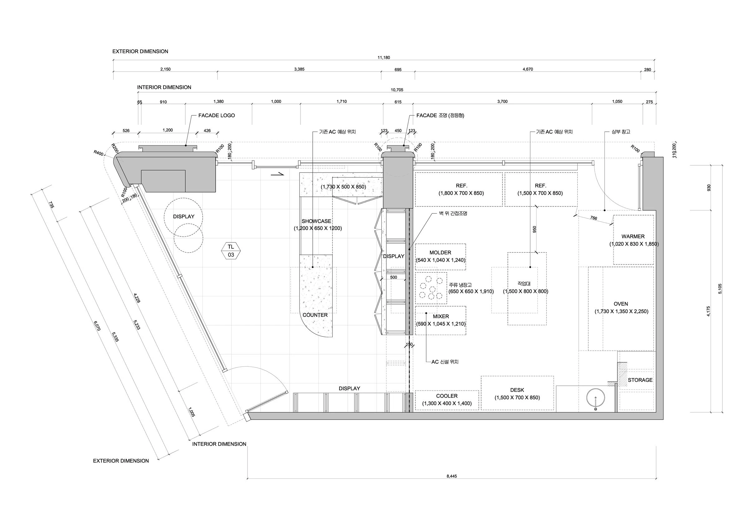
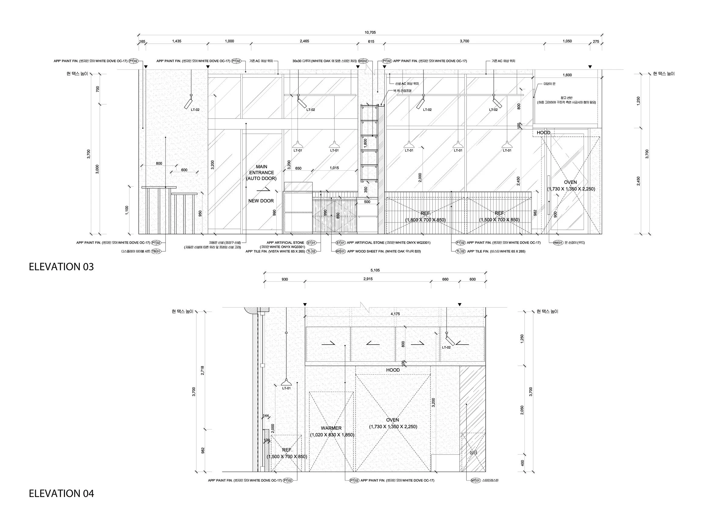
Within the area of 54 square-meters, it has been critical to use the limited space efficiently as the hall and the bakery kitchen are in need for enough space both to produce and display for customers. The white façade of the space along the whole width of the property represents the white workshop, catching people’s curiosity. Also the curvature of the white façade resembles the softness of the white bread. In addition, beige-colored low tile counter continues alongside of the hall to the kitchen, which can be seen as an one whole workshop from the outside.
Further inside, three-meter wall separates the hall and the kitchen of the bakery. As the exposed ceiling of the space is much higher than the wall, the wall does not give any impression of feeling constrained within the space. As the beige-colored tile counter wraps around from façade to inside, it warmly welcomes the customers to the display of the white bread and jams. As the main focal point of the hall, articulated wood structure display shelves are elevated on the separating wall, which emphasizes and exhibits the form and the beauty of the whole bread.
▼项目更多图片
客服
消息
收藏
下载
最近


















