查看完整案例

收藏

下载

翻译
Architect:COORDINATION ASIA
Location:Shanghai, China; | ;View Map
Project Year:2020
Category:Shops;Restaurants
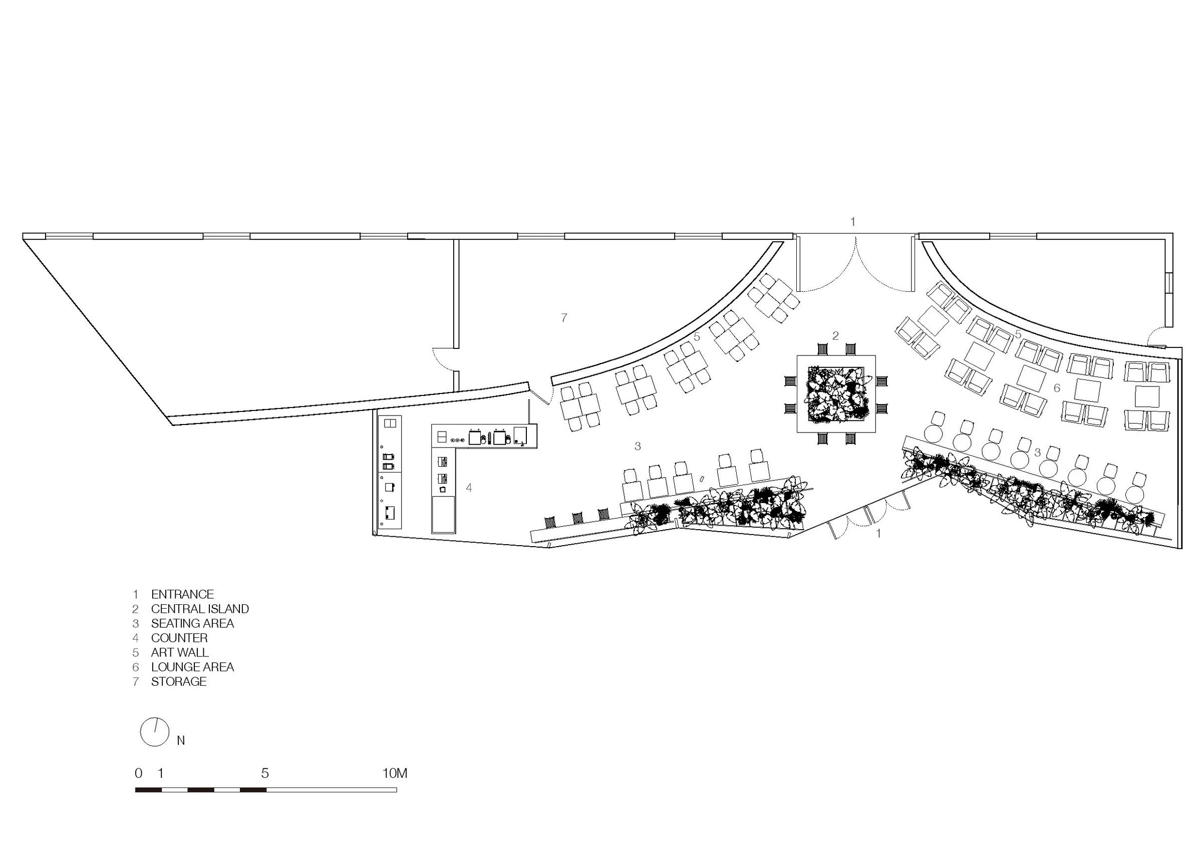
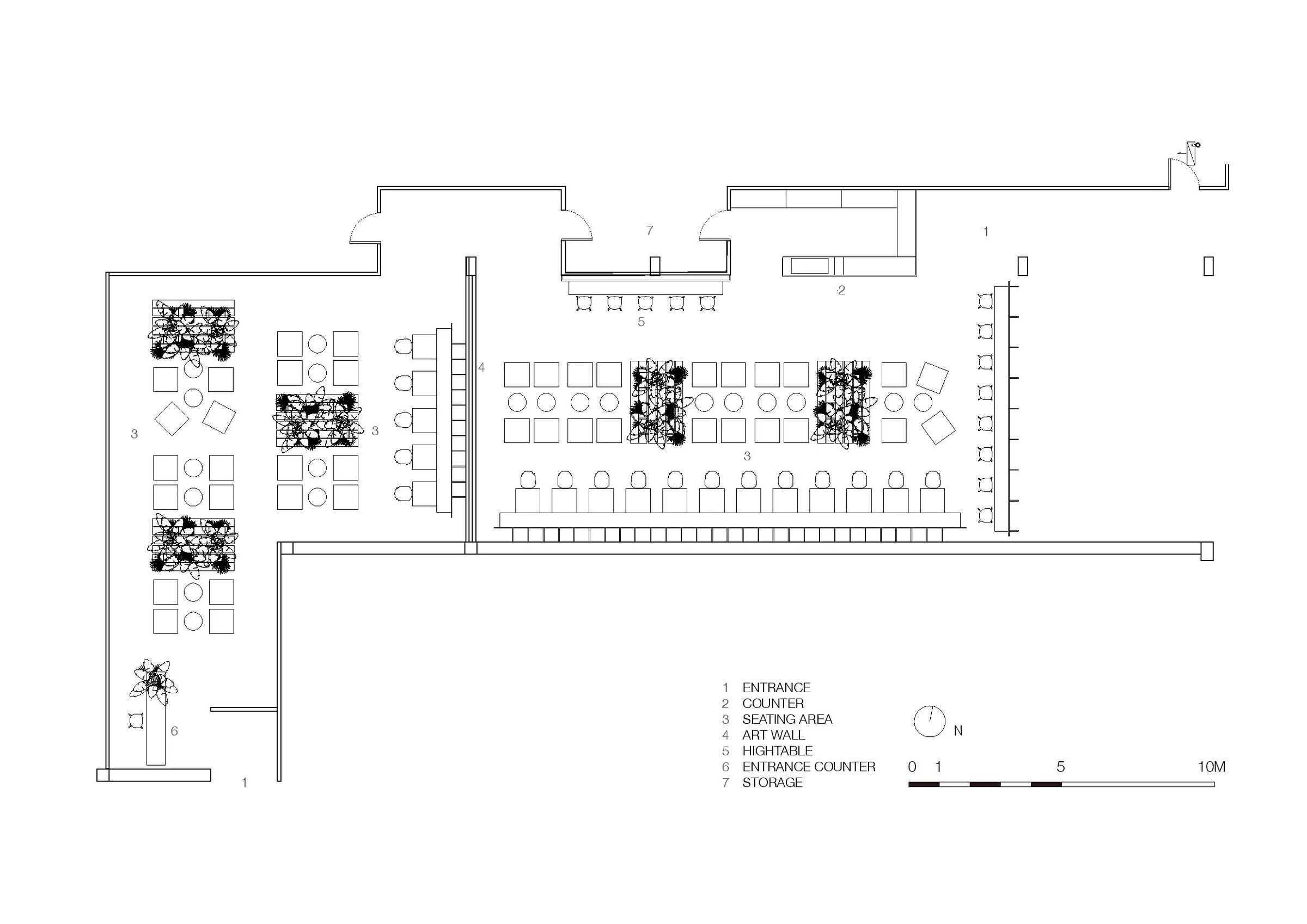
COORDINATION ASIA created a 579 m
sleek, minimalistic café and lounge for one of the most important annual events of the art scene in Shanghai. As its seventh appearance, Westbund Art & Design Fair 2020 features major galleries around the world. Welcoming visitors to enjoy open, clean space, the Westbund Art Café & Lounge presents the beauty of simplicity but also is teeming with life.
The unprecedented pandemic has turned the world upside down and disrupted the rhythm of daily life on a global scale. The design is inspired by the tug-of-war of restriction on travelling. The rhythmic fins of high tables and benches structures and defines the safe distance in the space, bringing a sense of order into the space. Lush plants are positioned on the elevated platforms between the custom-made furniture. All elements seem to float and in certain movement but still follow a strict order.
Wooden custom-made benches and tables represent the shipping crates used to transport artworks, fitting the theme of the art fair. Light lines throughout frames the café and lounge into comfortable spaces, constructing a soothing visual order to elevate the moods. Horizontal neon installation on the wall glows with warm and cold lights. Resonating with the light lines on the ceiling throughout the space, they become a soothing symphony of lights that brings calmness and peace of mind.
Through the contrast of restriction and movement, the design communicates how the world is keeping a balance, keeping an open mind while following rules.
▼项目更多图片
客服
消息
收藏
下载
最近

























